当前位置:首页 > 设计圈

  • #办公智造#

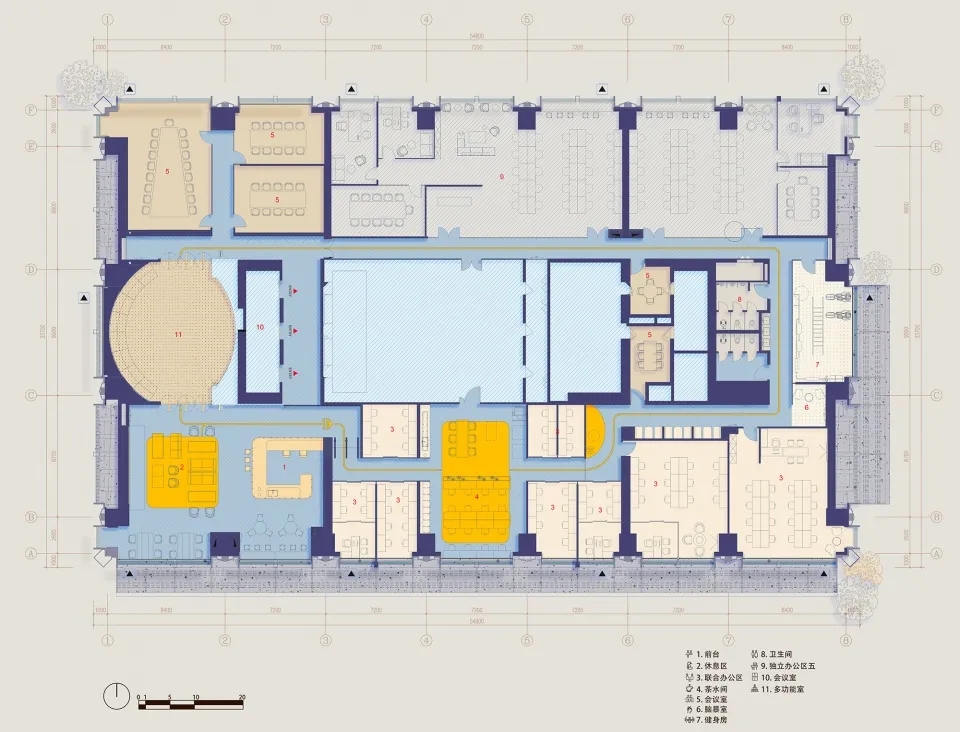
    该空间既要有一定的开放与协作的办公空间特征,又要具有咖啡厅一般的松弛氛围,从而为整栋楼的客户提供一个更具参与感的、更高效的活力办公环境。设计以明亮的色彩引领空间,运用一根连续的黄色线条将接待空间、路演空间、会议空间、办公空间、运动空间、卫生间等串联整合,模糊各区域的边界,构成富有变化的动态秩序与高效便捷共创协作的流动空间。
    办公空间用蓝色玻璃隔断划分出封闭办公室,玻璃上的标识区分不同房间,阵列排布的字母的保护隐私的同时也保证了空间的通透性        


  • #办公智造#

    办公空间用蓝色玻璃隔断划分出封闭办公室,玻璃上的标识区分不同房间,阵列排布的字母的保护隐私的同时也保证了空间的通透性
    开放办公区用黄色编织地毯限定空间边界,黄色的地面与蓝色的墙面共同营造松弛而又充满趣味的办公氛围        

  • Diana / 设计师

    2023-12-07 07:44


    #办公智造#

    疫情的出现让人们重新审视居住和生活,活动范围以家为圆心半径缩小,越来越多人热切渴望拥有更丰富安全的社区活动空间。在空间设计中,架空层作为一个室内与室外的过渡空间,同时也是人们情感连接的纽带。不受天气的限制,因此它成为了一个让人们在风雨天也可以下楼进行社交休闲的绝佳场所,让孩子和家人能够在楼下畅享悠然的陪伴时光。后疫情时代,我们所要构建的是交互共享的新型社区。充分挖掘特殊时期所赋予的全新价值和深层意义,提供人们有温度、全功能覆盖的公共空间,提升社区的幸福指数和归属感。        


  • #易筑展陈#

    画廊的外立面采用自然锈蚀的耐候钢材作为框架,金属和大玻璃板交替排列组成艺术品的橱窗展示,形成新旧对比。乳白色手工瓷砖以微妙的编织图案排列在玻璃橱窗的内侧,可作为任何艺术作品展示的中性背景。
    一扇超大的滑动门标志着东边画廊的入口。当移门打开时,画廊的入口显露出来,外面的滑动门则框住了旁边的橱窗展示。移门关闭时,门滑回到原来的位置,露出全高的玻璃橱窗。西立面有一扇仓库大小的门,定制设计的把手可将门完全打开,允许大型艺术品直接从指定的停车区运送到画廊内。玻璃橱窗在晚上照明开启时,照亮邻近的外滩源庭院,为实用的外观增添了优雅感。        

  • 小海 / 设计师

    2023-12-07 07:13


    #办公智造#

    时代在不断进步,而办公室装修风格也随着时代进步发生着日新月异的变化。新时代下的办公室装修,人性化、理智化的办公室元素时办公室装修必备,绿色环保的办公室装修已达成共识。        


  • #办公智造#

    设计中保留了原始的混凝土墙面与立柱粗犷的形象,温暖的木质家具则贯穿了整个项目空间。外摆的松木条家具与定制的桦木板办公桌、储物柜,都在材质上平衡着钢结构与混凝土的冰冷与力量感。        


  • #办公智造#

    项目图纸和模型        

  • 猪猪侠 / 设计师

    2023-12-06 23:39


    #办公智造#

    古希腊城邦的一个中心公共空间,其周边通常设有治疗工作室。该方案被视为办公室布局的基础——厨房和会议室区块充当会议场所,开放空间工作场所代表古老的作坊。在 280 平方米的面积上放置了 36 个功能齐全的工作场所、两个大型会议室、一个厨房区、4 个用于休息和谈判的小牢房以及一个运动区。门厅设有大衣柜,靠窗的工作空间被划分为小型休息区。与单色室内形成对比的主要强调技术是采用苏联技术制作的墙壁马赛克和浅浮雕。为了让它们变得有意义,我们将面板上描绘的地块与它们所在的办公室区域联系起来,因此可以看到工作场所上方的铁杆劳动者、运动区附近空中盘旋的体操运动员以及休闲区。        

发直播

公开