当前位置:首页 > 设计圈

  • #办公智造#

    最初的设计是在中心处种一棵树,寓意破洞而出,让人联想到园林里最古老的那棵树,不用赘述,就仿佛让人读懂了历史。后来考虑到整体风格与空间互动性,运用倒挂手法安置松树,寓意无畏、坚韧、高升。动态与静态,外在与内在,于交汇之际赋能空间流线舒展力,围绕最中心的端景达成完整的空间叙事,同时不同区域皆各自成景。设计,远超设计,诠释了设计师的初心和期许,也见证着他们追梦的过程。
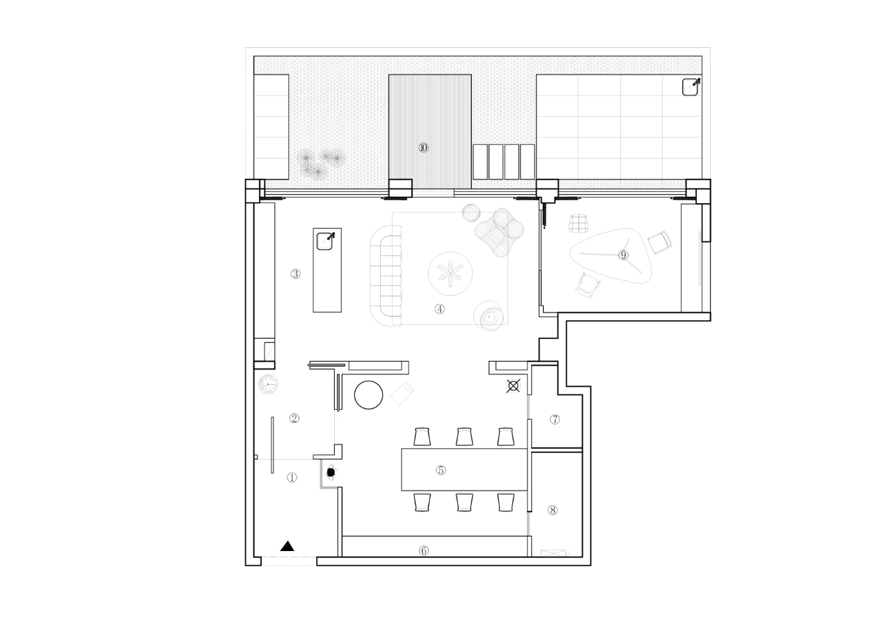
    工位分为三大块,公共办公区强调共享原则,独立办公室与主案办公室更具私密性,满足设计师工作所需要的安静氛围与专注状态。超长桌型,悄然规划了座位序列,形成张弛有度的布局,点缀缤纷多彩的笔墨,调节空间的表情。


  • #办公智造#

    都市的快节奏,让我们的身心往往都紧绷着,毫不自由,故删繁就简,用纯白底色追随空间结构,让美学精神得以沉淀、衍生、升华。一体式透明隔断,显现出办公室的独立性与互通性,细腻的感触在空间内流淌,渐渐享受静谧,回归创作。
    主案办公室框住园林景色,瞬间丰盈了空间的呼吸感,由远及近的绿植透露出蓬勃朝气,浸染室内的情绪,艺术彩灯投射出浪漫辉光,打破白昼与暗夜、自然与人工、虚态与实体的边界,触发头脑风暴,衍生设计创想。        


  • #办公智造#

    小办公室前台        

  • 毛均峰 / 设计师

    2023-10-07 15:25


    #办公智造#

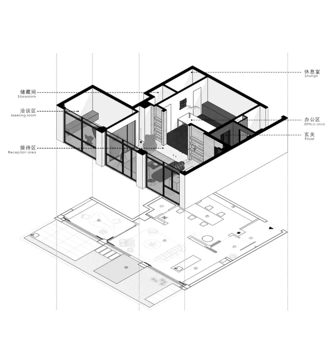
    让身体有一种“逃离办公室”的错觉。内外双玄关的设计,解决了原始建筑写字楼的限制,也让空间动线更多样性。塑造从明转暗,再由暗转明的空间脉络,于自然过渡的动线之内阐释简约空间的多样性、层次性与可能性,也让每一个来工作室的人都有一段不一样的印象。
    在办公与接待功能维稳的状态下,扩展西厨与露台的面积,强调家的和谐温馨、轻松愉快的氛围,链接办公空间与居家情态,让休闲娱乐也成为“工作的一部分”,未来也能让在这办公的设计师们迸发出更多设计灵感。
    立足不同的洽谈功能,打造舒适场域,令亲如朋友的客户们放下拘谨,更为轻松自在地展开沟通,规划出汇报区,利用空间结构与留白张力赋能正式交流情境,让设计变的更加生动,尽显工作室的品味格调,以及专业性与服务性。        

  • 毛均峰 / 设计师

    2023-10-07 15:23


    #办公智造#

    黑与白,明与暗,是一种比较级。通过空间的纵深特征顺势包容内部空间,把控暗调与明调的呈现比例,利用几何轮廓勾勒光影之美,以刚柔共生的矛盾感串联不同视角捕获的叙事形态。        

  • 毛均峰 / 设计师

    2023-10-07 15:21


    #办公智造#

    多样的惊喜镂空笔法与穿叠语言结合,以轮廓线条的共通性展演平面插画的宁静气质以及立体雕塑的蓬勃萌趣,引入剪切影像再造观赏新意。放任空间脊线与色块自成极简背景,凸显设计的巧思与韵味。        

  • Mr.Li / 设计师

    2023-10-07 13:18


    #办公智造#

    轻奢办公        

  • 王建 / 设计师

    2023-10-07 13:11


    #办公智造#

    赞!!!        

发直播

公开