当前位置:首页 > 设计圈
  • Diana / 设计师

    2023-09-08 23:14


    #办公智造#

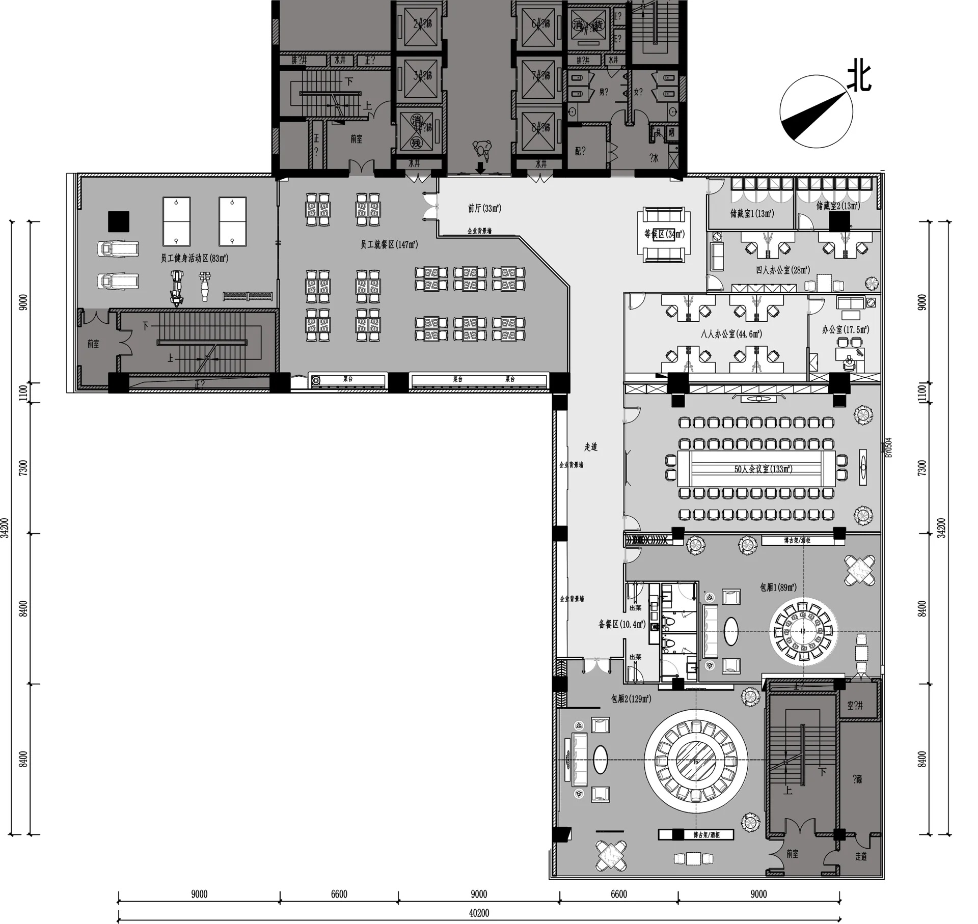
    在普通的工作空间中,人的流动是线性的,是平静的。而ioffice办公空间则创造了一种舒适、柔软和灵活的氛围,这种氛围往往是线性的和坚固的。
    地面空间中使用水泥自流平,以展现凛冽冷峻的动态需求;同时这种混凝土的诗意,也减缓了暖色调空间带来的安逸慵懒。
    会议室、办公区的桌椅以灰白、木纹色调为主。材料、灯光、办公家具的对比搭配给人愉悦的使用体验,也避免了纯白空间可能带来的视觉疲惫感。
    通过这样色彩、材质、设计手法的变化,让人能感觉到企业开放、有趣,鼓励互动的氛围。        

  • 猪猪侠 / 设计师

    2023-09-08 23:02


    #办公智造#

    前台和会议室通过一道玻璃隔断划分空间,视觉上扩大了空间,线条灯的设计是的整个前台和会议区更具延伸感。
    地毯与地砖很好的将办公区域与走廊进行分隔,在保证走道宽度足够富余的情况下设置茶水吧,便于工作之余的短暂休憩。
    领导办公室木饰面搭配浅色的硬包,轻松简洁。采用石膏板吊顶增加空间高级感。        

  • 大鹏 / 设计师

    2023-09-08 22:42


    #办公智造#

    通过前廊庭院,喧闹随之淡去,步入空间,设计师有意将自然光弱化,通过大量深色营造宁静、深邃的环境,使空间进入者能够感受到空间的儒雅气质
    入户玄关的曲径通幽,再到穿过屏风后的豁然开朗,从从狭小玄关到通透的办公区域,空间大与小、冷与暖、明与暗的对比,带来了视线的延伸,从视觉到感官,随行走动线,利用不同层次灯光勾勒出空间线条,感受空间感张弛有度的节奏变化
    在楼梯的设计上,整体使用深色不锈钢材质增强空间质感,天花颜色也设定为深色木饰面,不同材质的综合,形成丰富的空间层次,配合楼梯暖黄色灯带,突显楼梯造型
    两个黑色灯笼,蜡烛包裹其中,营造出了浓厚的东方韵味,散发着浓郁的东方美学情调        

  • 大鹏 / 设计师

    2023-09-08 22:40


    #办公智造#

     以现代之形续写东方之意,设计师特意选用大理石材质黑白纹理背景墙,厚实而流畅为整个空间带来大气磅礴的气势,包括花艺的点缀,以一种独特的姿态诠释着东方之美
    镂空屏风的另一侧是办公区域,两个区域由屏风进行分隔,镂空设计巧妙地划分了两个不同功能的空间,又不影响两个空间的关联,营造出隔而未断的效果
    深色木饰面墙面与天花,搭配灰色布艺沙发,实木肌理与柔和的布艺饰面,将美学的感性和空间质感的理性做到最完美的平衡
    深色木饰面,给人稳重的感觉,打造出一个安静、沉稳的办公环境,进入空间,与室外喧闹的城市外景形成对比,宁静的氛围能让人更好地投入到工作当中
    会议室通过雾化玻璃与接待区进行分割,即可满足平时空间通透感又能在会议需要时将空间封闭,会议室比较常使用在庭院的处理上,设计师将会议室窗户与庭院做对景,作为会议室空间及户外庭院空间主景        

  • 大鹏 / 设计师

    2023-09-08 22:38


    #办公智造#

    进入二楼,第一空间为助理办公区,设计师在空间尽头摆放岛台,结合助理办公桌,空间整体为深灰色,凸显中间椭圆形天花,从视觉上做到震撼感
    在原有空间的不规则形,通过弱化边界凸显天花,做到削弱空间结构,整个空间有花艺挂画的红色点缀,特别是角落红色大漆中式边柜,增加空间韵味及文化的传承        

  • 瑾萱 / 设计师

    2023-09-08 22:28


    #办公智造#

    在基本规划和视觉安排上下功夫,利用多元化的组合塑造开放的空间场域,并且以灵活的设备运用来释放空间的可能性,让每一位使用者都能拥有舒适放松的办公生活体验。
    会议室和办公区是企业内部沟通和协作的重要场所,因此它们的设计也需要考虑到员工的工作效率和舒适度。在会议室方面,我们采用了偏向传统的风格,以满足正式的会议接待需求。而在办公区方面,我们则采用了人性化的设计,以充足的光线条件和个人工作站相应配置。这些设计措施旨在提高员工的工作效率和舒适度,从而进一步促进企业的发展。        

  • Diana / 设计师

    2023-09-08 22:20


    #办公智造#

    会议室        

  • MING / 设计师

    2023-09-08 22:16


    #办公智造#

    设计围绕“多元一体,和而不同”的理念而展开,试图在体现以上每一个特点的同时,又使它们和谐共存,由此来创造出一个突出包容性和功能性的空间。
    在色调的选择上,我们使用了接近自然的木色系,想要通过颜色来传达安静且沉稳的心理感受;配色是原木和深色,原木代表自然,深色代表沉稳,与空间想要的表达一致。        

发直播

公开