当前位置:首页 > 设计圈
  • 瑾萱 / 设计师

    2023-07-02 06:37


    #办公智造#

    完工图 Vs 过程图        

  • 王丹丹 / 设计师

    2023-07-02 06:04


    #办公智造#

    如是办公空间采用开放范式下的办公模式,以纯粹而例外的设计呈现。它演变成了一个共享之地,一个创新的未来办公体验式场所。这是一个共融共通的自由之地,空间开放,可以扩展,替代以往的封闭办公环境。不同的空间相互组合,不再服从于某种特定的空间结构。员工在这里能够与空间互动,建设属于自己的办公空间,使其生长,成形。
    空间的质量,在于它支持各种各样的交流互动。传统方格网状排列的办公空间,固化限定行为,线条僵硬地把人的活动吸纳到一个封闭的实体里。一个有能力吸收办公行为中 各种变化需求并灵活做出调整的生动多样的空间氛围:有弹性,自发应用,具备延展性与适应力。不仅解决工作空间的共享,而且重塑在此情景中的人际关系与社交网络。
    平行并置、垂直相交的木块层叠起伏,交错咬合,构成大小不一切口与不同的嵌入层次。木块内外可以自由置换,相互衔接,横向延展生成墙体、天花、前台、休息凳、办公桌、书柜、展示柜等,形成不断扩张的交流系统,消解了物质拘谨的功能边界。        

  • 王丹丹 / 设计师

    2023-07-02 06:01


    #办公智造#

    交错的木块以一种水平错落展开的姿态,平衡与稳定,将传统办公入口转化为多功能串联而成的空间枢纽。作为空间之间的连接体,它在集合造型中充当空间元素的中介和摩擦。由于空间摩擦而造成空间的渗透感        

  • 张小葵 / 设计师

    2023-07-02 05:54


    #办公智造#

    羽毛球场馆设计        

  • 饶阳 / 设计师

    2023-07-02 05:52


    #办公智造#

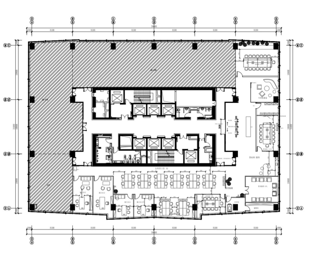
    办公室设计(1)        

  • 饶阳 / 设计师

    2023-07-02 05:49


    #办公智造#

    办公室设计(2)        

  • 晓歌 / 设计师

    2023-07-01 23:15


    #办公智造#

    创新中心        

  • 猪猪侠 / 设计师

    2023-07-01 23:12


    #办公智造#

    Tw 办公室设计        

发直播

公开