当前位置:首页 > 设计圈
  • 蓦兰 / 设计师

    2023-06-24 08:34


    #醉美庭院#

    自然简约温馨庭院|恬淡自由生活        

  • 饶阳 / 设计师

    2023-06-24 08:29


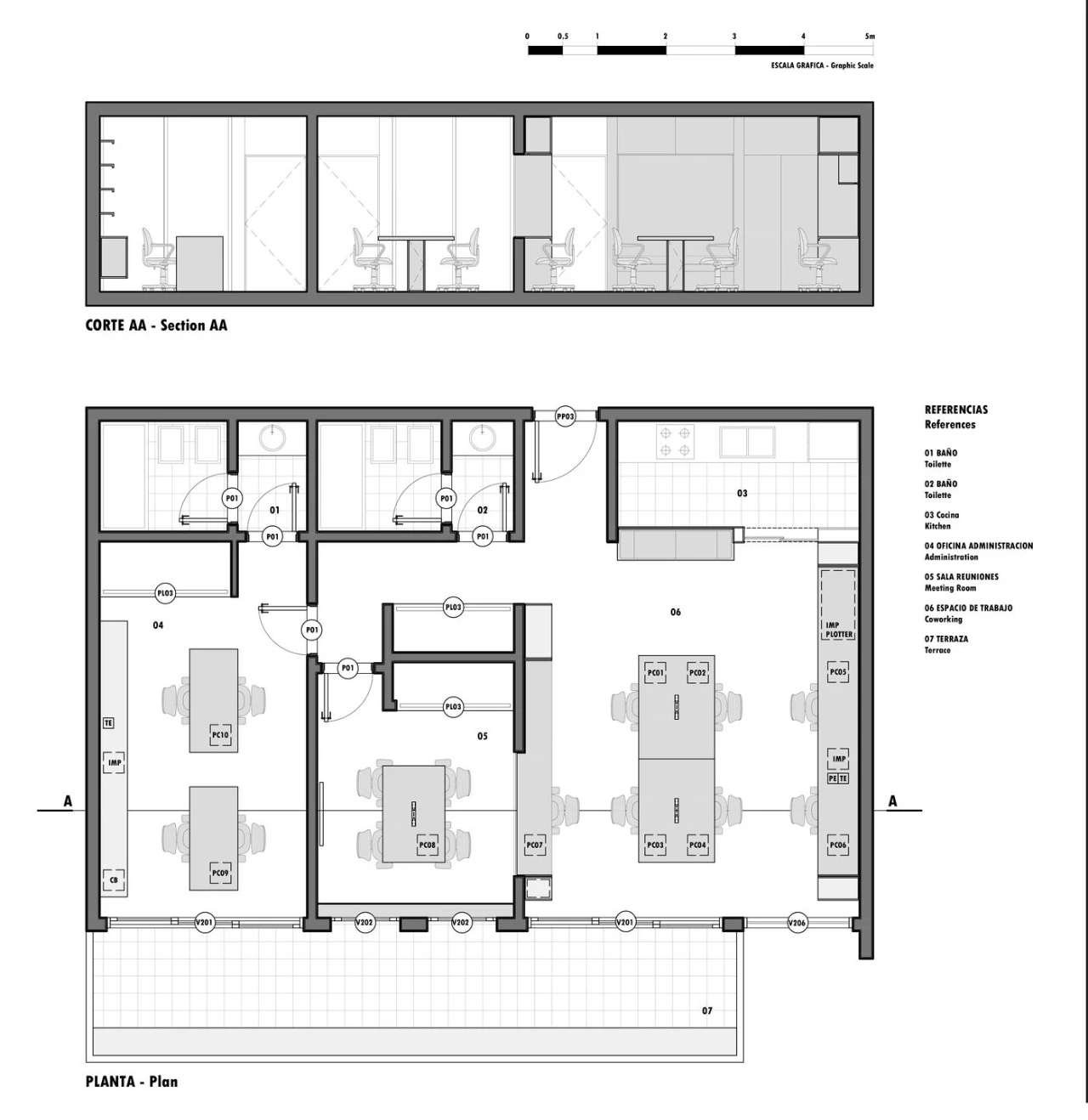
    #办公智造#

    CRBN Architects 办公室

    我们需要增长和增长的空间需求,当我们考虑空间时,我们会考虑灵活性,一个介于安静和动态区域之间的空间。根据我们作为一个团队所面临的挑战,哪些可能能够被配置和重新配置。所以我们开始建造一个新的办公室,它可以很容易地适应和塑造我们的形状。        

  • 饶阳 / 设计师

    2023-06-24 08:27


    #办公智造#

    在我们小小的新“家”中,许多不同的活动同时进行。只要一天过去,这些活动就会发生变化。这些活动塑造了我们的需求和我们的工作方式。因此,我们决定以“传统”的方式将办公室的不同规格分开,同时包括通透性、透明度和灵活性等现代概念,最终拥有一个非常动态的空间,多功能的永恒空间。        

  • 饶阳 / 设计师

    2023-06-24 08:26


    #办公智造#

    我们喜欢展示我们的作品,所以为了让访问我们的人看到我们在一个普通的一天做了什么,我们决定把所有的东西混合在一起。入口、接待处和工作区都是设计师的工作日记。这个空间与会议室和阳台紧密相连,放置了很多植被,所以我们可以整天被大自然包围,将技术区和行政区分开,这样我们就可以有一个远离风景的空间有一些私人空间。        

  • Mr.Wang / 设计师

    2023-06-24 07:43


    #标准施工#

    会议室落地        

  • 夏毅 / 设计师

    2023-06-23 16:44


    #办公智造#

    办公室毕业照(1)        

  • 夏毅 / 设计师

    2023-06-23 16:42


    #办公智造#

    办公室毕业照(2)        


  • #办公智造#

    办公室实景图        

发直播

公开