当前位置:首页 > 设计圈
  • MING / 设计师

    2023-06-18 17:03


    #办公智造#

    方块是最简单的形体,看似简单却拥有着无穷的力量,寓意生长、变化。设计师将方块作为载体,把对未来的想象和希冀呈现出来,为参观者创造一段激发其好奇心和灵感的未来空间旅程。        

  • MING / 设计师

    2023-06-18 17:02


    #办公智造#

    设计师将想象中的未来世界放入现实,超现实的风格元素,闪跃的踏步发光梯板,轻盈跳跃的色块,打造了一个具有科技感的办公空间。        

  • 陈澄 / 设计师

    2023-06-18 16:29


    #办公智造#

    天圆地方的设计理念,全新装修简约时尚!精心设计、定制家具配备全齐,房间内均采用单层钢化玻璃到顶隔断。给您一种氛围式的办公体验。        

  • 易壮壮 / 设计师

    2023-06-18 16:22


    #办公智造#

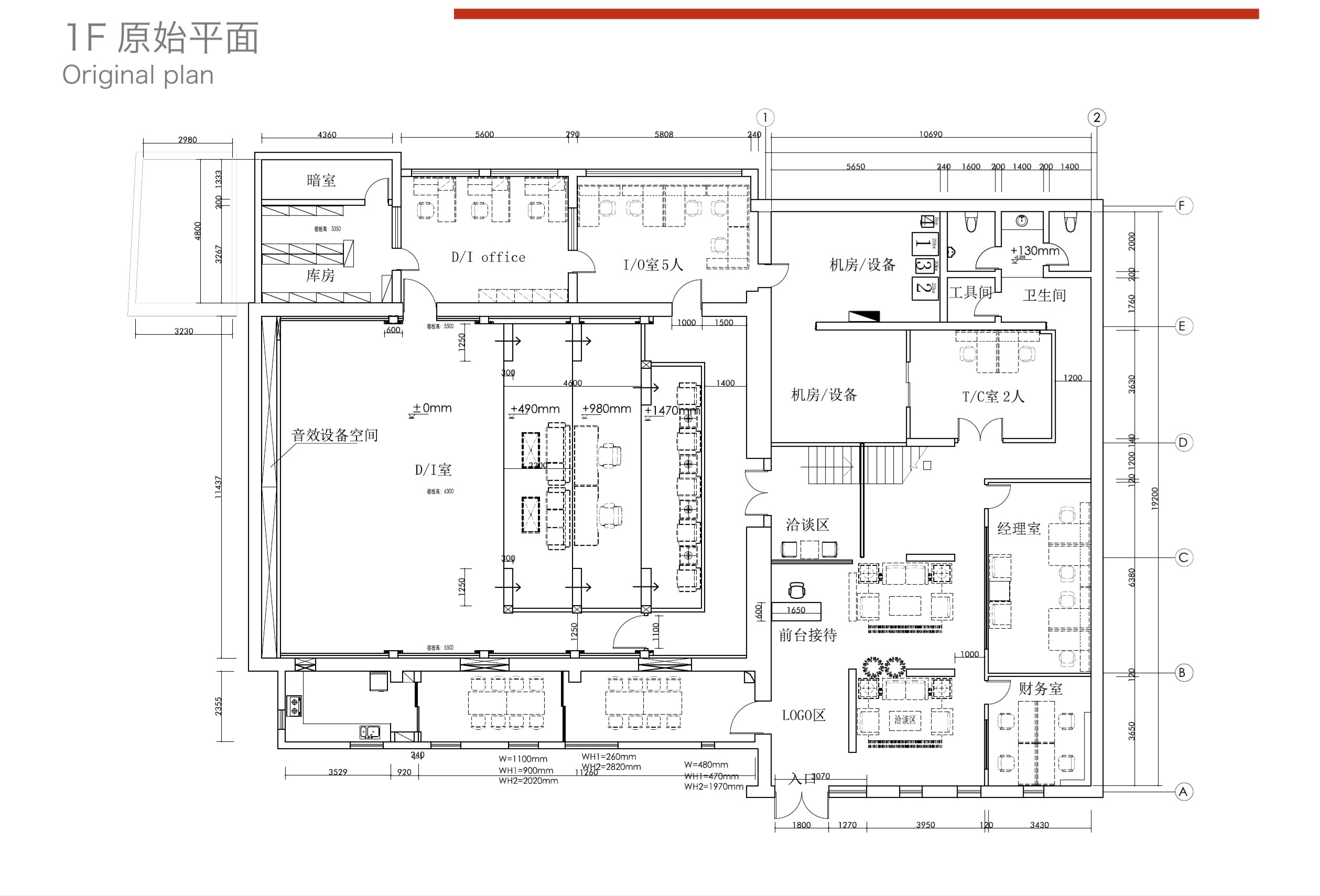
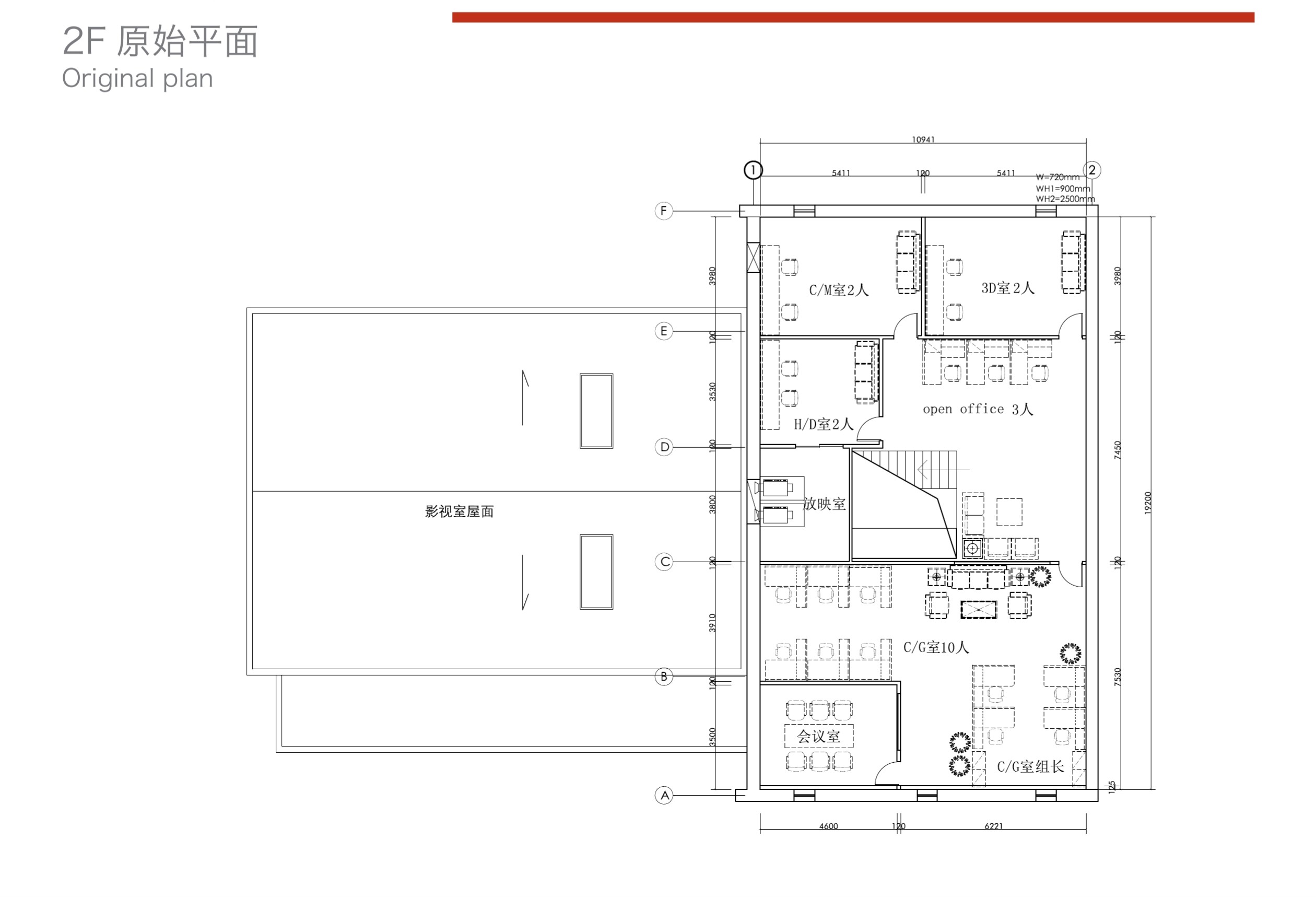
    平面布置图        


  • #办公智造#

    这个项目的装修风格属于极简风
    细节中带着一点色彩点缀
    让办公氛围更加活跃轻松
    采用全透明玻璃隔断,
    让整体环境更加明亮通透
    大面积办公区陈列整齐划一方便管理
    休息区随性舒心
    会议桌采用原木大桌面
    高级感十足        

  • 椿楸 / 设计师

    2023-06-18 14:50


    #办公智造#

    “回形空间”办公设计
    空间以白色为基调,同时呈现平整,
    树皮纹,方格纹,斜拼砖纹四种不同的质感。
    白色与木色的划分丰富了空间的层次感,
    黄色与蓝色的点缀则增加了空间的生机和活力。
    设计师打破了原本沉闷的工作环境,
    结合超高层高、裸露的天花留白和工业感的吊灯,
    重新创造一个明亮开阔的空间,
    为员工营造一个愉悦的工作环境。        

  • 杜飞 / 设计师

    2023-06-18 14:43


    #办公智造#

    罐君传媒办公室        


  • #办公智造#

    办公室实景图        

发直播

公开