当前位置:首页 > 设计圈
  • 丽旻 / 设计师

    2023-05-05 12:02


    #办公智造#

    我们设计这个工作空间的方法是一种必要性和生态意识。在设计中使用了藤条、木材和绿色植物,给办公室带来了温暖和温馨的感觉,同时也环保。空间也提供了一种自然的美学,促进了平静和宁静的感觉。
    我们设计了多功能空间,可以在不同的时间用于不同的功能。例如,主老板的小屋和会议室由内部滑动折叠木隔板隔开,这为不同的用途创造了可能性——既可以作为一个大空间,也可以作为两个独立的空间。图书馆区巧妙地设在食品储藏室附近。这使得桌子可以作为一个讨论和阅读的地方,或者一个吃饭的地方。
    总的来说,这家律师事务所的设计摆脱了单调的办公空间,强调可持续性和朴实的美学,反映了公司对环境产生积极影响的价值观和承诺,并为员工创造了一个促进生产力、协作和福祉的空间。        

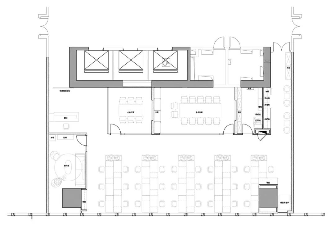
  • 小筑 / 设计师

    2023-05-05 11:50


    #标准施工#

    轻钢龙骨石膏板吊顶
    工艺缝        


  • #办公智造#

    办公室实景图        

  • 饶阳 / 设计师

    2023-05-05 11:22


    #办公智造#

    设计上兼顾了稳重舒适的质感,简明的线条,精致的光影,现代的材质,将办公空间开放、温暖、通透、沉稳的气息调动起来。
    简约的设计渲染出一股宁静的氛围,前厅区域纯净的色调和自然的纹理让空间看上一尘不染,营造了极简艺术的空间格调。
    木色的地面与浅色墙面打开视野,适当的灯光增添暗涌的美感,没有冗杂的设计,温暖自然而舒适。
    玻璃隔断不仅轻松划分了会议区与前厅之间的区域界线,还给人开阔视野,通透,敞亮的感觉。
    休息室主要以灰色系和原木色为主,整体给人一种高端大气的感觉。墙面采用现代风流行的木饰面拼接和灰色毛毡进行搭配,设计感十足,颇具亮点。
    色彩鲜明的沙发,为空间增添了不少活力,给人放松的感觉。这里可以是专门的接待区,也可以是休息区,讨论区。
    茶水区综合运用灰色元素、及灯光角度精准的设计,使整体布局井然有序且功能性极强。每个细节都恰到好处,同时还具有极强的收纳能力,整体空间井然有序且不拥挤。
    基于客户的功能需求,设计团队在空间中置入了大小两个会议空间。大会议室整体木色为主色调,给人和谐优美的感觉。空间立面层次分明设计感十足,时尚而不繁琐。
    通透的玻璃隔断墙,使光线通透明亮,让大会议室更加简洁、清透,整体设计细节上体现的都是满满的精致。
    小会议室整体宽敞而优雅,烘托出稳重静谧的氛围。考虑到整体设计的统一性,地面依旧选择了木地板,纹理自然,舒适感十足。        

  • 饶阳 / 设计师

    2023-05-05 11:17


    #办公智造#

    员工区分布在室内采光较好的位置,木色与灰色的交互相映,简单而又不凡,创造出开放的空间,搭配绿植,使空间增添一丝俏皮,减轻员工们的精神压力。
    整个空间色调较柔和,轻松舒适。从原木办公家具到定制书柜,释放素雅、静谧的气质。
    合理的空间划分,营造自然,品味,格调。书柜既可摆放书籍又可陈列装饰物,合理的把空间利用起来。        

  • 蓦兰 / 设计师

    2023-05-05 11:09


    #醉美庭院#

    庭院设计        

  • 宋闲 / 设计师

    2023-05-05 11:01


    #办公智造#

    办公室实景图        


  • #办公智造#

    IBM 办公室(1)        

发直播

公开