当前位置:首页 > 户型图分析

#办公智造#

阅读 982915 | 粉丝 982915

  • Camille yu / 设计师

    2022年12月26日 07:16:40

    + 关注
    #办公智造#

    办公场所要尽可能选择有充足阳光照射的空间,这样的环境有利于促进积极性和心理健康。此外,大量的绿色植物也能让人心情愉悦自由。虽然整个空间随处可见丰富的色彩,但却融于舒适的中性色调中,并不会给人以突兀的压迫感。设计团队还特意选择了一些具有柔和光照的灯具,去用心塑造一个温馨怡人的环境。        

  • Joan 王怡琼 / 设计师

    2022年12月25日 20:35:08

    + 关注
    #办公智造#

    办公室空间设计…        

  • 匡志贤 / 设计师

    2022年12月25日 19:52:38

    + 关注
    #办公智造#

    小景…        

  • Bobo / 设计师

    2022年12月25日 19:47:39

    + 关注
    #办公智造#

    办公室效果图…        

  • Bobo / 设计师

    2022年12月25日 19:37:37

    + 关注
    #办公智造#

    设计师采用了大面积的高级灰大理石,搭配灯饰及线条,组合成造型简约线条灵动的空间。        

  • 李明 / 设计师

    2022年12月25日 19:15:14

    + 关注
    #办公智造#

    温润的木质元素,温暖的灯光,利落干净的前厅运用虚实结合、线面相交的设计手法,加强了空间的层次感,营造出一个舒适优雅的接待环境。
    映入眼帘的便是企业logo,两旁的百叶窗将阳光变得轻柔静谧,令人不由感到自然清爽。
    接待台设计狭长精致,空间阔绰,简约大气。大面积纯白与小面积的原木色台面对比鲜明,一旁的新鲜绿植和整齐划一的顶灯相辅相成得恰到好处,吸睛力十足。
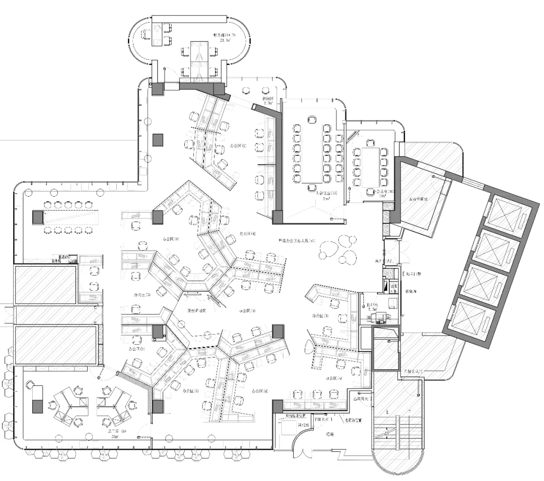
    办公空间避免了传统严谨无趣的格子间,半开放式的设计与外界环境形成流畅的互动和交流,达成空间整体的默契和统一,让员工间的沟通交流更进一步,开放思维的同时提高效率。
    会议室中使用通透清新的玻璃隔断,创造出高效灵活的交流环境。白色的大面积运用,传递出简洁干练的氛围,再搭配原木色降低冷感与距离感,将沟通之间的距离再一次拉近,
    同时引入多媒体阵列设备,打造出数字信息交互一体化高频效会议空间,实现空间的最大利用率。        

  • 俊泽 / 设计师

    2022年12月25日 17:00:48

    + 关注
    #办公智造#

    办公室实景图…        

  • 小海 / 设计师

    2022年12月25日 16:59:06

    + 关注
    #办公智造#

    全新的办公室当中,既有传统形式的会议室,又有舒适灵活的开放式协作空间,无论哪一种工作方式都在通过设计师的精妙处理强调着舒适感受与协作精神的人文关怀。生动明快的装饰设计、创意十足的家具选择、现代化的硬件技术应用,更是为这个空间增添了高效与充满生趣的办公文化氛围。        

发布话题

公开