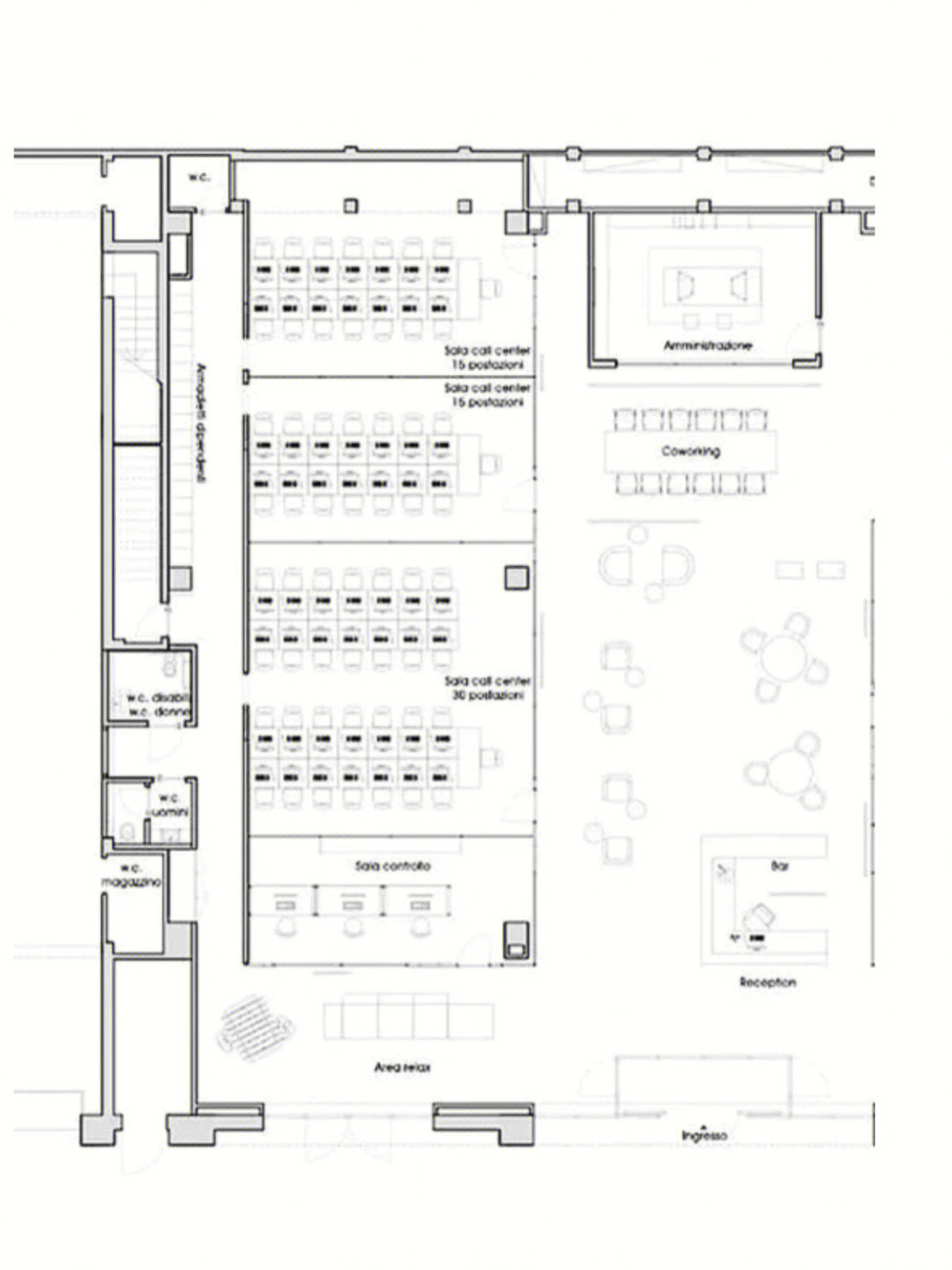
当前位置:首页 > 户型图分析

#办公智造#

阅读 887275 | 粉丝 887275

  • Camille yu / 设计师

    2022年10月08日 21:47:01

    + 关注
    #办公智造#

    质感办公室设计…        

  • 木子李 / 设计师

    2022年10月08日 21:26:50

    + 关注
    #办公智造#

    小鹏汽车(1)        

  • 木子李 / 设计师

    2022年10月08日 21:24:41

    + 关注
    #办公智造#

    小鹏汽车(2)                

  • 刘君雅 / 设计师

    2022年10月08日 21:20:42

    + 关注
    #办公智造#

    实景图赏析…        

  • Siri / 设计师

    2022年10月08日 21:17:22

    + 关注
    #办公智造#

    别人家办公室 | 043        

  • MING / 设计师

    2022年10月08日 21:14:52

    + 关注
    #办公智造#

    入口大厅连接至首层办公空间,这也是公共性最强的一个楼层,除了开放的办公区域之外,还设有展厅和与花园相连的自助餐厅。在餐厅和展厅,塑料纹理的地板与红色及芥末黄色的室内元素相搭配,能够帮助来访者识别空间的不同功能,同时也起到加强公司创意形象的作用。二层空间整体拥有较大的透明度,以开放的姿态吸引着人们走进内部。        

  • MING / 设计师

    2022年10月08日 21:11:17

    + 关注
    #办公智造#

     建筑的第三层专门服务于公司的创意团队,不同类型的会议室以及带有3D打印空间的工作室都是遵照相同的逻辑来设计。该楼层同时还包含管理层办公室、一个开放办公区和主会议室,其中主会议室采用了落地式玻璃墙,以张扬的姿态回应了该楼层5米的净空高度。        

  • 王建 / 设计师

    2022年10月08日 20:38:29

    + 关注
    #办公智造#

    进门见“庭園”,会议室地面做了整片黄锈石自然面铺装,鹅卵石围绕,石条过渡至办公区域        

发布话题

公开