当前位置:首页 > 户型图分析

#办公智造#

阅读 902150 | 粉丝 902150

  • 王倩 / 设计师

    2024年10月08日 20:43:16

    + 关注
    #办公智造#

    展厅配有会议区及连通的办公室,将舒适的品质与城市的宁静相结合。展厅展示了典型的鞋品用料,诸如皮革、毛毡和软木等。设计师将室内陈设进行个性化装饰,营造出温馨的一面,与建筑的钢铁、玻璃立面形成鲜明对比。采用坚固的橡木板为客户洽谈或非正式会面创造了一个开放的空间。“品牌墙”和“展示塔”使展示灵活多变。除了开放式吊顶结构,“工艺别致”的灯具和金属家具也营造了别样的氛围。        

  • Xiao Er Mei / 设计师

    2024年10月08日 19:51:24

    + 关注
    #办公智造#

    白色大理石与金色logo字体相配合,看起来很和谐,更显大气。灰色大理石的前台配合背景墙的白色大理石更能彰显空间的层次感。
    浅色木纹饰面给人一种干净的感觉,配合黑色金属条使得木饰面墙体不在单调,而且使得墙面立体感增强。前台对面墙体设计壁龛可以摆放公司获奖证书等物品,使客户来的时候第一眼就能看见。办公区域采用玻璃隔断,透明的玻璃既能给予你开阔的视野,不影响采光使没有窗户的房间也能感受到阳光的照射。        

  • Design 陈 / 设计师

    2024年10月08日 19:49:00

    + 关注
    #办公智造#

    一出电梯映入眼帘的是LOGO墙,冷色调的灯膜使得整个电梯厅明亮,而LOGO上面打下来的暖色调的灯管,使得LOGO更加凸显辨识度。
    入口区是客户进入后的第一场地,也是企业与客户最先接触的一个区域,因此,在设计上选择了简洁,大气的大理石作为主材料,深灰色大理石饰面的接待台与进门区相同白色理石的LOGO墙前面,两种冷色调的搭配,不仅给你带来视觉上的冲击,白与灰的搭配也显得相得益彰。

  • Design 陈 / 设计师

    2024年10月08日 19:47:25

    + 关注
    #办公智造#

    舒适的沙发可以让员工在繁忙之余点一杯特调进行放松,配合暖色调的灯光和材质颜色,让人在这里可以得到工作之外最大的休憩。在茶水间内泡上一杯咖啡也是一种舒适的享受。        

  • 杜飞 / 设计师

    2024年10月08日 19:43:33

    + 关注
    #办公智造#

    简洁大方的前台采用进口杜邦纯白石材,吊顶灯光采用磁吸轨道射灯和斗胆射灯搭配将BRANDSH的LOGO突现出来,地面为进口实木复合地板。        

  • 杜飞 / 设计师

    2024年10月08日 19:41:52

    + 关注
    #办公智造#

    另一半公共办公区保留商务楼的整洁明亮感,设计了两种氛围的灯光效果,一种是镶嵌在铝板中条形隐藏式灯,另一种可以将隐藏灯关闭后选用条形悬挂吊灯让空间更优雅。        

  • 毛均峰 / 设计师

    2024年10月08日 19:36:05

    + 关注
    #办公智造#

    电梯间以黑色为主色调设计,采用白色线条来区分四个电梯间和等待区域,电梯间的黑色主色调与在公司内部的浅色系作为对比,形成强烈反差,欲扬先抑,进入公司后会产生一种“眸前一亮”的视觉冲击。
    前台区域以浅色系为主,岩板背景墙呈现亚光材质展现公司不高调、有实力的作风,岩板纹路清晰可见,白色调与顶面软光膜灯的颜色相互呼应,见光不见灯设计,让空间显得通透又大气!
    采用极窄边框铝合金玻璃作为隔断,考虑到办公需要私密感和舒适感,2米以下做了磨砂处理,除了主光源照明,增加隐藏氛围灯带和以后可以增加文化墙用的的轨道灯,以便公司作文化宣传用。
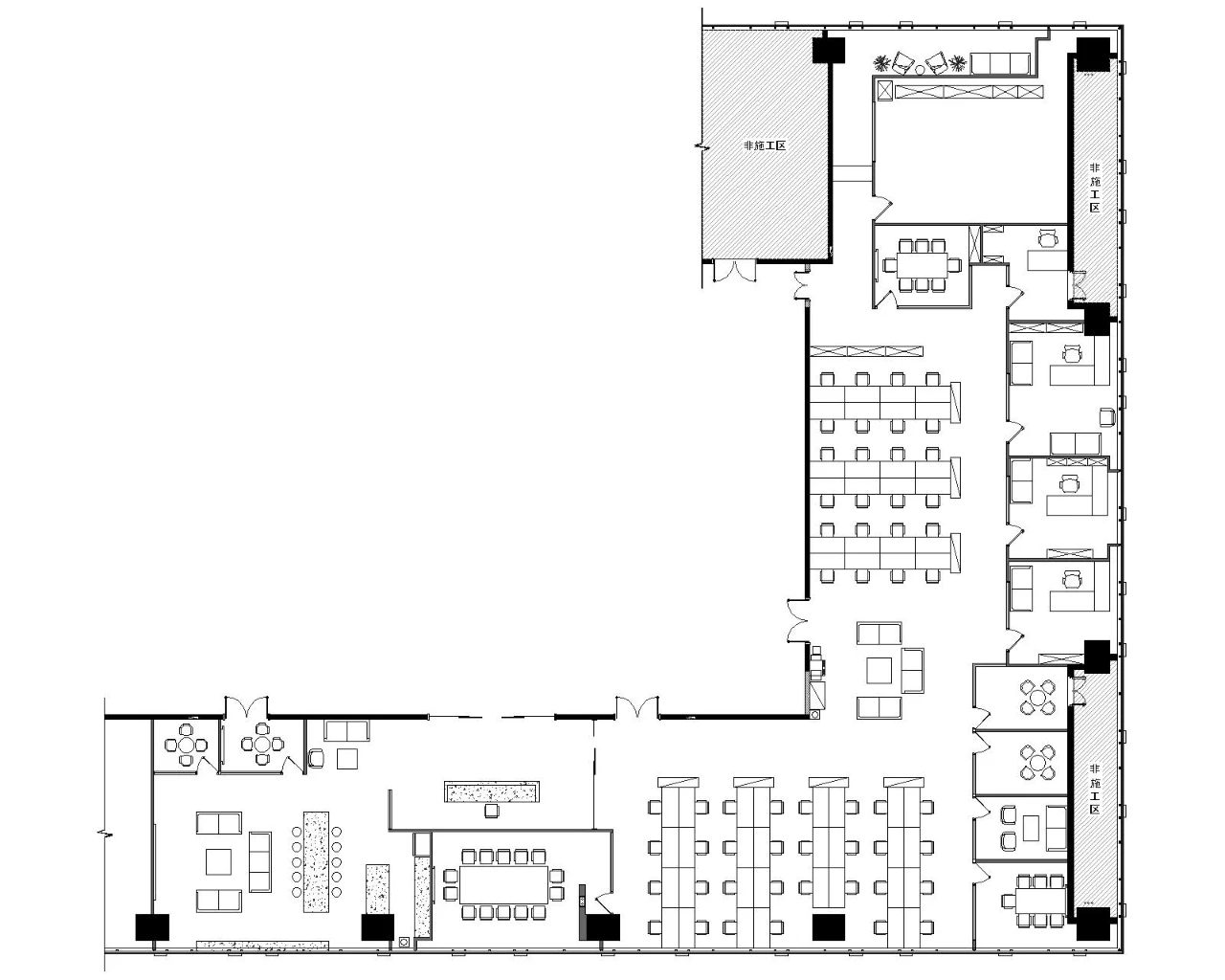
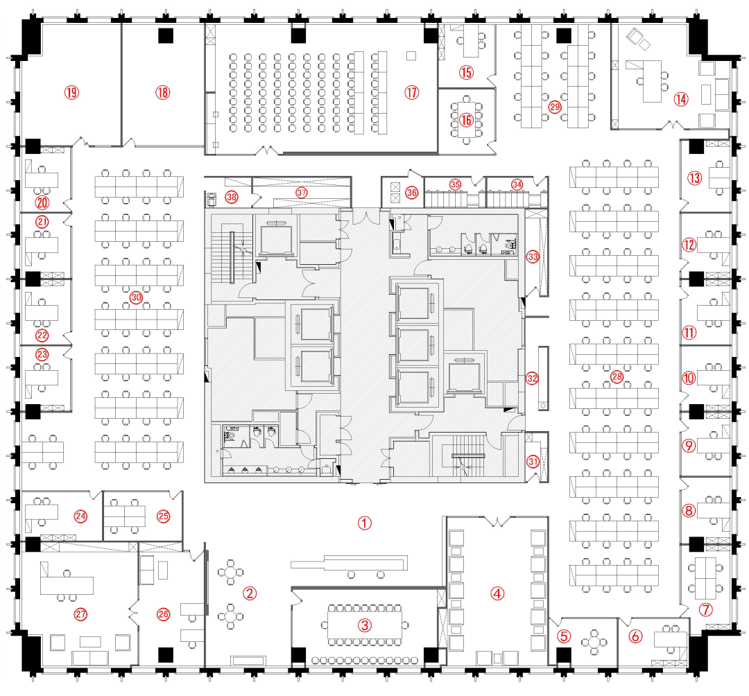
    每个区域采用不同色系的地毯、收纳柜进行区分,让空间物尽其用,整个空间围绕大厅办公区域展开,可以让人员以一个点散发式地流动,也增强了员工的交流与凝聚力。四周的独立办公室以玻璃为界,增加空间通透感。
    艺术折纸菱形吊顶,配合氛围灯,为空间增加艺术感,两侧是金属背光层板,搭配客户企业奖项展示台,充分体现公司实力。室内设计延续写字楼建筑的品质感,将其在视野与采光上的优势放大。精巧的地毯花纹细节,整齐的桌椅摆放,舒展的阳光散落,精致的植物观景台,室内与建筑在工艺和细节上高度统一。这种可以随时被感知到的精致与优雅,正在树立恒力期货有限公司更加高品质的企业形象。        

  • 小海 / 设计师

    2024年10月08日 08:26:14

    + 关注
    #办公智造#

    落地实景        

发布话题

公开