当前位置:首页 > 户型图分析

#办公智造#

阅读 984996 | 粉丝 984996

  • 王倩 / 设计师

    2024年09月24日 20:40:12

    + 关注
    #办公智造#

    公寓复式办公空间设计        

  • 陆七 / 设计师

    2024年09月24日 20:37:52

    + 关注
    #办公智造#

    一日一图        

  • 九头鸟 / 设计师

    2024年09月24日 20:37:04

    + 关注
    #办公智造#

    工业风办公空间        

  • 毛均峰 / 设计师

    2024年09月24日 18:29:36

    + 关注
    #办公智造#

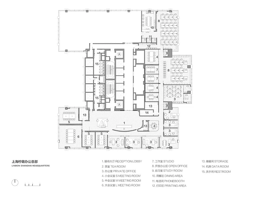
    柠萌影视上海新总部办公空间|入口大堂是整个设计的核心。大理石前台的独特设计,结合了柠萌影视公司的Logo元素,巧妙的将“小柠檬”的截面融入,既不张扬,又充满辨识度。灰色地毯延展空间的视觉深度,与前台大理石形成鲜明对比,赋予大堂简洁现代的氛围。让人从入口处推门而入的瞬间,就能感受到这里是柠萌的办公空间,氛围与空间元素给了人们深刻的第一印象。
    大堂的照明设计采用隐藏式灯带,柔和而均匀地分布于整个空间中,减少刺眼的光源,使整个大堂显得温暖且舒适。同时,背景墙使用主题黄色渐变的树脂玻璃,与大理石的前台冷感质地相互中和,营造出平衡的视觉效果。
    大堂不仅是办公空间中的核心公共区域,更是与其他功能区紧密相连的枢纽。它不仅起到连接作用,还延伸至展示区域,充分表达了企业的品牌文化和历史脉络。围绕大堂展开的各个区域风格一致,确保整体设计统一。
    海报墙与企业编年史墙是公司形象展示的核心部分,展示了公司近年来的影视作品,而奖杯墙和编年史墙则突出了公司的成就与发展历程,它们展示了公司的过去与未来。墙面设计简洁,着重凸显展示内容,让展陈服务于内容本身。前台背后的弧形墙面自然的形成了一面非常具有延伸感的展示墙面,这里就是艺人展示墙,通过序列感的排列展示内容,让这个原本狭长的走廊变得生动有趣,并且对外展示了公司的历史业绩,强化了公司的品牌定位。墙面艺术设计结合玻璃与金属材质,传达出时尚与高端的视觉感受。        

  • 毛均峰 / 设计师

    2024年09月24日 18:27:21

    + 关注
    #办公智造#

    合伙人办公室以温和的木材和柔和灯光为主,体现空间的简约与力量感。办公桌紧邻落地窗,将城市的天际线引入室内,赋予空间更多的开阔感。书架系统占据了一整面墙,既起到装饰作用,也实用至极,展示了合伙人的书籍、照片和奖杯,赋予整个空间一种个性化的气质。从合伙人办公室区域再次延伸,就是大会议室以及中会议室区域,会议室都有着良好的视野,因此我们将内部空间简化,让室外的城市景色成为一幅移动的画卷,给工作者带来一丝城市里的宁静与享受。空间主要以灰色地毯以及木质墙面为主,去掉一切的装饰,让功能与室外成为空间的主角。        

  • 毛均峰 / 设计师

    2024年09月24日 18:25:07

    + 关注
    #办公智造#

    进入更私密的区域,餐厅是空间的另一个亮点。主色调为明亮的黄色,它不仅充满活力,更是在员工繁忙工作间隙中放松心情的理想空间。每一个区域都有其独特的功能与风格,这是我们在设计中尤其强调的,一个灵活多变、适应不同需求的空间设计理念。
    餐厅设计明亮而温馨,黄色墙面与木质吊顶的搭配增添了活力和自然感。中间的白色吧台简洁,配合两把高脚椅,为员工提供了一个轻松的休憩场所。大长桌和围绕的木椅适合多人同时用餐或进行小组交流,体现了功能性与美感的结合。餐厅内还配备了完善的厨房设备,包括冰箱、微波炉和水槽,满足了员工日常需求,整体氛围友好舒适,有助于团队互动和放松。        

  • Hino / 设计师

    2024年09月24日 14:29:49

    + 关注
    #办公智造#

    低调奢华的哑光黑框架结构与木纹色的柔和自然色形成鲜明对比,让空间或产品设计更具层次感和丰富性。        

  • 张曲峰 / 设计师

    2024年09月24日 14:18:44

    + 关注
    #办公智造#

    从外观上看,该建筑既有国际共鸣的外观和感觉,又有其独特的设计特征。它的形式与历史和环境相呼应,弧形线条、切割和衔接都能让人联想到汽车。周围的地面和停车场经过重新绿化,从街道的视角看过去非常迷人,为员工提供了舒适的户外休息区,让公共交通更加便利,同时减少了热岛效应。        

发布话题

公开