当前位置:首页 > 户型图分析

#办公智造#

阅读 985420 | 粉丝 985420

  • 张曲峰 / 设计师

    2024年09月19日 06:17:29

    + 关注
    #办公智造#

    轻奢风办公空间        

  • 曹杨Young / 设计师

    2024年09月19日 06:15:51

    + 关注
    #办公智造#

    要的就是这种感觉        

  • 小麦庆 / 设计师

    2024年09月19日 05:57:44

    + 关注
    #办公智造#

    公司办公室实景图        

  • 小敏island / 设计师

    2024年09月18日 20:25:39

    + 关注
    #办公智造#

    垂直空间的创意利用
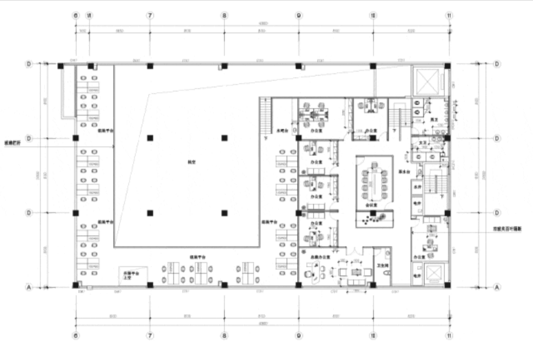
    面对5.2米高的开阔空间,我们采取了垂直扩展策略,巧妙地增设夹层,不仅最大化了空间利用率,还便于俯瞰生产区,提升监控效率。通高位置边缘一圈被规划为开放的工作区,可根据员工的需求和项目的变化进行调整,多元灵活。在“回”字行过道转角处,仿真微生物景观成为空间中的艺术品。在电梯厅等候区,隐形门巧妙地融入logo墙,增强了空间的连贯性。而真·景观绿植盆栽则与logo墙形成对望。        

  • 小敏island / 设计师

    2024年09月18日 20:23:56

    + 关注
    #办公智造#

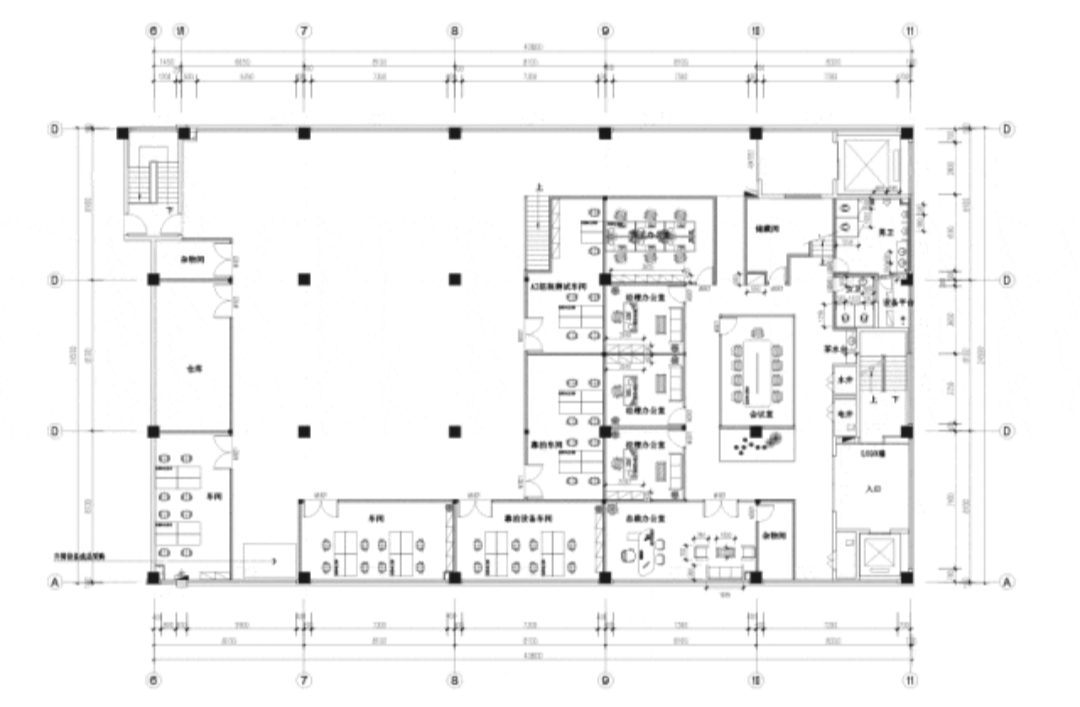
    “回”字形的走廊环绕着会议室,全玻璃隔断设计不仅增强了视觉通透性,也让与会者能够轻松捕捉到室外的动态。在总裁办公室内,一根偏位梁原本打破了空间的完整性,但通过曲线装饰吊顶的设计,我们巧妙地柔化了空间线条,赋予了室内一种和谐而流畅的美感。        

  • Mr.Wang / 设计师

    2024年09月18日 18:35:39

    + 关注
    #办公智造#

    MARS        

  • Camille yu / 设计师

    2024年09月18日 16:48:30

    + 关注
    #办公智造#

    三一众创(1)        

  • Camille yu / 设计师

    2024年09月18日 16:40:00

    + 关注
    #办公智造#

    三一众创(2)        

发布话题

公开