当前位置:首页 > 户型图分析

#办公智造#

阅读 987272 | 粉丝 987272

  • Tina.baby / 设计师

    2024年08月30日 09:24:28

    + 关注
    #办公智造#

    设计团队对以巴斯夫生产的原材料制作的装修饰面、材料和家具进行了研究。随后,在整个项目中指定使用这些产品,因为,研究证明这些产品的来源是低能耗和可持续的。团队内部牢固的工作关系克服了项目进程中出现的许多挑战,包括设计团队提出的将两个楼层连接起来以改善员工之间的联系的建议。建筑原有的结构基础设计并不容易实现开放式连接,但我们共同找到了一个解决方案,既平衡了所有技术和防火限制,又实现了最初提出的设计和美学要求。        

  • 小敏island / 设计师

    2024年08月30日 09:19:29

    + 关注
    #办公智造#

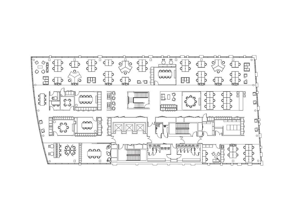
    办公空间设计赏析(1)        

  • 小敏island / 设计师

    2024年08月30日 09:18:24

    + 关注
    #办公智造#

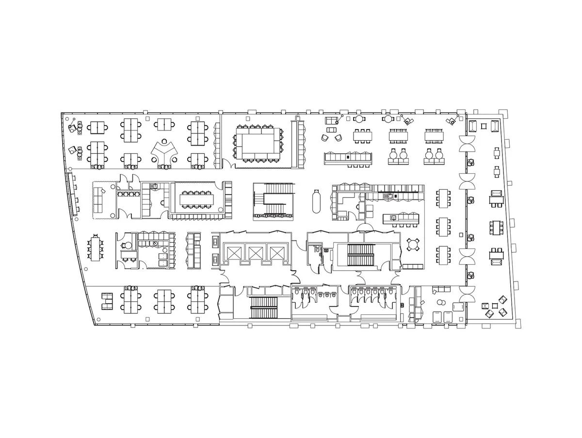
    办公空间设计赏析(2)        

  • 魏馨琪 / 设计师

    2024年08月30日 09:10:04

    + 关注
    #办公智造#

    落地实景(1)        

  • 魏馨琪 / 设计师

    2024年08月30日 09:08:56

    + 关注
    #办公智造#

    落地实景(2)        

  • 江北梅郎 / 设计师

    2024年08月30日 07:01:42

    + 关注
    #办公智造#

    细节把控        

  • Diana / 设计师

    2024年08月29日 22:54:24

    + 关注
    #办公智造#

    设计团队以“自然光合”为设计主旨,提取机构logo的流动曲线与蓝绿色系,为深圳医学科学院量身打造独具辨识度的科研阵地。
    在布局设计中,我们着重营造大开间、大跨度的透视空间,巧妙利用建筑中庭与沿窗区域设置交流场所。同时,我们引入自然元素软化空间的生硬感,赋予其合理的松弛调理。一改以往严谨冰冷的实验室印象,避免理性空间的过度坚硬,实现高效率与人性化的完美融合。室内选材配色符合科研属性,设计团队选用了仿地毯PVC和玻璃隔断等医用级材料,旨在实现空间的洁净和易打理。同时,团队在整体把控天地墙色彩协调统一的基础上,从上百种材料中精心挑选出适配的纹样与质感,确保空间视觉的顺延感。        

  • Diana / 设计师

    2024年08月29日 22:46:25

    + 关注
    #办公智造#

    1F接待大厅、参观通道大型实验设备平台 | 首层大厅融合展示、接待、共享实验室等功能,于左右各设置一处出入口以实现环形参观动线与员工动线的分流。室内大量运用曲线表达,赋予空间富于变化的自然韵律。走廊引入美术馆概念展陈生物学影像,引导观者通过艺术的视角,感知微观世界中旺盛的生命活力。居中的实验区以“蓝色盒子”概念包裹精密实验设备,内向开窗利于采光的同时也拉近来访者与现代化实验室的距离。        

发布话题

公开