当前位置:首页 > 户型图分析

#办公智造#

阅读 987504 | 粉丝 987504

  • 江北梅郎 / 设计师

    2024年08月28日 21:48:23

    + 关注
    #办公智造#

    大家传统的认知中,办公空间中最好的位置都是给管理者的。但在这次设计中,设计团队建议管理者将这些光线最充足或者说视野最开阔的位置全数留给员工,希望员工可以在高强度的工作之余调节紧张情绪与工作节奏。团队在设计中延续了业主希望创建一个安全友好的工作环境的理念,比如开放式的茶水区、员工健身房等空间,都是特别为了员工的身心健康打造的。        

  • 江北梅郎 / 设计师

    2024年08月28日 21:46:22

    + 关注
    #办公智造#

    通过使用木材、混凝土等不同的材料,营造出简约和具有活力的空间。沿墙壁两侧的橱柜有多种使用方法,设计师在上面展示草图或进行自由的手绘创作;橱柜下方安装了可以灵活展示产品的抽屉,最大程度地提高了设计师的工作效率。        

  • MING / 设计师

    2024年08月28日 21:39:22

    + 关注
    #办公智造#

    整得清办公空间设计        

  • 筑先生 / 客服

    2024年08月28日 21:34:30

    + 关注
    #办公智造# ...

  • 曹杨Young / 设计师

    2024年08月28日 21:32:14

    + 关注
    #办公智造#

    前厅logo墙及导视系统        

  • Jason / 设计师

    2024年08月28日 11:09:24

    + 关注
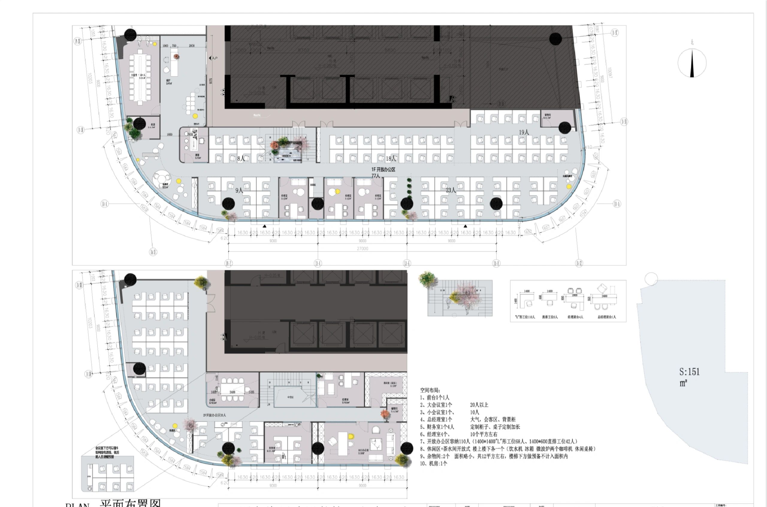
    #办公智造#

    平面布局        

  • 牛皮八哥 / 设计师

    2024年08月28日 11:08:48

    + 关注
    #办公智造#

    办公室实景图        

  • Li hao / 设计师

    2024年08月28日 11:06:40

    + 关注
    #办公智造#

    办公室实景图(1)        

发布话题

公开