当前位置:首页 > 户型图分析

#办公智造#

阅读 988534 | 粉丝 988534

  • 丽旻 / 设计师

    2024年08月13日 21:12:45

    + 关注
    #办公智造#

    公共区采用了高背沙发,使每个空间都有相应的独立性,给在此等候、洽谈、工作的伙伴充裕的个人空间。        

  • 杜飞 / 设计师

    2024年08月13日 21:06:33

    + 关注
    #办公智造#

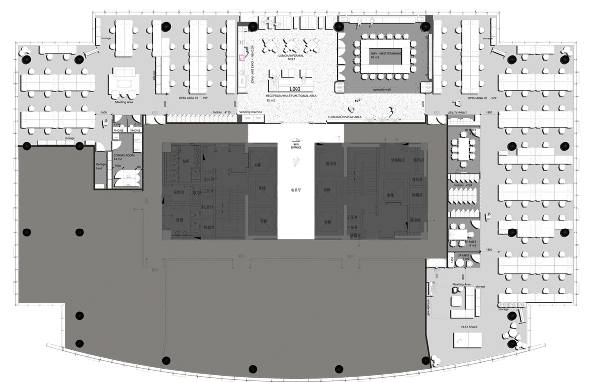
    门厅采用了现代与环保理念的完美结合,设计中融入了自然元素,墙面和地面均采用了大理石材质。接待前台以温暖的木质色调为主,配以清新绿植,既体现了公司的环保宗旨,又营造出亲切宜人的第一印象。电梯厅设计注重功能性与美观性的结合,地面铺设耐磨易清洁的大理石,墙面装饰有石制艺术,照明充足,既方便员工快速通行,也是展现公司形象的重要空间。展厅整体空间以蓝白为基调,重要项目以三维模型和视频资料生动呈现,展示了技术创新的产品,设计师在中心区域精心造景,增添趣味性。        

  • 杜飞 / 设计师

    2024年08月13日 21:04:12

    + 关注
    #办公智造#

    文化长廊精心策划,展示了红色党建和公司的发展历程,从初创时期的艰辛到今日的成就,事业如同红色革命征程。同时辅以高科技互动展示,让参观者深刻感受到了使命与愿景。办公区域是员工日常工作的主要场所,采用半开放式的布局以促进团队协作,大量的留白创造了简约的空间表面,整体空间纯净整洁,有助于提升工作效率与员工的幸福感。会议室作为公司内部沟通与决策的核心空间,配置先进的音视频会议系统。房间设计注重光线与声学效果,设有可移动的桌椅,便于灵活布局,规范的布局营造一个既专业又富有灵感的会议氛围。        

  • 杜飞 / 设计师

    2024年08月13日 21:01:19

    + 关注
    #办公智造#

    食堂作为员工能量补给站,明亮色调体现人文情怀,地面采用灰色大理石砖,强调用餐环境的整洁与舒适。食堂内部分区明确,满足不同员工的用餐习惯。   整体为中式风格,传统红木色为主要基调,配色根据是由客户要求的劳斯莱斯车漆色。设置有小型休息区域,配备舒适的沙发与茶几,为紧张工作之余提供了放松的空间。 董事长办公室配套的贵宾室,是一个专为接待重要宾客设计的高端私密空间。区域展现出公司的尊贵与格调,装修豪华而不失雅致,选用高品质的家具与装饰材料,营造出尊贵和谐的交谈氛围,体现出公司对贵宾的尊重与重视。        

  • 敏颜 / 设计师

    2024年08月13日 13:35:03

    + 关注
    #办公智造#

    空间的构造选取大面积通透玻璃隔断最大限度的将自然光线引入室内,同时也有效的分割空间,用简练的线条诠释现代气息。        

  • 敏颜 / 设计师

    2024年08月13日 13:33:40

    + 关注
    #办公智造#

    选取温和的木饰面与墙布来增加空间档次,在承载办公属性的同时设置水吧与书吧,配合暖色照明,可以很好的让员工放松身心。        

  • 饶阳 / 设计师

    2024年08月13日 12:57:57

    + 关注
    #办公智造#

    此次办公的入口设计简约明快,木质饰面与浅白石材台面组合,搭配暖色氛围光诉说空间意境。环形的动线设计增添空间趣味也契合了企业“环球”理念,在方寸之间营造不甘平庸的非凡态度。通往办公区的一侧是多功能厅,在设计时将豪华酒店的设计手法引入其中,用高隔断转门序列替换常规出入口,在这里张扬和内敛被重新排列组合,以全新的形式,吸引目光,演绎空间性格......        

  • 饶阳 / 设计师

    2024年08月13日 12:55:38

    + 关注
    #办公智造#

    办公区设计干练而直接,长线条的办公照明搭配深色办公PVC,将高效和商务的办公氛围进行展现。CEO办公室设计融入豪华东方情怀,背景墙柜体内衬硬包提升质感,顶面现代几何造型与蕴含中式风雅的陈设结合,灯光布局体现空间美学。

发布话题

公开