当前位置:首页 > 户型图分析

#办公智造#

阅读 989227 | 粉丝 989227

  • MING / 设计师

    2024年08月08日 05:45:10

    + 关注
    #办公智造#

    科技公司总部办公        

  • 张曲峰 / 设计师

    2024年08月08日 04:30:15

    + 关注
    #办公智造#

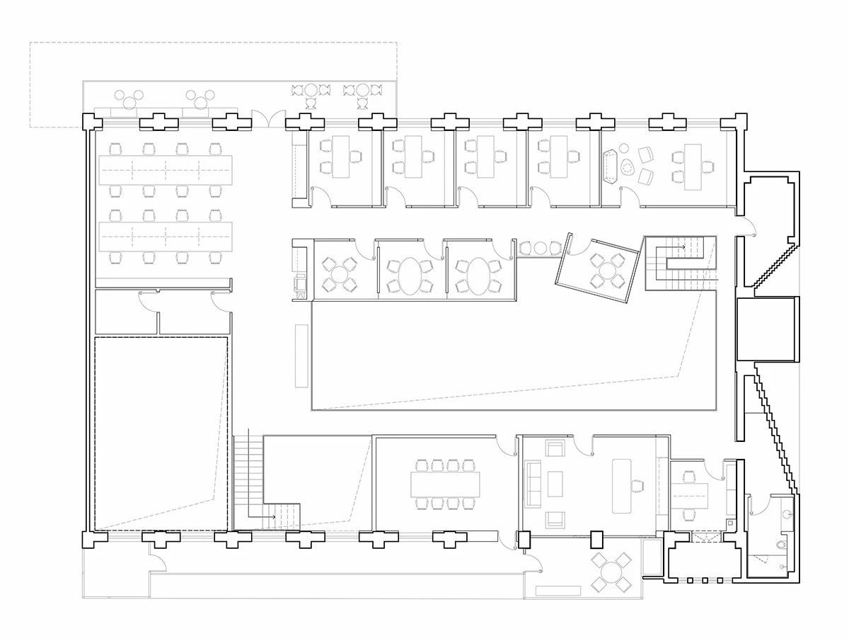
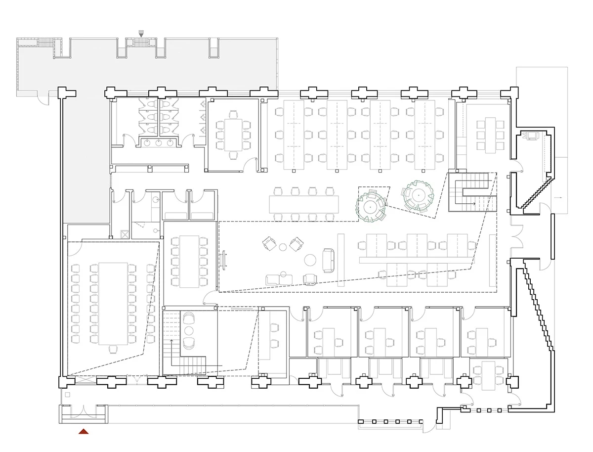
    广场的西边为建筑出口,南、北和西边形成上下两层的结构,南边上下两层、北边的上层和西边的下层为独立的房间,北边下层为开放的办公区,广场则变成兼顾等候、洽谈、路演、灵动办公、团队交流的多功能区域,而广场北边的上层悬空横挑出来四个玻璃盒子:三个顺接连排,稍微错开后,一个斜靠,形成四个俯视广场的独立会议。悬挑方块、阳光广场,以及屋顶悬架一起,营造出富有节奏感的空间主旋律。        

  • 张曲峰 / 设计师

    2024年08月08日 04:28:25

    + 关注
    #办公智造#

    整个项目的主入口在建筑南边靠西的地方,单独设计了一个简约的方形门头,南边大门进入,然后右转从东边推开第二扇玻璃门,进入一道长长的外加的玻璃走廊,走廊的北面就是红砖的建筑外墙,依次是大会议室(挑空层高),前台(往北穿过前台就会进入内部广场),然后是若干小的封闭的独立洽谈室或工作间,形成了一个完整的、对外的会议区。        

  • 张曲峰 / 设计师

    2024年08月08日 04:26:28

    + 关注
    #办公智造#

    红砖外墙、深木色的屋顶结构,加入深灰色金属板墙面和门框、黑色描边瓦楞玻璃栏杆、灰色地毯、点缀蓝色布艺,严谨分布的自然舒展植物形态,都是极其简约的构造手法,只为了让阳光和结构都尽可能保留空间最原始的状态,于看似无用处,全力以赴!        

  • 毛均峰 / 设计师

    2024年08月08日 04:09:59

    + 关注
    #办公智造#

    新晨科技办公室实景图        

  • RIDICULOUSNESS / 设计师

    2024年08月08日 04:08:10

    + 关注
    #办公智造#

    知恒律师事务所成都办公空间设计

  • 王倩 / 设计师

    2024年08月07日 18:44:43

    + 关注
    #办公智造#

    摩根麦肯立        

  • 江北梅郎 / 设计师

    2024年08月07日 18:27:47

    + 关注
    #办公智造#

    新全优教育 | 教育与办公空间的重置与趋势        

发布话题

公开