当前位置:首页 > 户型图分析

#办公智造#

阅读 989822 | 粉丝 989822

  • 夏毅 / 设计师

    2024年08月03日 07:27:28

    + 关注
    #办公智造#

    浩信律所办公空间        

  • 丽旻 / 设计师

    2024年08月03日 07:25:48

    + 关注
    #办公智造#

    Nitro与周围邻里和户外广场无缝融合,连接了亚马逊的多栋建筑,打造了一个连贯的社区空间。Nitro的较低层作为一个吸引人的中心,提供便利设施和与上层不同的工作空间环境。这个“能量中心”围绕大楼梯和流通空间而建,增强了连接性,营造出一个员工每天都热情使用的难忘场所感。        

  • 丽旻 / 设计师

    2024年08月03日 07:22:41

    + 关注
    #办公智造#

    Nitro不仅仅是一栋办公楼——它是一个动态的枢纽,汇集了合作、创新和社区,体现了亚马逊为其员工创造鼓舞人心和有意义的空间的承诺。        

  • Ellen / 设计师

    2024年08月03日 07:18:11

    + 关注
    #办公智造#

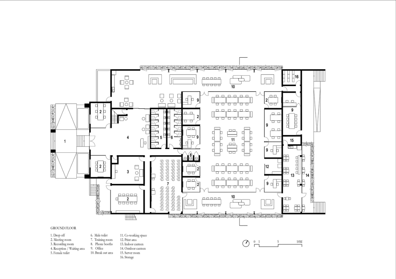
    将废弃的仓库视为空白画布似乎容易,但将其转变为既具有创造性且舒适的工作场所,就要比预期更具挑战。该项目被Bloom建筑事务所成功转变为金边的标志性创意中心。
    他们最初的中央花园中庭概念不实用,设计师理解并内外反转了这个概念,实现了灵活、绿色的社交空间围绕中央办公空间的设计。这种布局在内部空调空间和外部环境之间创造了自然通风的缓冲区,允许纵向立面完全开放,引入自然光线。        

  • Ellen / 设计师

    2024年08月03日 07:16:04

    + 关注
    #办公智造#

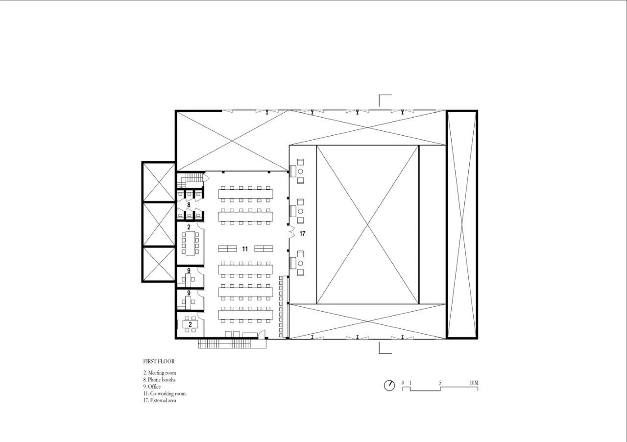
    内部区域凭借25米x60米的无柱跨度和8米的天花板,展现了仓库的大空间。公司现在可以最大限度地利用集体工作的机会,以及外部区域提供的灵活性、隐私和社交潜力。        

  • 小海 / 设计师

    2024年08月03日 06:51:23

    + 关注
    #办公智造#

    律所办公空间        

  • 木子李 / 设计师

    2024年08月02日 09:34:01

    + 关注
    #办公智造#

    接待区旨在传递温暖,同时突出品牌特色。尽管强调高科技,但暖色调避免了空间的冰冷感。入口处的醒目位置展示了品牌标识,确保了品牌的直接识别性,精心规划的展示路线使设备的展示不失美观和功能性。
    作为展示的核心重点区域,展厅强调智能科技的氛围。公司的口号 “为中国芯赋能 ”被提炼并融入到设计中,芯片模型元素被放在突出位置。展厅布局在不破坏整体设计的前提下,确保了完整的展示路线和相应的展示设备功能区。
    在主办公楼层,企业形象墙采用了企业的核心色--红色,并通过芯片造型元素和镜面材料营造出半透明的视觉效果。这为设计增添了活力和现代科技感。        

  • 夏毅 / 设计师

    2024年08月02日 08:53:15

    + 关注
    #办公智造#

    办公落地照        

发布话题

公开