当前位置:首页 > 户型图分析

#办公智造#

阅读 990044 | 粉丝 990044

  • 毛均峰 / 设计师

    2024年07月28日 12:14:43

    + 关注
    #办公智造#

    木纹办公空间(2)        

  • Camille yu / 设计师

    2024年07月28日 12:12:55

    + 关注
    #办公智造#

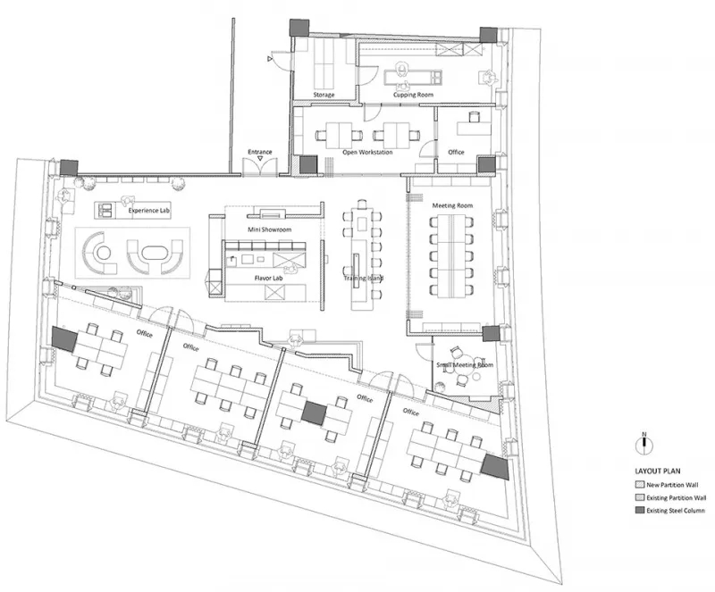
    BASAO总部新办公室,除了传统办公场景外,还置入了集展示,研发,零售模拟等多重功能模块,能够回溯品牌核心的“空中茶园”。        

  • Camille yu / 设计师

    2024年07月28日 12:11:36

    + 关注
    #办公智造#

    在设计上,我们将景观作为品牌叙事的拓展线索 – 茶园层叠的韵律与茶农的劳作,被延续成为办公空间的丰富层次与团队架构的社群协作。独立办公被放置在自然采光最好的空间边侧,围绕着中心区域环环相扣的协同功能组团,结合由不同轴线和视角定义出的洞口设计,形成具有穿透感的空间层次。        

  • Camille yu / 设计师

    2024年07月28日 12:10:05

    + 关注
    #办公智造#

    我们为了避免过多使用同一材质所带来的单调感,选择在统一的氛围下,叠加自然属性相似但视觉效果有所变化的多种肌理,用以丰富空间的细节和触感。对于照明设计,我们则根据场地条件和使用功能去规划适配的照明方式,比如在自然采光优越的独立办公空间里,人工照明就会尽量弱化,只做辅助型柔和照明,让自然光线成为主角;在相对幽暗的人工光占主导作用的场景里,照明设计则会考虑多重层次,烘托出丰富的场景构建。        

  • 张曲峰 / 设计师

    2024年07月28日 07:39:04

    + 关注
    #办公智造#

    办公空间赏析        

  • 张小葵 / 设计师

    2024年07月28日 07:37:22

    + 关注
    #办公智造#

    中律律师事务所办公室        

  • 魏馨琪 / 设计师

    2024年07月28日 07:36:03

    + 关注
    #办公智造#

    中伦律师事务所办公空间

  • 刘君雅 / 设计师

    2024年07月28日 07:30:45

    + 关注
    #办公智造#

    德恒律师事务所办公空间

发布话题

公开