当前位置:首页 > 户型图分析

#办公智造#

阅读 990277 | 粉丝 990277

  • 王倩 / 设计师

    2024年07月19日 17:43:27

    + 关注
    #办公智造#

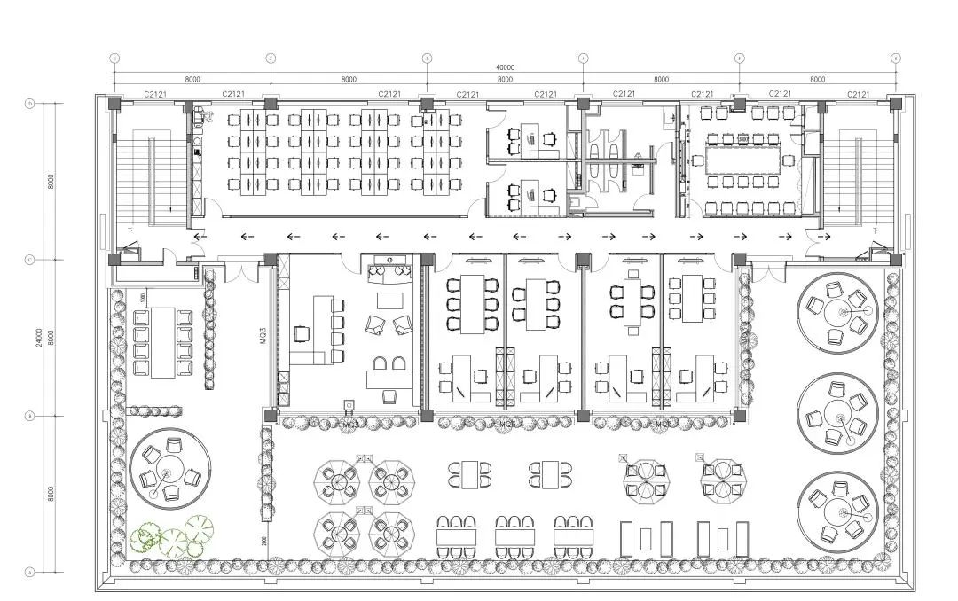
     MO BOX为开放式办公区提供了一个理想的多功能空间。为独立思考、私密电话、调节工作状态等,都能嘈杂的环境中找到安静、高效的工作和放松之地。        

  • Diana / 设计师

    2024年07月19日 17:38:13

    + 关注
    #办公智造#

    设计师聚焦“回归光的本质”,对光的种类、出现型态、色泽明度与动态转变进行分析,基于室内光环境,营造出光与空间的最佳相融状态。作为非传统型的办公空间,情境的无界化串联,恰如镜头的自由切换,让体验者的视线,在光的引导中,时时有豁然开朗的感受。
    光从自然界来,自带晕染情景的“天赋”,将生活美学和盘托出,连接艺术感知与实际生活,使空间的体验感具有无限可能性。设计师在前厅区域,通过对自然光线的运用,凸显空间的清晰布局,触动人的视觉感官,演绎通透、开放之境的魅力光影。

  • Diana / 设计师

    2024年07月19日 17:36:21

    + 关注
    #办公智造#

    精神上的秩序,通常经过空间的引导而被建立,体验者的感知,便决定着空间是否能成为情绪的互补物。光源与线条塑造出空间简洁干练和理性的视觉表达,烘托会议室删繁就简的洗练气质,平直线条,横纵勾勒,空间立体感与精简得当的序列,由此而生。
    木饰面以金属卡条收口,以璀璨光感为空间隐去威严,与地毯带来的地面表述交相辉映,形成视觉张力。顶部的漫射柔光,如丝绦轻抚,与置物架的壁灯相映成趣,交织的明暗光影,被定格为传递精致生活的情绪符号。切割分离的石质茶几,经过两处色调的对冲,呈现若即若离的动态美感,赋予室内环境“静中有动”的思辨意味。        

  • Diana / 设计师

    2024年07月19日 17:34:37

    + 关注
    #办公智造#

    作为一家专业的影视公司,“故事感”的创造,始终是一个不变的命题,而将“故事感”诉诸办公空间,则是以物质载体延续品牌形象的应有之义。从步入影音室开始,沉浸式的时空,不断打破体验者在职能场域里的“办公角色”,颠覆传统的身份认知。        

  • Diana / 设计师

    2024年07月19日 17:33:08

    + 关注
    #办公智造#

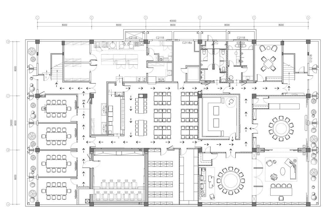
    餐厅与茶吧的结合,以最大的容纳度,让个体的无间关系,趋向于零距离状态。原木风包裹的返璞归真之境,经由传统审美法则指引,在潮流生活中被再造、渲染。在时代趣味与精神气韵耦合的过程中,办公群体开始向“社交共享者”这一角色转换。        

  • 夏毅 / 设计师

    2024年07月19日 16:45:47

    + 关注
    #办公智造#

    新联胜信科办公空间施工过程图        

  • 夏毅 / 设计师

    2024年07月19日 16:44:33

    + 关注
    #办公智造#

    新联胜信科办公落地图        

  • 杨焱 / 设计师

    2024年07月19日 16:42:16

    + 关注
    #办公智造#

    办公室实景图        

发布话题

公开