装修案例
灵感美图
找设计
找工长
看工地
记住密码
我已阅读并同意注册协议
发布话题
通过大色块的灯光,和绿色元素的健康和自然形态,巧妙融合了白色的大气,空间的沉稳,刚中带柔,营造出一种丰富而不失格调的层次感。呼应并延续了整体的设计风格,保持高度的一致性,在宽阔硬朗的大空间内,对话一个企业的过去与未来 。
办公室设计
办公空间赏析
办公室造景
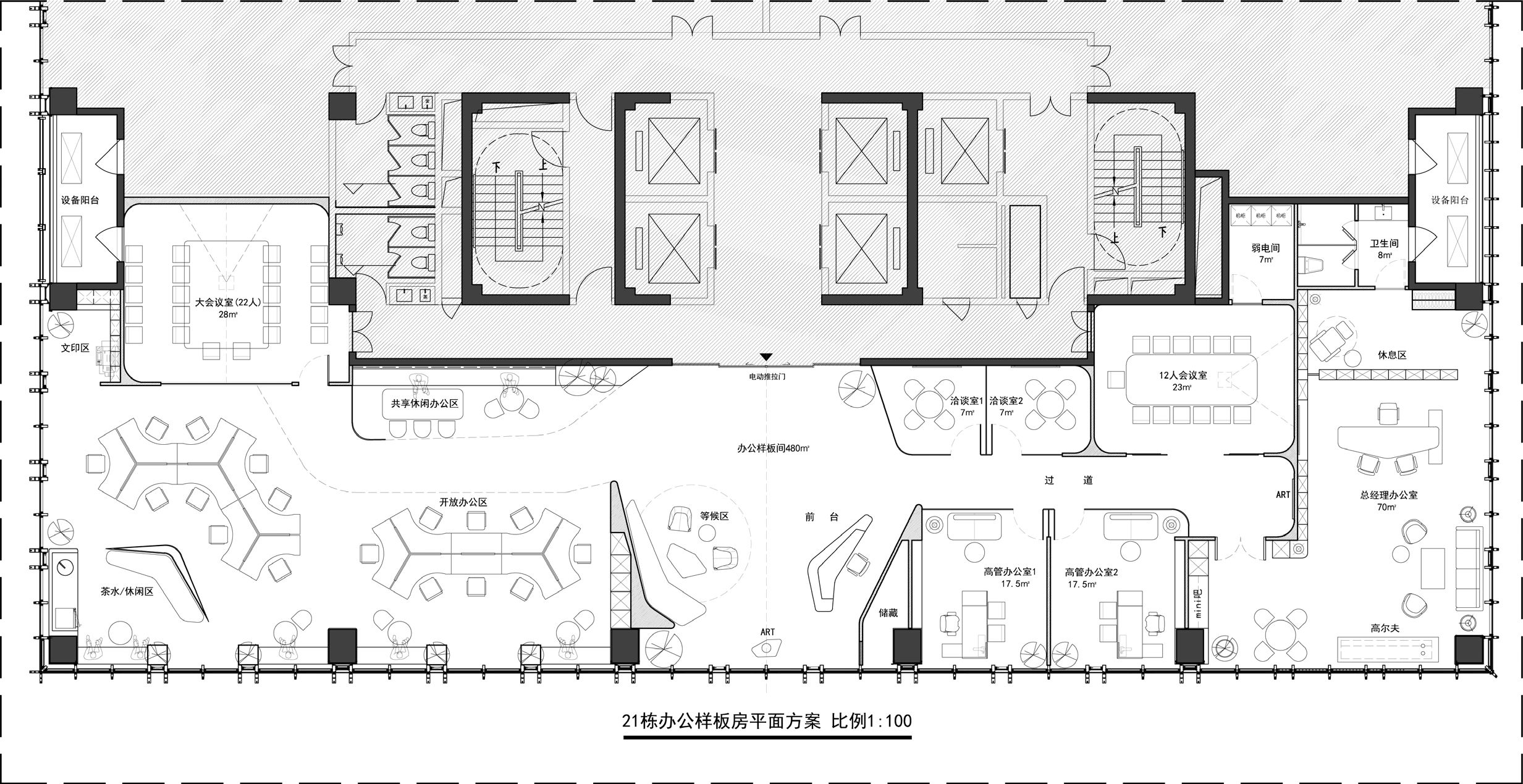
办公空间样板房设计
施工过程图(1)
施工过程图(2)
施工过程图(3)