当前位置:首页 > 户型图分析

#办公智造#

阅读 991305 | 粉丝 991305

  • 张小葵 / 设计师

    2024年06月27日 21:55:08

    + 关注
    #办公智造#

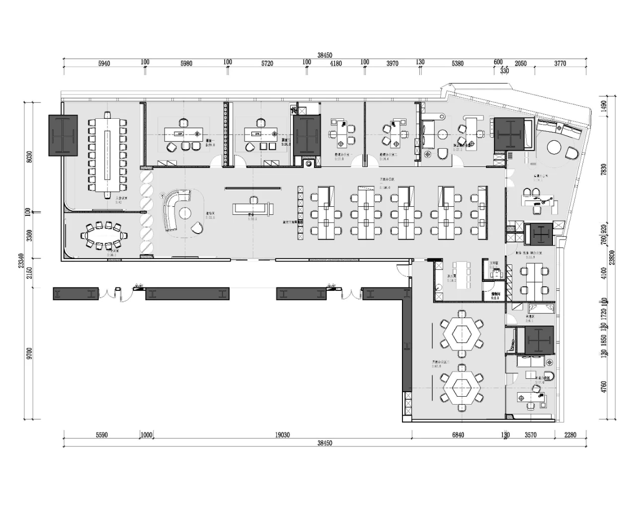
    材质上,渐变亚克力、木饰面、哑光不锈钢、灰色塑胶地板、黑色木格栅长城板、烤漆玻璃等材料的运用对整个空间的高级质感的营造起到了至关重要的作用。        

  • 江北梅郎 / 设计师

    2024年06月27日 16:42:53

    + 关注
    #办公智造#

    大厅空间设计简约而大气,巧妙地融合了石材的坚固与木饰面的自然温润。这种组合不仅展现了空间之美,更在细节中流露出高雅的韵味,为整个空间注入了独特的品质感和尊贵的高级氛围。        

  • 江北梅郎 / 设计师

    2024年06月27日 16:42:10

    + 关注
    #办公智造#

    茶水区的设计独具匠心,充分考量了空间协调与平衡的原则,巧妙地与前厅空间融为一体。这里不仅是一个休息放松的理想场所,更是接待访客、进行社交互动的绝佳选择。作为一个多功能的开放空间,茶水区让每个人都能轻松欣赏到窗外的迷人景色,空间的视觉感受因此得到了延伸。
    整个会议空间的设计,不仅注重了美观与实用性的结合,更在细节之处体现了设计师对于人性化和灵活性的深入思考。大会议室中部巧妙设置的隔断门,更是满足了会议空间的多功能需求。这种灵活变化的设计主题,不仅提升了空间的实用性,更赋予了它更多的可能性。
    独立办公室设计以空间的舒适性为出发点,温润柔和的木色作为空间的整体底色,为办公环境增添了一种温暖而自然的氛围。白色的墙面则巧妙地与木色家具相搭配,为空间注入了明快轻松的气息,同时也提升了整体空间的明亮度和开阔感。        

  • 王建 / 设计师

    2024年06月27日 16:14:51

    + 关注
    #办公智造#

    运动馆效果图        

  • 超哥 / 设计师

    2024年06月27日 15:52:47

    + 关注
    #办公智造#

    办公空间实景        

  • 饶阳 / 设计师

    2024年06月27日 15:25:15

    + 关注
    #办公智造#

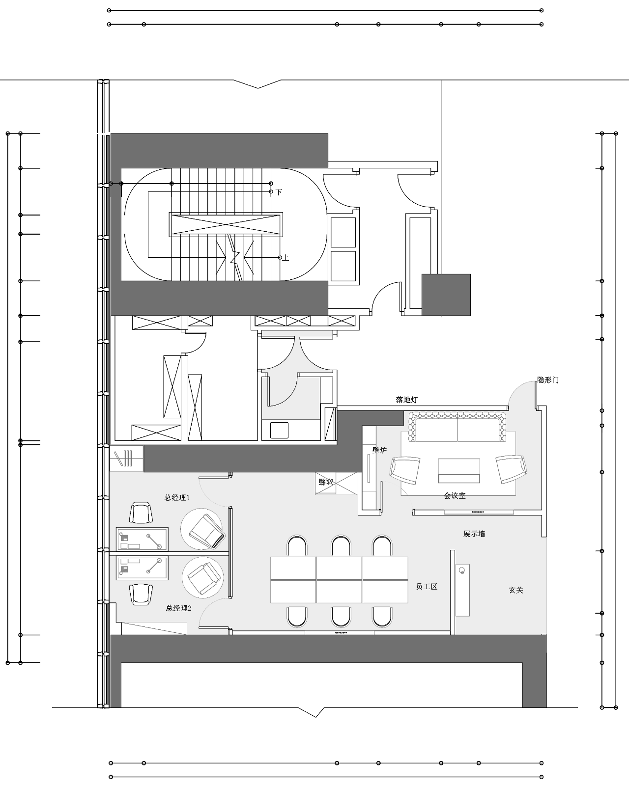
    入门玄关区,留一束光源打在纯铜logo上,左边墙面是该公司成立以来的辉煌证书,右边墙面则是挂了三幅黑白摄影作品(阿波罗登月、人类登月脚印、the king of the top迈克尔杰克逊),以艺术的方式引领客户走向办公室内部。
    会客厅融入了墨绿色,金属、大理石等元素,营造一种家的氛围,沙发的侧面做了隐形门并加以装饰,让空间多了一份惊喜。员工区的背景墙运用了岩板,让空间不那么压抑,员工桌全部采用的是升降桌,人性化办公。
    总经理室采用雾化玻璃隔断,平衡员工区的光线和总经理室的隐私。        

  • 毛均峰 / 设计师

    2024年06月27日 14:46:31

    + 关注
    #办公智造#

    沉浸式厂房办公体验(1)        

  • 毛均峰 / 设计师

    2024年06月27日 14:45:24

    + 关注
    #办公智造#

    沉浸式厂房办公体验(2)        

发布话题

公开