当前位置:首页 > 户型图分析

#办公智造#

阅读 995556 | 粉丝 995556

  • MING / 设计师

    2024年05月19日 06:26:55

    + 关注
    #办公智造#

    分为四层区域;兼顾不同使用功能。设计采用了黑白的色调搭配,简洁而不简单,显得非常的大气有内涵,彰显了公司的底蕴和专业。
    一楼:为入户门厅,数控操作、电梯等功能;设计整体外观以现代简约为主体,在一楼大厅设计了公司形象墙,荣誉展示柜。前厅部分简洁的搭配运用不同材料质感的碰撞与灯光线条的点缀,简约又不失精致。
    二楼:设计成休闲运动区域;兼顾档案室、库房等功能。保持原层高选择了原顶喷漆,地面采用地毯来增加线条感。四面玻璃自然采光,把休闲和运动区域设计在二楼,在满足功能性的前提下,可以提升空间视觉效果和空间体验度。
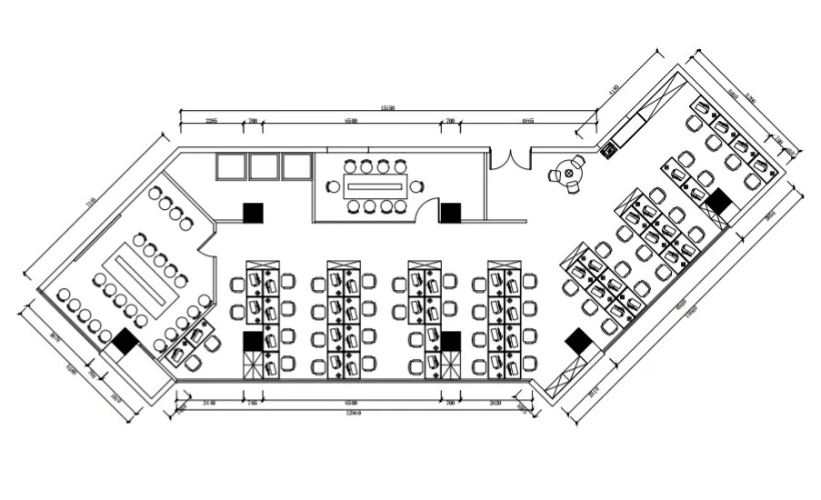
    三楼:办公区域还是采取了简洁的设计风格,以灰色系列为主,白色墙面相搭配,视觉上既缓解工作疲劳,又满足办公时高效的工作效率。另外在办公桌位旁摆放有绿植为点缀,让整个空间充满活力与生机。通过深浅色调的搭配,整个空间显得明亮整齐,给人一种舒适感
    四楼:董事长办公和经理办公室,相比较更加安静私密一些。一层楼分为不同的独立办公室,在大厅位置放置一组会客沙发。在设计上,选择了简单舒适的设计风格,选用的都是简约的办公家居,通过书架和工艺品的点缀,彰显了主人专业、干练的气质。
    四楼户外花园;花园感觉现代简约,和室内的设计协调统一,花园功能作为室内使用功能的一个户外延伸。植物上并没有太多的开花植物,基本以常绿为主,方便打理及养护,正因为植物品种不多,反而让花园更纯粹。同时增加围合的格栅屏风,保证了花园使用的私密性。        

  • Alice / 设计师

    2024年05月19日 06:22:54

    + 关注
    #办公智造#

    简洁、利落的几何形体划分布局,创造出形态各异又相互连接的空间,既改善了封闭式办公室冷清沉闷的办公环境,又确保了空间的通透和连接性。为员工营造出一个充满活力的办公空间,让工作不再枯燥乏味。
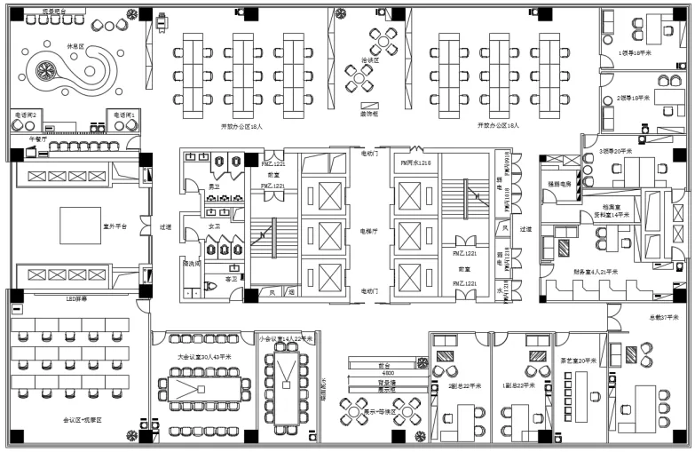
    对于办公空间而言,似乎规整的横平竖直更为常见,本案入户摒弃传统前台接待,设计成休息等候区,开放灵活,兼具洽谈功能。整体空间张弛有度,兼容并蓄。整洁素雅的基调,几许的自然绿植,简约的几何形态,错落有致,在静谧的空间内散发独有的艺术魅力。
    办公空间采用的是暖色调设计,橙色富有生命活力,让人精神饱满、积极向上。暖白与橙色搭配,让办公室年轻化,提升了办公空间的亲切度,给予员工家的温暖。
    小会议室的长条桌和长条走廊相呼应,线条带来绵延感,延伸了视觉的边界。大会议室在满足功能的需求上采用点线面的设计手法,墙面选择乳胶漆处理,方便设计成投影形式,顶面灯光采用线条吊灯、显得沉稳严肃,灯带的设计使枯燥封闭的办公空间显得柔和又有时尚感。        

  • Muen沐恩 / 设计师

    2024年05月19日 00:52:39

    + 关注
    #办公智造#

    办公空间设计        

  • 九可JOKER / 设计师

    2024年05月19日 00:48:47

    + 关注
    #办公智造#

    办公室实景图        

  • Design 陈 / 设计师

    2024年05月18日 23:49:18

    + 关注
    #办公智造#

    前台背景墙墙面以大理石艺术造型,整体简约大气且现代时尚。原木色的木制面展示真实自然天然美感,让整个空间更加和谐自然。一抹绿植让整个空间构图焕发生机。
    设计师将交流区设置成独立空间,以动线将空间加以划分,做到分合有序。方通的吊顶搭配艺术灯具赋予空间层次感。让人置于空间中体会轻松之感。
    大面积落地玻璃使得空间视觉最大化向外延伸,用光影、明暗的更替去表达空间的纯粹,用最简单的形式、元素、色彩去塑造空间的气质。缥缈又具体的艺术品置于空间中,充满灵动与活力。
    董事长办公空间设计关键词就是简约、时尚。色彩使用黑白灰三种色系加入暖色调搭配整个办公相呼应。高低形体之间的相互组合打破空间的单一节奏秩序,形成空间之间的交互与对话。
    玻璃与大理石搭配给予普通材质生命力,打破呆板,渲染了空间气韵,构建出一自然惬意绘卷。        

  • 张小葵 / 设计师

    2024年05月18日 23:45:30

    + 关注
    #办公智造#

    绿植构建背景墙生机盎然,搭配白色工作台纯洁简约,营造出自然原生的美。自然生态与简约元素和谐的运用在空间中,流动通透地相互延伸,简洁但富有灵动的生命气息迎面而来。
    办公空间的简洁与纯粹从这纵横交错的垂直水平立面被构建出来。极简、空灵的设计笔触,呈现视觉上的碰撞与冲突,赋予空间灵魂。在空间上都能寻到自然的痕迹,变化万千。木纹温润的质感让整个空间拥有了沉淀的气质。
    休闲空间采用工业风打造,极简复古造型的灯具搭配自由随性的吧台,这样自由的环境更能让人们放下工作的疲惫,享受惬意的休闲时光。        

  • 毛均峰 / 设计师

    2024年05月18日 23:26:32

    + 关注
    #办公智造#

    本案设计剔除一切繁琐的办公室装修设计元素,根据建筑的形式用最直白的装饰语言体现空间和家具所营造的氛围,进而赋予空间以个性和宁静。
    接待大厅采用柔和简的风格,以木元素为核心,简单的色彩构成、干净利落的线条,表现出来的沉静与现代感让人舒适。
    木饰面自带天然肌理,以温和的力量,打造舒适空间,而绿植的点缀,更为空间增加了不少生趣。少量灯光运用、玻璃的运用,则增加了空间通透性与丰富性。
    茶室作为客户接待洽谈的主要场所,以现代中式为基调,打造颇具中式韵味的格调空间。空间线性的细节形成了原始的设计构思,穿插的变奏简洁而抑扬顿挫。
    没有一丝多余的繁杂形式,用白灰色调书写空间,引入自然光线,点缀清新绿植,呈现出一个冷淡而又舒适的办公空间。        

  • 毛均峰 / 设计师

    2024年05月18日 23:24:17

    + 关注
    #办公智造#

    大面积的落地玻璃充分将阳光引入室内,光影和空间的结合,是表达对空间的张力的大胆挑战,也是空间给我们带来的视觉呼吸感。
    去除繁冗的造型,简单的白色也是一种思考状态。底面的光影延伸到整个空间,增加了空间表现其本质的魅力。
    没有过多装饰的会议室,原木中性的会议桌,灰色平静的地毯,以确保与会者能够专注于会议内容,于是形成了一个现代与简约风的空间。        

发布话题

公开