当前位置:首页 > 户型图分析

#办公智造#

阅读 998079 | 粉丝 998079

  • 魏馨琪 / 设计师

    2024年04月26日 19:49:38

    + 关注
    #办公智造#

    本次空间,设计师希望能够通过空间与产品之间的联系,让参观者的记忆点加深,营造一个顺畅,宽敞,体验感强的空间环境。
    设计师尝试提取空间关键词,不同的楼层都展示集团的多样化与包容性,不同的产品都能在此找到合适自己的空间与定位与展示其品牌的独特性与唯一性。
    电梯厅作为参观者的第一视线,也是奠定空间基调的第一空间,因此设计师选择在材料上做出区分,运用木饰面与毛毡板墙面的材质,为展厅空间拉开序幕。
    错位与悬浮的元素成为空间的一部分,它们巧妙地与环境融合,营造出一种动态感与未知感,吸引着参观者的探索。空间高差的变化使得不同区域拥有独特的氛围与功能。
    高挑的空间为设计提供了更多的可能性,同时也具有局限性。设计师希望赋予空间的感觉是干净的,整体的,有记忆点的,因此作为空间视线的最高点的天花便是设计重心,错层造型配合变色的灯光,让参观者更加记忆深刻。        

  • 魏馨琪 / 设计师

    2024年04月26日 19:46:35

    + 关注
    #办公智造#

    电梯厅入口通过丰富材质之间的碰撞创造出有格调的氛围,融合了技术空间和建筑手法,引领参观者开始探索不同的品牌展厅空间。
    独具匠心的创新布局和细节把握,去繁就简,追求极致的制作工艺,赋予品牌空间更多可能性与创造价值,这是我们设计团队所要展示的“内核”所在。
    明和暗的差异自然地形成室内外不同空间划分的心理暗示。光的微妙的强弱变化造就空间的层次感,光渲染气氛:晴空万里,细雨连绵,不同的环境带给我们不同的心情,这当中光的变化起着重要作用。光渲染的气氛对人的心理状态和光环境的艺术感染力有决定性的影响
    展厅空间设计应该注重流线和空间分割,同时注重空间美感和舒适度。满满的细节工艺,也蕴含着无处不在的艺术感,深入感知产品的细腻,明与暗的空间对比,衬托了空间展示设计的意义。
    在自然光影的照耀下,室内营造的氛围也将更为突出,并更好地展示产品。通过玻璃砖透明材质、在光影的照射下,往往会产生宛如幻境的意境和富有朦胧感的艺术氛围。        

  • 魏馨琪 / 设计师

    2024年04月26日 19:43:57

    + 关注
    #办公智造#

    专业灯光团队打造,才能达到最好的展示效果。在灯光设计方面,我们使用暖色调的灯光来烘托金属板的质感和颜色,营造出温馨,舒适的环境氛围。
    光,赋予空间灵魂和生命,让空间被感知,随着时光推移,光影斑驳,建筑的边界与线条与光影纵横交织,为空间注入了情感及温度。
    本层空间通过透景,错位,悬浮,解构等手法,巧妙地利用错位和高差的设计,增添了空间的立体感和趣味性。
    通过解构主义的设计风格,流线性的空间布局,动感的陈列与展示,以及年轻人喜欢的色彩和灯光搭配,设计师帮助品牌方完成了品牌的提升与更新。这样的室内设计能够吸引更多年轻顾客踏入本案空间中,并在其中找到属于自己的独特体验。        

  • 魏馨琪 / 设计师

    2024年04月26日 19:41:10

    + 关注
    #办公智造#

    在简约的空间中拆分场景深化,通过将每个产品的不同空间以多元效果实现风格适配性,优化空间动线打造开放性参观动线,创造了一个开放、通透流动的室内空间。
    品牌产品迭代的速度快,因此设计师期待为空间增加更多商业赋能,确保顾客在有限的空间内快速了解和关注到核心产品。
    设计利用材质、光、色等元素强化顾客体验和参与感,将产品与艺术,感性与理性完美融合,鼓励顾客在空间内互动、感知、游走、体验。
    在空间设立的楼梯,增加了七层和八层的联动性,在有限的空间中增强顾客体验感,从而拉长访客在空间内的停留时间,便于顾客自由参观体验之余,强化了产品与用户之间的互动性。
    展厅设计理念强调功能性、简约性和艺术性,通过色彩、材质与周围的环境相呼应,艺术与工业生产相结合,形成一个和谐统一的整体,从而增添空间的艺术气息和美感。
    以一条直线走到底参观动线将两侧的展示空间分化内与外,拉开了开放与私密属性,实现了错位,交织,疏离,弱化了空间边界感,创造了空间的自由与流动,实现空间的无界。        

  • 魏馨琪 / 设计师

    2024年04月26日 19:36:40

    + 关注
    #办公智造#

    通过简化不必要的装饰性语言,让注意力回到产品本身,在一明一暗之间拓展了空间纵深感,引导访客实现向前延伸,进行进一步的探索。
    在有限中创造无限,产品独立的立体结构通过空间的串联,形成隔而不离的流动动线,虚实之间,减缓了人们在参观的时间节奏,实现了简洁而丰富的体验效果并将空间最大利用化。
    圆形的天花结构与光的渲染,将空间呈现一种向上拉伸的即视感,丰富了空间艺术性,柔和了产品造型的棱角感与空间方正的硬朗感,让空间褪行,将访客更易放松并聚焦到产品本身,从而达到沉浸式体验。
    空间巧妙利用产品独特结构将独立的场景串联,营造出整合的秩序感;极简、品质感的空间语言与产品的追求的品牌理念相得益彰,实现空间最大化的同时,又返璞于产品之上。一切围绕空间,一切聚焦于产品。        

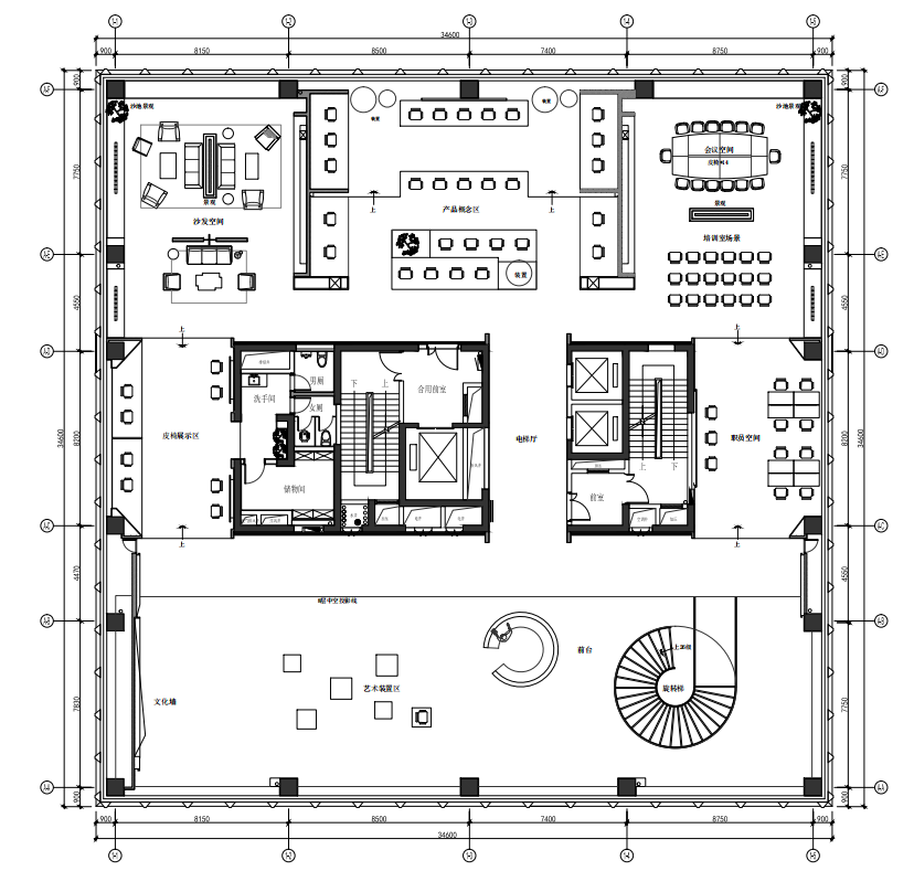
  • 牛皮八哥 / 设计师

    2024年04月26日 16:40:53

    + 关注
    #办公智造#

    办公室实景图        

  • Diana / 设计师

    2024年04月26日 10:34:08

    + 关注
    #办公智造#

    诺特拉斯        

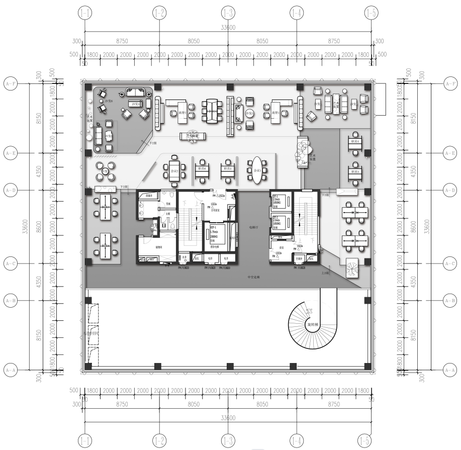
  • 王倩 / 设计师

    2024年04月26日 10:27:53

    + 关注
    #办公智造#

    办公空间设计(1)        

发布话题

公开