当前位置:首页 > 户型图分析

#办公智造#

阅读 998901 | 粉丝 998901

  • 毛均峰 / 设计师

    2024年04月20日 16:28:19

    + 关注
    #办公智造#

    连廊通道是空间设计中一亮点,通过连廊空间把整体空间形成环形动线增加空间趣味性,丰富空间结构。

  • 饶阳 / 设计师

    2024年04月20日 13:27:15

    + 关注
    #办公智造#

    入口处,曲线木作的运用,削弱直线带来的冲突感,为空间注入了流动与灵动的气息。格栅玻璃隔断在保证前台人员私密性的前提下,通过其通透性引入自然光线,让接待空间在视觉上更加明亮开阔,达到了既实用又美观的双重效果。
    在空间的布局上,利用走廊作为纽带,串联起各个功能区域。走廊两侧玻璃有效减少了房间之间的视觉阻挡,使得整个空间更加通透与干净。大面积的艺术画,通透的自然光线,一路点亮创造者的想象力和灵感,让抵达办公室的的路程也不再枯燥。
    设计充分发挥空间的通透与流动性,打造充满活力与创意的工作环境。为实现空间的极致利用,在开敞办公室中设置了多功能的共享区域,如茶水区,洽谈区,休息区及打印区等,形成可以高效服务于办公区的office hub,通过其多元化的功能满足员工的不同需求,促进团队之间的交流与协作。        

  • 饶阳 / 设计师

    2024年04月20日 13:25:27

    + 关注
    #办公智造#

    光、木质、金属结构,质感各异的元素搭建出沉稳平和的空间情绪,艺术画为空间注入优雅的艺术气息。总经理办公室呈现了一个更加亲切、舒适、放松的办公氛围。

  • 喀秋莎 / 设计师

    2024年04月20日 11:21:12

    + 关注
    #办公智造#

    中建三局钢结构事业部办公室        

  • 喀秋莎 / 设计师

    2024年04月20日 11:19:26

    + 关注
    #办公智造#

    中建三局钢结构科技办公室        

  • 毛均峰 / 设计师

    2024年04月20日 07:03:21

    + 关注
    #办公智造#

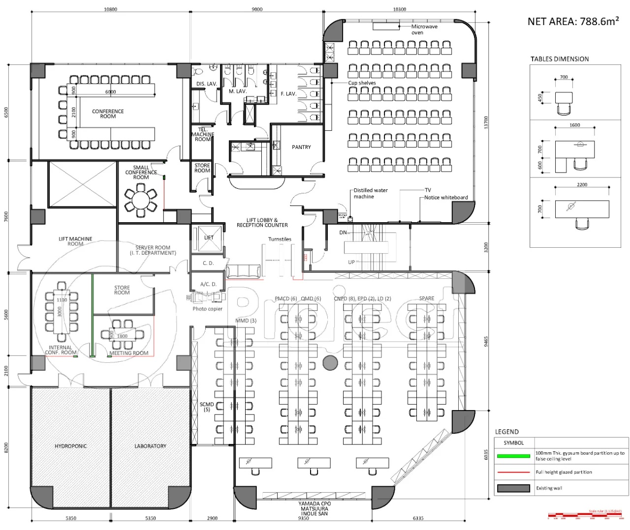
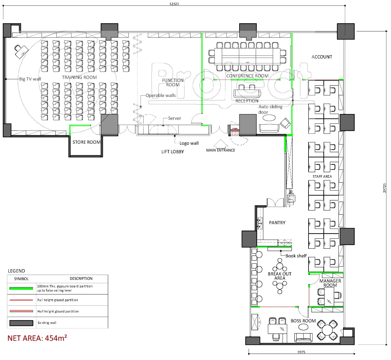
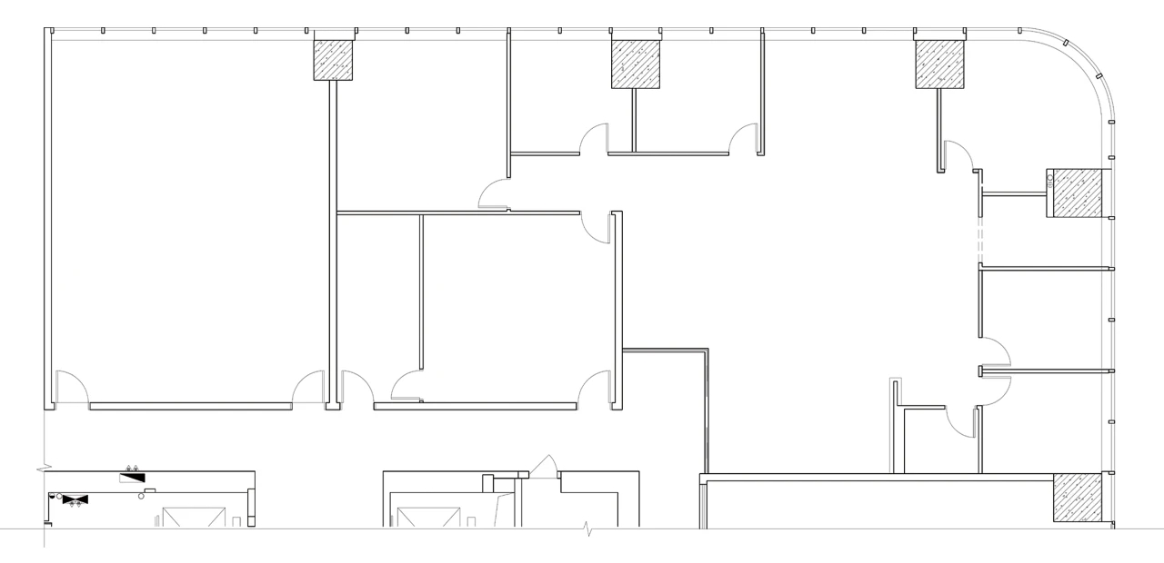
    平面布局图        

  • Ellen / 设计师

    2024年04月20日 06:52:44

    + 关注
    #办公智造#

    WVD办公室空间采用灵活多变、相互渗透的空间手法,空间并非消极静止的状态存在,而是把它营造成一种生动的力量,借助流畅动态。强调光的延展,设置不到顶的空间组合模块,并且极富方向引导的线性,创造隔而不离、流动贯通的空间生态。
    我们主张设计的差异化,寻求突破是我们的设计理念,我们希望空间并非为纯粹的装饰而纯在,空间内容应该是人本身,通过对团队个性的解析,我们认为需要一种空间秩序的叛逆,甚至是戏剧性。我们跟艺术家进行了深入的沟通,最终敲定本组艺术作品“饲养”作为整个空间个性的定调。        

  • Ellen / 设计师

    2024年04月20日 06:51:04

    + 关注
    #办公智造#

    在繁忙复杂的工作中,细节是足以影响项目品质的致命问题,因为其细小也是最容易忽略的问题。在我们的空间中,我们在很多看似稀松平常的小品中置入一些趣味性的小内容,创造空间使用者的惊喜,以及对于细节的重视。将无谓的装饰、象征主义和姿态抹掉,留下纯粹的骨架、质地、颜色、分量、比例和轮廓。空间中偶然出现的物件,它的美不在表面形态,而是背后都承载的故事,为空间增添趣味也充盈了交流的话题。        

发布话题

公开