当前位置:首页 > 户型图分析

#办公智造#

阅读 1000826 | 粉丝 1000826

  • Camille yu / 设计师

    2024年03月30日 23:40:47

    + 关注
    #办公智造#

    不同颜色会给人一种不一样的感觉,抢眼的“橙色”或许是这个空间中的一个亮点。在会议中,鲜明的色彩让思维更加活跃,提出更多想法,让工作者们站上属于自己的舞台。
    洽谈室色彩上采用灰白相融的搭配,简约又不失格调,整个空间内也运用了许多自然元素,把生态与空间完美融合在一起。
    出挑的色彩门与大理石搭配,让简约的空间又不失普通。        

  • Camille yu / 设计师

    2024年03月30日 23:38:11

    + 关注
    #办公智造#

    原木色的极简风格,大气严谨,整体营造出恬静的感觉,座椅木纹清晰,让人感觉更加亲近自然,从而心静平和。
    蓝色的壁面不免给予人一种舒适,地面灰色的大理石与墙面相照应,构建了一个有温度又精巧的空间。        

  • Camille yu / 设计师

    2024年03月30日 23:36:44

    + 关注
    #办公智造#

    与自然共生,聆听生态之音。向往自然,是人类的一种本性,整个接待室色彩极其丰富,彷佛沉浸在森林环境中,点缀上许多花花草草,让空间充满了生机,同时又增加了艺术的深度。        

  • 叶孤城 / 设计师

    2024年03月30日 23:19:02

    + 关注
    #办公智造#

    北方绿野办公楼内装修设计方案秉承简洁优雅的现代设计风格,力图打造纯粹简约之美,于细节中,处处体现用心之美,突出北方绿野设计公司的独特气质,表达出公司的专业性和现代感,最重要的是,让在其中办公的工作人员和到访者感受到亲切熟悉的氛围,并且迅速产生认同感。
    设计师通过现代简约的手法,搭配设计感极强的家具和艺术饰品,营造出高雅、专业、国际化的办公空间。以白色为主色调,干净利落而明快。
    设计依据办公性质的需求,将空间合理划分为会议区,独立办公区和开敞办公区,占据两层的办公空间以一部现代感十足的白色钢梯连接,空间通透,实现了上下空间的渗透和延续,体现了企业开放和包容的设计情怀。
    为了创造出灵活通透的空间,部分吊顶和墙面选择了白色铝方通间隔排列,顶部裸露结构和设备,形成精细与粗犷的材质对比,使得空间层次丰富。        

  • 叶孤城 / 设计师

    2024年03月30日 23:17:11

    + 关注
    #办公智造#

    地面铺装则选择灰色面砖,同白色的色调产生视觉反差,由此形成从地面深色向上白色的色调变化,符合色彩空间对人的心理影响,让工作其中的办公人员和到访者都能有一种舒适温馨的感觉,对这里的环境产生亲切感。        

  • 小海 / 设计师

    2024年03月30日 22:57:12

    + 关注
    #办公智造#

    步入大厅无论正面还是侧面都能放任视野自由的展开,广阔的空间虽身处高楼大厦之中却没有城市的拥挤,有的是一份带来舒心的淡然。空间感驱除了内心的焦躁,办公变得安心。

  • 小筑 / 设计师

    2024年03月30日 22:47:20

    + 关注
    #办公智造#

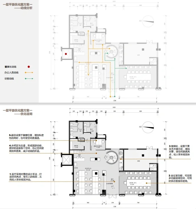
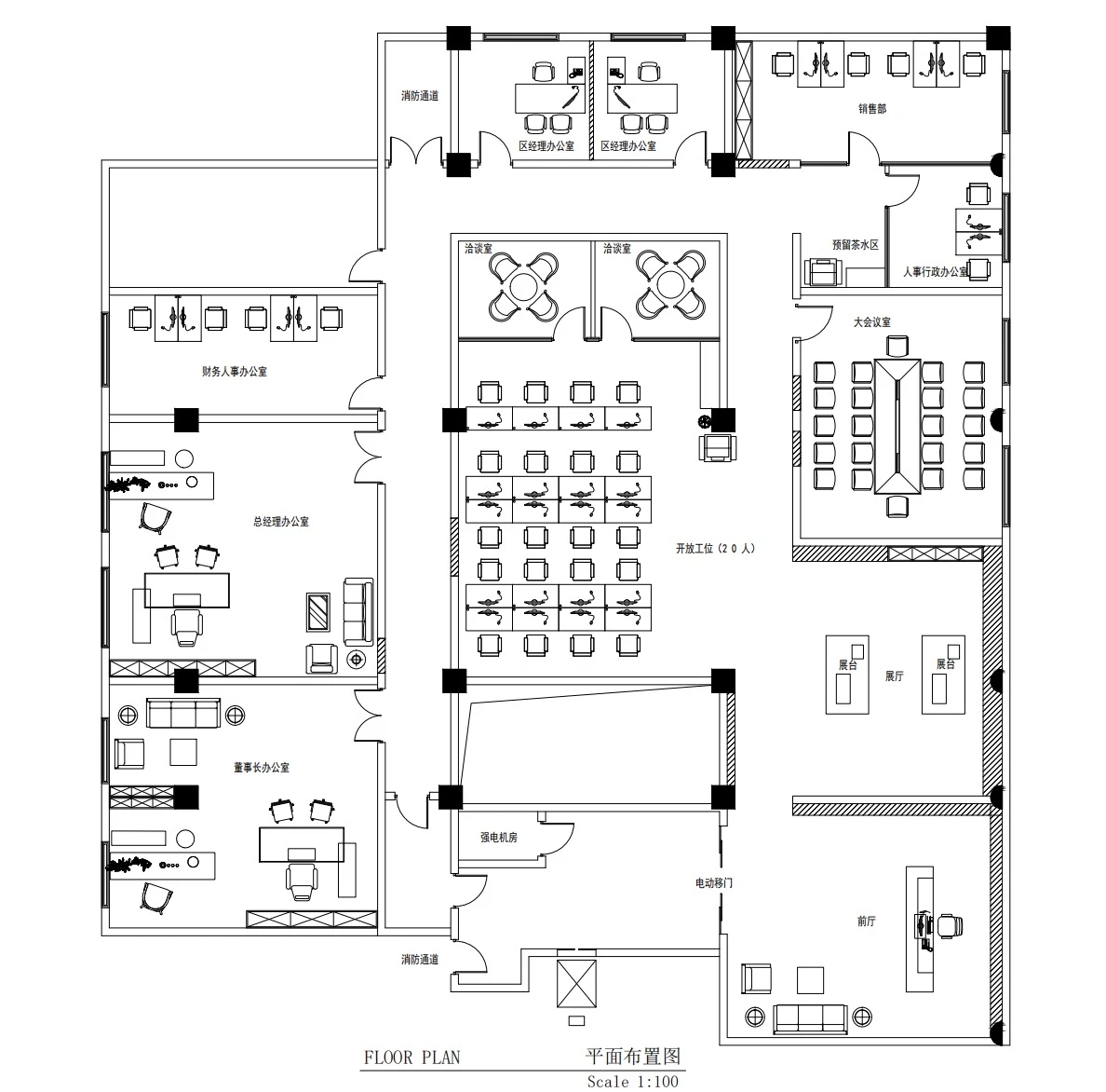
    办公空间设计概念方案        

  • 毛均峰 / 设计师

    2024年03月30日 22:32:22

    + 关注
    #办公智造#

    品牌元素的引入从接待区直观的表达开始,以简练精致的设计,传递出客户专业的商务气质、但又饱含底蕴的经典形象,形成企业文化、功能需求、视觉审美的有机统一。
    华丽的装饰细节,赋予空间无与伦比的壮观气势。纯净而开敞的白色空间背景,映衬着庄重而沉稳的木色构筑,令整个酒窖洋溢着睿智优雅的低调奢华品质,让人置身于此时,就如同感受到了那迷人的香醇并陶醉其中。
    独立办公室亦是极简大气,呈现出一系列高度精致巧妙的设计:随处可见的木质纹理让人联想起酿酒的场景,水磨石纹理地面以及大面积玻璃隔断则带来精致和丰富的质感,塑造出一个优雅高端的品质空间。        

发布话题

公开