当前位置:首页 > 设计圈

  • #办公智造#

    空间整体采用暖黄色艺术漆,保证温馨放松的氛围。形体处理上采用导圆角手法,在有限的空间里创造连贯舒缓的曲线,犹如一张长卷画,引导人慢慢向里行进。主动线走道两侧探出的“小脑袋”犹如溪边的鹅暖石,活跃空间表情。在满足功能需求的基础上,我们希望空间设计可以帮助业主为员工和到访者提供更多的情绪价值。        

  • 大鹏 / 设计师

    2023-12-05 17:01


    #办公智造#

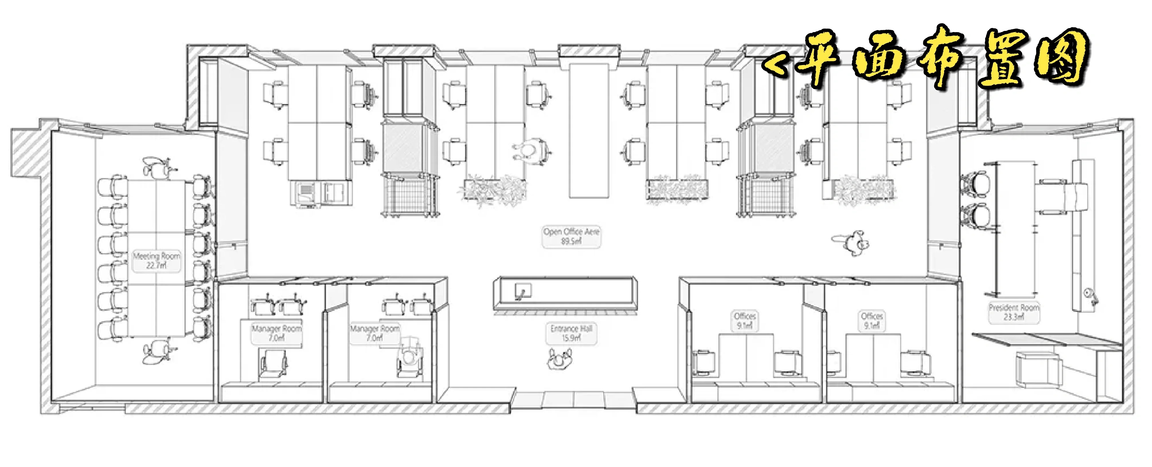
    主入口位于主电梯厅一侧,次入口位于商业电梯一侧。进入门厅后,映入眼帘的木质背景墙,与两侧的玻璃隔断形成虚实对比,并构成空间整体氛围基调。洽谈区和茶水间分置入口两端,L型的公共走廊链接各办公空间和辅助空间,会议室、电话间及其他辅助空间沿走廊内侧线性布置。
    受“无尽走廊”的启发,原本设计中最容易被忽视的走廊,成为了我们的设计重点。设计摒除了传统走廊吊顶上筒灯和射灯的混乱布置,而是通过连接走廊两侧尽端的一根超长的悬浮灯线,照亮整体的公共走廊空间。
    走廊两侧超白玻璃隔断的运用不仅减少了房间之间视觉上的阻挡,也使得走廊更加通透干净。同时,双向渐变膜的设置又保证了空间使用的隐私。        

  • 大鹏 / 设计师

    2023-12-05 16:59


    #办公智造#

    走廊上方,依靠漂浮于空中的超长灯线主光源,和玻璃上方金属带背后的线性灯带辅助光源,共同照明,形成走廊的灯光氛围。这样系统化的灯光布置不仅使得吊顶更加的简洁和干净,让身处其中的人能够快速切换状态,且让办公人群可以在走廊有了更多的停留,整体沉浸式的代入感,可以适应不同空间角色之间的自由转换。形成更多的沟通和交流。        

  • 大鹏 / 设计师

    2023-12-05 16:57


    #办公智造#

    光是设计中最主要的材质语言。通透的空间将自然光引入室内,悄然在走廊上织就一幅斑驳的光影画卷。随着时光的推移,光影在空间中流动,营造一种虚实之间的关系,让场域氛围产生一种独特的变化,在不同的透明盒子之间建立起虚拟的交流,给人留下充满探索感和灵动感的独特印象。
    通透的双层超白玻璃隔断的使用,保证了隔音和隐私的同时,还增添了一丝未来的科技感;空间中大篇幅的“木”元素的运用,不仅为空间增添了温暖,还赋予了空间更丰富细腻的质感。设计通过虚实材质的对比,将抛光和哑光的肌理巧妙融合,为空间创造出舒适柔和的层次感和触感。        

  • 毛均峰 / 设计师

    2023-12-05 16:41


    #办公智造#

    效果图        

  • 毛均峰 / 设计师

    2023-12-05 16:41


    #办公智造#

    初入空间,视野中心的岩板背景墙便定下了基调。木质格栅与岩板的有机融合,浅灰色的地砖,暖黄色的氛围灯光,线性规整,岩板不羁的纹理仿佛拥有生命,为空间注入活力。
    员工之间没有明显的分界线,照明强调线条感,无缝拼接的线性灯光以及高级灰的裸顶,从走廊延伸进去的蓝色块毯都定义着这个公共空间,营造一种轻松自由的氛围。        

  • Leoly / 客服

    2023-12-05 16:16


    梦想是由目标组成的,目标是由计划组成的,计划是由行动组成的,行动是由梦想来驱动的        

  • 刘君雅 / 设计师

    2023-12-05 16:06


    #办公智造#

    交控科技办公楼(1)        

发直播

公开