当前位置:首页 > 设计圈

  • #办公智造#

    设计之美…        

  • 毛均峰 / 设计师

    2023-11-19 08:02


    #办公智造#

    创意办公空间        

  • Mr.Wang / 设计师

    2023-11-19 07:58


    #办公智造#

    集团总部办公室        

  • 王建 / 设计师

    2023-11-19 07:54


    #办公智造#

    全布        

  • 木子李 / 设计师

    2023-11-18 21:59


    #办公智造#

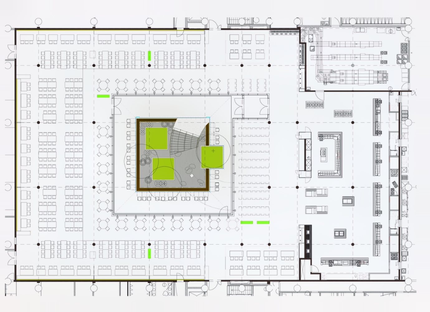
    “联合纤维”是此作品被赋予的名字,灵感来源于大脑中的胼胝体,它联系了两大脑半球对应部位,使大脑在功能上成为一个整体。正如深思维一般,把感性与理性连接在了一起。新办公室分为上下两层,二层部位的两个区域通过中心桥梁连接起来,空间上的连接代表着事物的连接、思维的连接和沟通的连接。
    通透明亮的采光和挑高的办公区域给了深思维优越的办公环境。空间亮点是一个斜置的楼梯,为了放大这一亮点,在办公室外墙上设置了一面大型橱窗。

  • 木子李 / 设计师

    2023-11-18 21:57


    #办公智造#

     通过对“联合纤维”这个理念的深层思考,我们认为整个世界像一个纤维体,所有事物都不是孤立存在的,正如深思维所追求的一样,寻找设计中最适合的连接,利用艺术与时尚来理解空间中废墟与奢华,古老与当代,传统与未来……追求的是真实的私人订制。        

  • 夯大力 / 设计师

    2023-11-18 21:47


    #办公智造#

    增加了几倍的大堂空间,这样的效果也令业主感到惊喜。多了一个几百平米的活动空间不仅平时可以提升企业形象,尤其是留下良好的第一印象,而且在特殊时刻比如开业聚会也可以在这个空间里举办,做到空间使用上的高度灵活。        

  • 夯大力 / 设计师

    2023-11-18 21:44


    #办公智造#

    在员工餐厅,统一大面积地延用大堂的活泼元气的橙色作为背景色,如“电子”一般的玻璃灯泡元素在漂浮在一个半开放的钢架盒子里, 给工厂的食堂平添一份设计感和活泼,同时加强品牌的统一形象。        

发直播

公开