当前位置:首页 > 设计圈
  • 饶阳 / 设计师

    2023-06-03 12:37


    #办公智造#

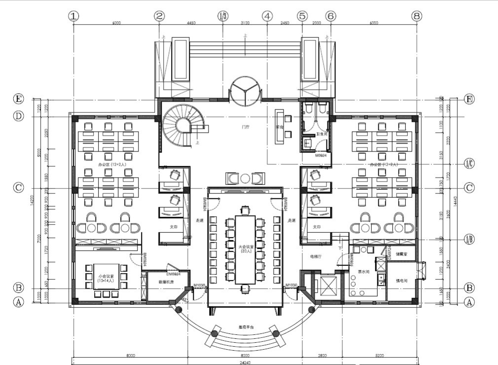
    整个开放办公区密集排列的座椅,对应着上面如飞机机翼一般的天花造型,形成“阵列”的飞机式组合形式,像呼啸而过的机群,此为“行运”.
    总经理办公室,为本段行程的终点,此为“运势”,所有前期的铺垫都在此处释放,使进来的客人通过这种移步换景的动线变化带来心理上的层次变化,领略到“luck way”的深层次含义. 同时用了隐喻和借喻等手法让我们的空间更契合主题.        

  • MING / 设计师

    2023-06-03 12:24


    #办公智造#

    沉下心来,
    慢慢变好!        

  • 吕行者 / 设计师

    2023-06-03 10:52


    #商业空间#

    在更衣室和淋浴间的设计中,我们同样延续了环保、耐久并易清洁的材质,大量的可丽耐人造石材被应用于台盆和定制台面的部位;淋浴间使用了不锈钢及企业色烤漆玻璃为主要材质。墙、地面砖经过防滑处理,回收清水灰砖也被使用在了更衣室的入口部分。        

  • 张小葵 / 设计师

    2023-06-03 10:44


    #办公智造#

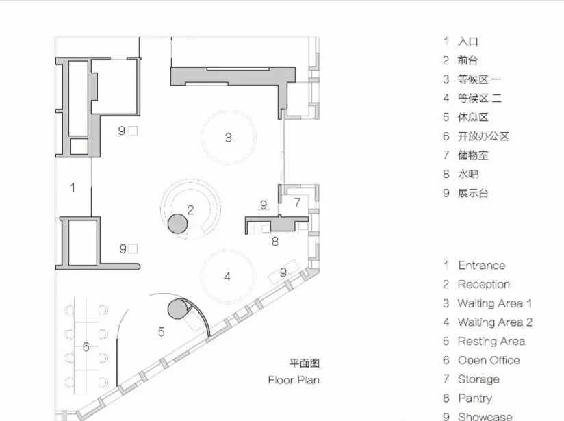
    了解两个公司的需求之后,平面功能布置上采取了“左中右”的结构,既左右为两个公司各自的使用空间,中间为共享空间、如大会议、前台等候区等。
    旋转楼梯的另一侧是前台及两层高的木饰面墙,整个中庭上部设计了一个巨大的软膜天花照明,给整个前台提供了柔和的照明。前台本身也是用内衬LED的玻璃体围合,目的是匹配整个空间的纯净白亮的效果。黄杨木饰面、橡木人字拼地板和米色的洞石,这些偏暖的材质平衡了白色涂料和玻璃营造的冷色调。
    二层走廊可以更接近不可开启的外立面窗,看到北面庭院的景观;朝北的光线始终不会过于强烈,在天气不佳时天花照明可以维持整个中庭空间的充沛照度。        

  • MING / 设计师

    2023-06-03 10:28


    #办公智造#

    墙面材料使用了超白磨砂烤漆白玻,同soho内大量使用的烤漆白玻形成呼应、却又更加柔和,从电梯厅空间的高反射,过渡到前台接待区的温和低反射。
    环状前台全部使用杜邦corian人造石定制:这种材料被大量应用于商业空间,他的可塑性和高稳定性是同级别产品无法比拟的。
    相比改造前的前台,本次设计引入了曲线的元素,两处圆形定制地毯和大面积软膜天花定制灯具的组合,再辅以环型前台和顶部的灯盘,让整个接待区照明更为柔和。
    98寸液晶屏前的一件点睛家具,选用了西班牙高端办公家具品牌Viccarbe的Seasons系列产品,设计师Piero Lissoni。定制的Kvadrat百分百纯羊毛面料,这个组合应该是上海唯一的一件。        

  • 易壮壮 / 设计师

    2023-06-03 10:18


    #办公智造#

    在设计之初,除了对平面和功能流线进行重新简化梳理之外,我们最大限度地降低了“装饰”的动作,也希望用FRAME的概念,给空间赋予层次及深度。在材质上,大面积超白玻、近乎纯白的涂料和灰色地砖,构成了建筑内部最基本的形态。
    大量“取景框”/FRAME的设计,让空间的隔断不是那么生硬,办公的场景化被轻易地“可窥探”,是一个有别于传统办公,并且保有相对独立办公空间私密性的一种可能性。
    6个面积不等的办公单元内部,使用了橡木原色地板,辅以4000k的色温光环境,办公的氛围是温和平静的。        

  • 易壮壮 / 设计师

    2023-06-03 10:16


    #办公智造#

    公共空间主要由暗藏灯带的间接照明控制主要的光环境,天花和墙面,墙面和地面交界处的灯带作为非工作时间的辅助照明存在。某种意义上,云逸空间实现了无人值守办公、智能化门禁系统、远程实时管理监控等新技术;同时,这个空间也体现了域式建筑对于COWORKING SPACE设计的理解和思考。        

  • 菲菲 / 客服

    2023-06-03 09:48


    一个善良的人,
    如果输了,
    一定不是输在智商不高上,
    而是输在信任,心软,
    善良,重感情,讲义气上,
    没有其它,这就是现实!
    成熟,是被一个个耳光打出来的!
    ……        

发直播

公开