当前位置:首页 > 设计圈

  • #办公智造#

    简约办公室        


  • #办公智造#

    办公空间装修项目 | 珍岛信息技术(上海)股份有限公司        

  • 王丹丹 / 设计师

    2023-06-02 18:36


    #办公智造#

    DDoffice 是一间设计办公室,位于越南的顶级大都市之一——胡志明市第 7 区的一个密集住宅区,那里建筑密度高,污染严重,且树木稀少。
    员工白天大部分时间都在工作场所度过,因此就像他们第二个家。项目设计的主要目标是打造一个开放的工作空间,增加工作中的人际互动,并与自然建立更多联系。由于这个开放的环境,同事们有机会在相同的氛围中工作,共享相同的景观。
    为了达到上述目的,办公室最初的设计应该在一个宽阔的平面上横向规划。然而,由于地面狭小,面积仅为 38 平方米,因此选择的方案只能是垂直体量。        

  • 王丹丹 / 设计师

    2023-06-02 18:33


    #办公智造#

    整体建筑在 4 个方向上每隔一段距离就设有一个开放空间,使楼层能够垂直连通,以增加同事之间的互动。但由于缺乏清晰的空间界限,每个人都会感觉他们在同一个房间里工作,这使得他们即使位于不同楼层也可以在垂直方向上互动和联系。最后建筑师选择了“悬浮结构”方案,所有地板都按照规划安放在特定的位置,并悬挂于屋顶,以创造出宽敞的工作空间,其视野不受支柱的影响。钢制的地板营造出轻盈飘逸感。
    办公室立面的二层至四层都有相似的景观,可以俯瞰被各种植物覆盖的玻璃幕墙系统。建筑和窗户前的绿植代表了一种“常规隔断”,模糊了内外的界限,不仅为工作空间创造了私密性,还确保了自然光与舒适的绿色景观。建筑后方有一个从较高楼层一直延伸到底层的垂直悬浮花园作为保护,就像建筑呼吸的肺部。屋顶花园有一个多样化的生态系统,设有小鱼池和一些当地的树种,让来到这里的人们逃离城市喧嚣和闷热空气。工作空间几乎完全被绿植、自然光和新鲜空气所包围。        

  • 王丹丹 / 设计师

    2023-06-02 18:29


    #办公智造#

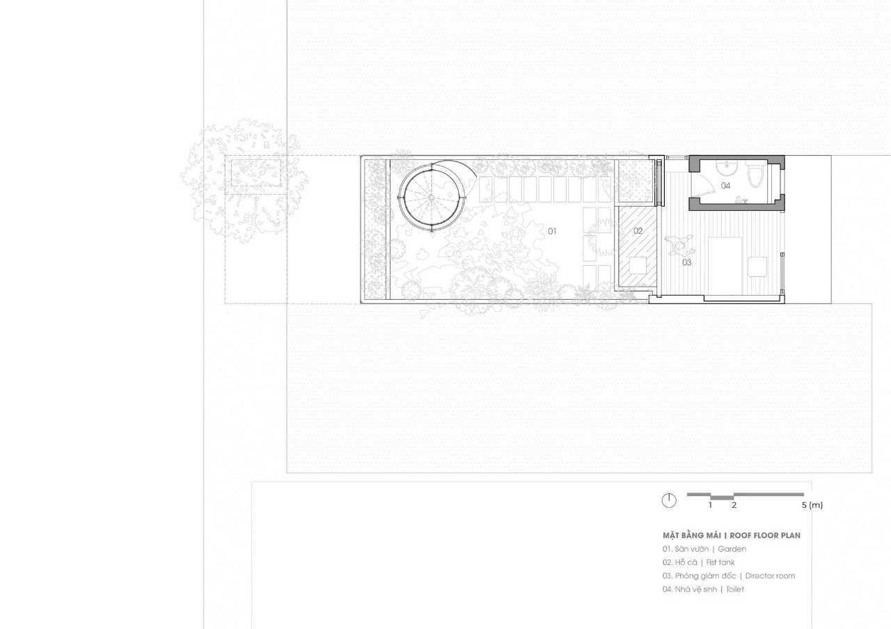
    项目图纸        

  • 刘静 / 设计师

    2023-06-02 18:11


    #商业空间#

    店铺现有沿室内商业内街的“沿街面”,从外部形象上采用了极简的处理手法——通过设置包含入口的四个矩形窗洞,形成了有序的对外表情。
    材质力求简洁干净,大量使用面砖、岩板和不锈钢,结合大面积超白玻璃材质,并通过黄色烤漆色彩进行调和。形成spa空间的专业、洁净调性。        


  • #办公智造#

    柠萌北京办公空间位于一栋20世纪50年代的苏联建筑中,三层楼的独栋建筑具有强烈的对称感。域式建筑在此基础上,为柠萌影视创造了一个与之呼应的办公空间,让节奏与秩序感融于其中,并运用自然元素打造一个舒适怡心的办公场景。
    三层楼每层楼平均面积约1200平米,楼层规划上,根据隐私程度不同,由一楼至三楼递增;一楼包括接待大堂、餐厅、影院、健身房、会议室等,二楼为主要办公与会议区,三楼则由办公室 、大会议室与接待空间组成。

    一层  First Floor  
    走进室内,先进入到的是一层空间枢纽的接待区,7米2长的悬挑前台首先映入眼帘,石材与石材之间的相嵌关系,将大堂各自为阵的体块关系连接在了一起,并弱化了在大堂视觉中心的四根结构柱。
    300平米接待区为未来的公司形象展示保留空白的同时,利用了天花与墙面点缀的弧形造型与灯光搭配,丰富了接待区的层次感。在接待区横向天花中线上,利用了对称的圆角造型与灯带分割了空间的视觉关系与功能性,前区主要作为展示区,后区则为等候区与拍照区。天花灯带与石材墙面在造型上也做了联系,一方面增加了南北横向的通透感,另一方面墙面的切割也让光产生了实体感。
    拍照区位于方正的大堂区的最底端,利用原有空间布局形成了一个半围合空间。灯光上利用圆形软膜天花提供了拍照所需要的柔和光与穿过前台产生了一个次视觉焦点,提供团队拍照区域的同时,也为未来空间增设卡座休憩区打好基础。
    接待区分割了一层南面的会议区与北面的休闲区,在走道设计上,也通过了照明与灯具材质的选择,将两边的性质区分开来。        


  • #办公智造#

    餐厅区以亮黄色强化了品牌形象,与木色搭配的同时,利用拱形造型,将空间氛围区别于其他区域,营造出了较为轻松活泼的用餐场景,希望员工与访客能在用餐时充分休息与转换心情。
    南面办公区设置为临时办公与会议区,属于有对外性质的空间。走道空间作为会议区与办公区间的灰空间,同时兼具了临时等待区的功能,因此在天花设计上,将等待区天花高度适当下降,提供了较为静态的动静区分割。        

发直播

公开