首页
设计圈
案例美图
装修案例
灵感美图
头条资讯
设计智造
找设计
找工长
看工地
服务
观点
提交设计需求
注册
登录
记住密码
找回密码
登录
还没有易住账号?
点击注册
使用第三方账号登录
获取验证码
我已阅读并同意
注册协议
注册
已有易住账号?
点击登录
当前位置:
首页
>
设计圈
全部
精华
求助
账单
发直播
田 空题
/ 设计师
2025-12-28 21:17
关注
#标准施工#
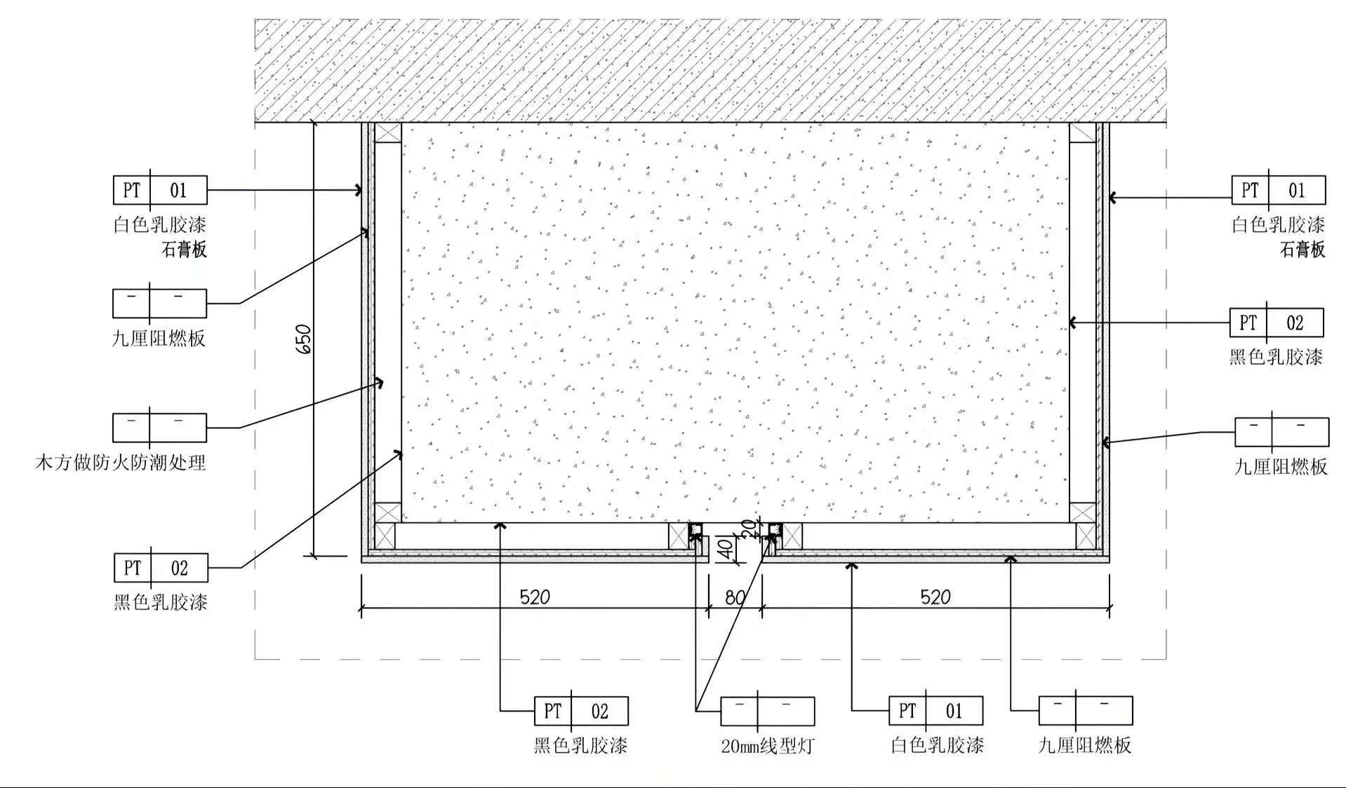
节点图
0
0
0
发表
赵默笙@展陈
/ 设计师
2025-12-28 08:02
关注
#标准施工#
展厅吊顶图
0
0
0
发表
小筑
/ 设计师
2025-12-28 08:00
关注
#标准施工#
吊顶图
0
0
0
发表
王YANG
/ 设计师
2025-12-28 07:56
关注
#标准施工#
灯具尺寸图
0
0
0
发表
九可JOKER
/ 设计师
2025-12-28 07:55
关注
#办公智造#
办公空间实景图
0
0
0
发表
赵默笙@展陈
/ 设计师
2025-12-25 09:47
关注
#易筑展陈#
小型化工展厅
0
0
0
发表
猪猪侠
/ 设计师
2025-12-25 09:28
关注
#办公智造#
办公空间效果图
0
0
0
发表
庆东
/ 设计师
2025-12-25 09:28
关注
#办公智造#
办公室前厅
0
0
0
发表
<<
1
2
3
4
5
6
7
8
>>
2866
玩转π币
起於設計 不止於設計
达人List
起於設計 不止於設計
直播达人
直播新人
小筑
2273
1648732
2310
毛均峰
1038
80431
1110
丽旻
640
28408
662
猪猪侠
461
22332
468
敏颜
441
23003
464
夏毅
438
28897
476
饶阳
683
59989
696
敏颜
441
23003
464
乌拉西
309
20351
318
杨梅酱
266
17945
272
Jason
235
19496
262
Bobo
208
28905
257
精选话题
#办公智造#
#标准施工#
#醉美庭院#
#餐饮美食#
#品牌全案#
#易筑展陈#
#易住美宅#
#商业空间#
#更多热门话题#
发直播
公开
前期
设计
拆改
水电
泥工
木工
油漆
完工
软装
入住
确认发布