当前位置:首页 > 户型图分析

#办公智造#

阅读 900495 | 粉丝 900495

  • 刘君雅 / 设计师

    2024年10月19日 18:40:32

    + 关注
    #办公智造#

    基于品牌形象的全面升级与对外展示,以体验设计的策略视角,将总部大楼的四层空间进行动静区域的布局,在以适应不同场景下的需求:无论是强调开放功能与活力的办公休闲区和零售空间,还是具有私密性需求的会客包厢和员工生活区,各层功能区域均以灵活的动线连接,构建清晰且高效的空间分布逻辑。
    总部首层
    总部首层集商务接待、服务引导、休闲等功能于一体,分别对应大堂、天井走廊和阅读区三大空间。大堂是访客对品牌首印象的“体验点”, 立足品牌核心,结合巴彦淖尔日照充足的特点,以阳光、品质、活力三个关键词定调该区域的空间感受。大堂落地窗最大程度引入自然光线,与代表葵田的浅黄色系墙面、天花相映衬,呈现出温暖通透且明亮开阔的空间氛围。        

  • 刘君雅 / 设计师

    2024年10月19日 18:38:23

    + 关注
    #办公智造#

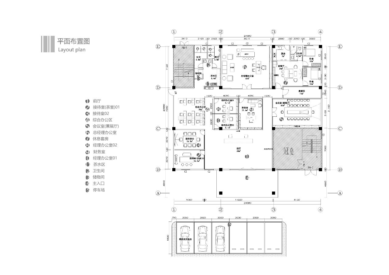
    二层作为多功能的空间布局,主要划分为休闲区、办公区、会议室以及具有当地人文特色的接待区域。办公区以不同用途进行场所划分,多样形式的工位布局,配置相应功能的中小型会议室和独立办公室。兼具隐私安全和休闲放松的电话间、观影区等,旨在为员工营造舒适友好的办公体验。相邻的休闲区以开放、柔和的手法打造,凸显温暖感,通过多样化的材质来体现空间的灵动和品质,同时满足办公环境下轻松舒适的沟通需求。        

  • 刘君雅 / 设计师

    2024年10月19日 18:36:08

    + 关注
    #办公智造#

    接待区域的设计则重点展示了巴彦淖尔独特且富有生命力的在地文化。立品利用北方特有的白杨树瘤木花纹作为包厢空间内的墙面设计,铺满的地毯点缀些许绿植,柔软触感让人仿佛置身于蒙古包内。同时提取了品牌Logo外轮廓定制为蒙古包窗花,既体现了品牌热情的待客之道,又向访客展示了内蒙草原在地文化,丰富访客对于品牌和产品的理解并进行深度交流。        

  • 刘君雅 / 设计师

    2024年10月19日 18:33:56

    + 关注
    #办公智造#

    品牌零售展示空间部分,设计师运用其擅长的品牌体验手法,打破传统零食商店商超的印记,以三胖蛋的核心产品“大瓜子”和独特的文化风貌,打造具有三胖蛋特色的阳光葵田主题场景 。零售店门头采用特殊复合工艺,外表层为渐变黄色树脂板,底层为银色品牌VI图案,加深顾客的品牌印象。以向阳生长的葵田为灵感,一旁的透明橱窗内放置着代表品牌形象的瓜子装置。        

  • 刘君雅 / 设计师

    2024年10月19日 18:31:31

    + 关注
    #办公智造#

    品牌核心产品的瓜子造型作为主要设计元素,贯穿内部的细节之处,如岛台、天花的造型,以及地面水磨石的定制。空间内部红洞石和黄色手工砖的面积占比明显增大,产品墙的设置让色调的对比更加强烈,让人仿佛置身于无垠的北方红土地和广阔的葵田之间,符合品牌零售店淳朴又直观的风格设想,丰富顾客对产品的理解与想象。        

  • 陆七 / 设计师

    2024年10月19日 18:27:41

    + 关注
    #办公智造#

    一日一图        

  • 江北梅郎 / 设计师

    2024年10月19日 18:26:33

    + 关注
    #办公智造#

    办公空间设计提案(1)        

  • 江北梅郎 / 设计师

    2024年10月19日 18:25:34

    + 关注
    #办公智造#

    办公空间设计提案(2)        

发布话题

公开