当前位置:首页 > 户型图分析

#办公智造#

阅读 983371 | 粉丝 983371

  • 毛均峰 / 设计师

    2024年10月22日 11:14:07

    + 关注
    #办公智造#

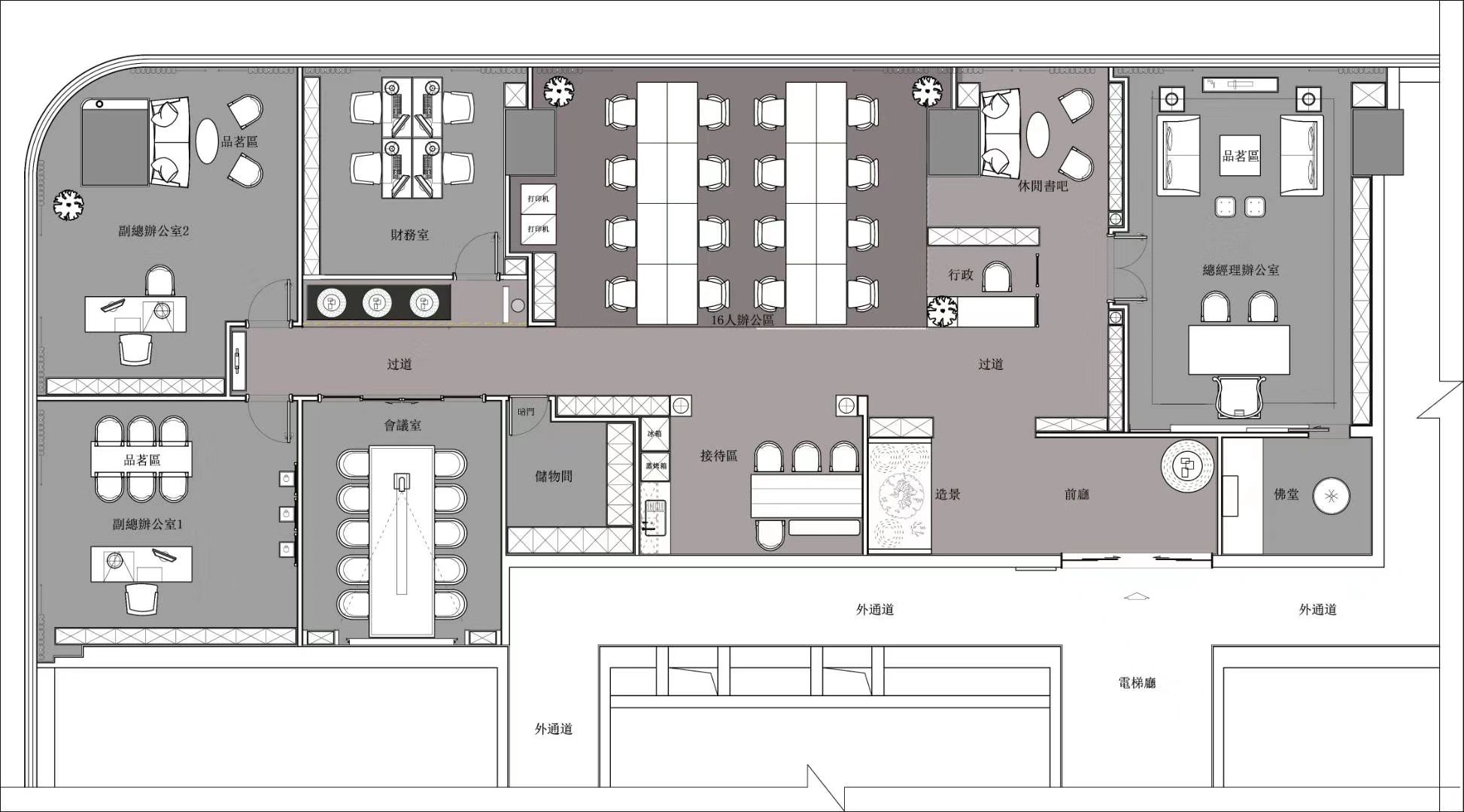
    商务风办公空间(2)        

  • 小麦庆 / 设计师

    2024年10月22日 10:56:49

    + 关注
    #办公智造#

    选择生态友好型室内设计,不仅对地球产生了积极影响,还为自己和家人朋友创造了一个更健康、更舒适的生活空间。
    环保材料通常含有较少的毒素,从而改善空气质量。此外,木材和植物等亲自然元素已被证实可以减轻压力、改善身心健康。
    d3设计办公室以员工的舒适度和幸福感为优先考虑,优化了自然光线和社区美景,还可容纳各种工作安排——从开放式工作站到安静的工作区、协作区、办公桌和正式的私人会议空间,所有这些都符合“极简主义”的核心价值观。        

  • 小麦庆 / 设计师

    2024年10月22日 10:54:58

    + 关注
    #办公智造#

    奢华不仅仅只是美观,而是要创造一个能体现公司独特风格和价值观的空间。设计不仅要紧跟潮流趋势,还要了解客户的愿景,并将其转化为既奢华又环保的设计。
    真正的奢华体现在每一个缜密思考的细节中。这意味着在不牺牲舒适度、功能性或美观的前提下,将可持续元素完美地融入到空间设计中。
    在专业设计顾问的指导下选择各种环保材料和饰面,确保客户掌握相关知识和选择,打造一个既能激发灵感、体现品牌形象,又能最大限度减少对环境影响的空间,彰显企业的环保责任感,致力于实现净零排放。
    本案整合了精心策划的照明、优化的声学效果和变革性的室内装饰,以激发和影响人们的日常积极情绪,邀请利益相关者和设计爱好者体验和参与空间设计,这也是该公司创造力和实用性的最好证明。        

  • Xiao Er Mei / 设计师

    2024年10月22日 10:52:34

    + 关注
    #办公智造#

    金融公司办公室        

  • 丽旻 / 设计师

    2024年10月22日 10:28:09

    + 关注
    #办公智造#

    空间以现代欧洲为主题,时尚的线条搭配硬朗的金属,质感无处不在的科技元素!
    八层接待大堂的入口处铺设了海蓝色渐变的地毯与大理石台相辉映,仿佛碧海与浪花的逐舞                

  • 丽旻 / 设计师

    2024年10月22日 10:25:45

    + 关注
    #办公智造#

    现代爵士主题下的接待前台,呈现酒吧即视感
    融入海港元素的时尚公共空间与Lounge Bar        

  • 丽旻 / 设计师

    2024年10月22日 10:21:04

    + 关注
    #办公智造#

    ATLAS寰图        

  • 大鹏 / 设计师

    2024年10月22日 10:12:13

    + 关注
    #办公智造#

    小空间 大惊喜        

发布话题

公开