当前位置:首页 > 户型图分析

#办公智造#

阅读 983778 | 粉丝 983778

  • 筑先生 / 客服

    2024年10月15日 16:51:43

    + 关注
    #办公智造#

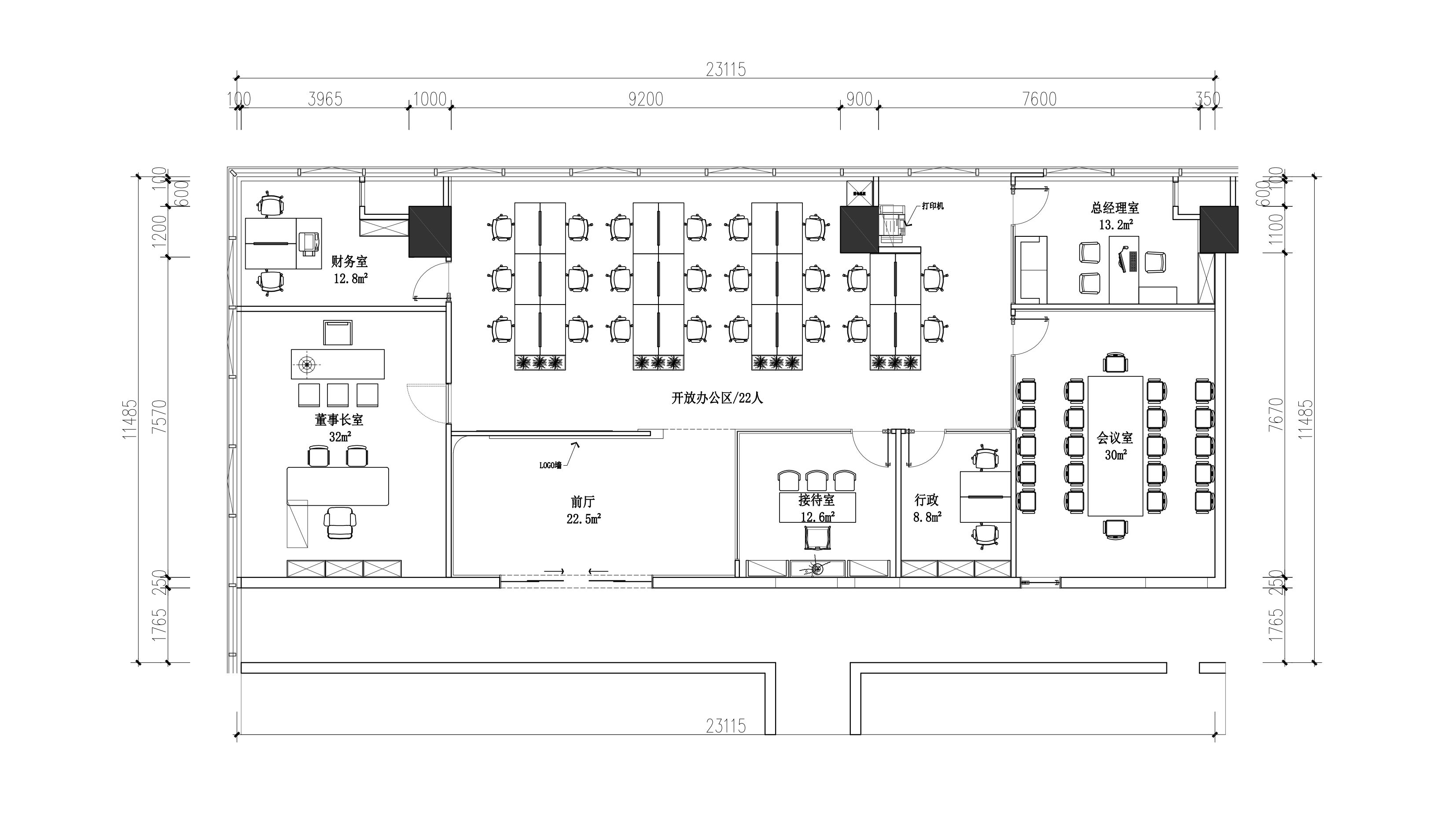
    办公区采用了现代简约风格以白色和灰色为主色调营造出干净、整洁的办公环境采用开放式布局并设置了的留言板和讨论区能够促进团队之间的沟通与合作达到提升工作效率的目的
    接待区采用大量中式元素营造出浓厚的文化氛围这样一个充满东方韵味的接待空间无论是商务洽谈还是客户接待都能给人尊贵与享受同时满足聚餐、品茶的休闲空间拉近人们的距离让交流变得更加顺畅        

  • 毛均峰 / 设计师

    2024年10月15日 10:03:34

    + 关注
    #办公智造#

    整个办公空间的设计定位是要创造出一个独特创新而具有魅力的、现代简约的空间,最大化将户外景观融入室内视野中,使得整个空间的设计元素都能凸显出新时代航空领域的业务特性。区别于强调等级关系的公司,红土航空的企业文化更强调员工的内部协作。通过改变空间的间隔结构给办公空间创造更多的融洽与和谐。因此中央办公室区域我们打造了一个半开放式的设计,砍掉传统隔断的空间分隔手法,使得整体设计更加简单干练。当然,半开放的办公环境可以加强人和人之间的交流,但总需要有一些独立的区域能让心安静下来好好思考,采用透明玻璃进行隔断,这样就可以在独立办公空间中,感受开放的空间氛围以及舒适的自然光线。        

  • Marienn杨恩惠 / 设计师

    2024年10月15日 07:34:17

    + 关注
    #办公智造#

    办公空间实景图        

  • 宁檬 / 设计师

    2024年10月15日 07:33:13

    + 关注
    #办公智造#

    蓝色空间        

  • Jason / 设计师

    2024年10月15日 07:00:16

    + 关注
    #办公智造#

    律所办公空间        

  • Mr.Wang / 设计师

    2024年10月15日 06:57:59

    + 关注
    #办公智造#

    办公空间设计        

  • Camille yu / 设计师

    2024年10月15日 06:53:22

    + 关注
    #办公智造#

    办公空间效果图        

  • 超哥 / 设计师

    2024年10月15日 06:48:57

    + 关注
    #办公智造#

    投资公司办公室        

发布话题

公开