当前位置:首页 > 户型图分析

#办公智造#

阅读 983780 | 粉丝 983780

  • 王建 / 设计师

    2024年10月14日 21:58:41

    + 关注
    #办公智造#

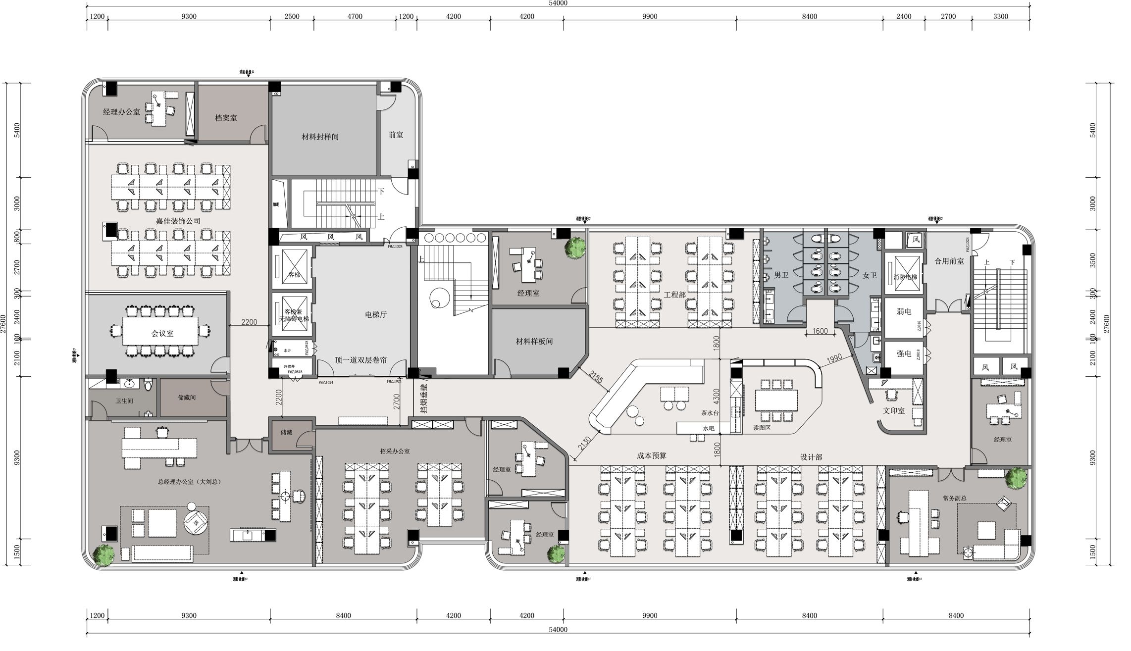
    工作室办公室        

  • 月半三斤 / 设计师

    2024年10月14日 17:46:56

    + 关注
    #办公智造#

    灰色地毯的使用可以降低地面的反光,也能中和空间的白色色调,让整体看起来更加协调。无缝玻璃则可以增加办公室的艺术氛围,同时也能打破办公室材质的单一,让空间看起来更加年轻跳跃,而鎏金大理石裂纹则可以增加办公室的气质,为空间赋予时尚改高级的氛围。        

  • 江北梅郎 / 设计师

    2024年10月14日 17:30:17

    + 关注
    #办公智造#

    前台接待区作为进入办公室的第一眼视觉空间,设计以简洁明快为主,采用白色大理石台面和灰色地砖,营造出干净利落的空间感。背景墙中央蓝色LOGO,与整体白色墙面形成对比,提升了品牌形象的视觉效果。
    展厅作为前台的延展空间,风格色调继续保持一致。设计理念注重简约、科技感以及品牌展示。空间布局通透开放,利用线条灯带营造氛围,色彩上以蓝白相间为主色调。
    会议室的风格沉稳、大气,同时融合公司的文化氛围和品牌形象。选择了符合公司风格的颜色和元素,让参会人员感受到公司的文化内涵和品牌气息。经理室划分了办公区和休息区,空间宽敞明亮,于严谨的秩序与效率间巧妙注入舒适、轻松与明快的优雅气韵,让使用者在其中可放松身心、可高效工作、亦可缓解压力,赋予办公新乐趣。这是一个豪华的总经理室,整个空间采用了高级灰+木色的设计,给人一种稳重又不失温馨的感觉。头顶的吊灯和脚下的地毯相呼应,营造出一种奢华氛围。开阔的落地窗,能尽情享受空中极佳的视野与美景。        

  • 江北梅郎 / 设计师

    2024年10月14日 17:28:09

    + 关注
    #办公智造#

    茶室整体风格简约而优雅,黑色大理石台面的茶桌能有效提升空间的整体档次,而灰色木纹元素则增添了一丝自然与温馨的气息,两者结合使整个空间看起来更有层次感。绿植的使用,让整个空间灵动而富有生机。        

  • 曹杨Young / 设计师

    2024年10月14日 15:38:17

    + 关注
    #办公智造#

    赏析...        

  • 宁檬 / 设计师

    2024年10月14日 15:33:27

    + 关注
    #办公智造#

    大吉...        

  • 月半三斤 / 设计师

    2024年10月14日 14:13:24

    + 关注
    #办公智造#

    实景图        

  • 江北梅郎 / 设计师

    2024年10月14日 13:51:03

    + 关注
    #办公智造#

    首层大堂的挑高空间运用大面积的灰白色调,形成视觉上的延伸,突出场所的宽敞透亮,大理石、铝板和不锈钢等材料的组合点缀,呈现简洁现代的空间氛围。
    共享办公区内流动的天花弧线犹如叶脉一般,被紧紧联结并向上生长。餐厅区域设置孔雀蓝的铝制格栅,结合不同明度的灰色地砖、沉稳的木饰面以及形状奇特的灯具,各种利落流畅的线条运用其中,形成彼此呼应而又统一的美感。        

发布话题

公开