当前位置:首页 > 户型图分析

#办公智造#

阅读 984537 | 粉丝 984537

  • 敏颜 / 设计师

    2024年09月28日 22:22:31

    + 关注
    #办公智造#

    在现代主义的表现形式下,流畅的线面与交织的光影是最简洁有力的设计元素,前厅选材大气硬朗而不失温度,墙面选用自然舒适的原木色护墙板,吧台在隐藏灯带的衬托下形成悬浮于地面的视觉感        

  • 敏颜 / 设计师

    2024年09月28日 22:21:23

    + 关注
    #办公智造#

    以塑造开放、包容的个人办公场域为整体立意,总经理办公室布局简雅,注重功能与美学的平衡。空间配色以中性色调为主,时尚优雅而不失沉稳大方,可以有效地表达企业文化的内在张力        

  • 敏颜 / 设计师

    2024年09月28日 22:20:21

    + 关注
    #办公智造#

    大空间下的灯光配置尤为重要,通过合理而均匀的立体光影建构,整齐对称的阵列添上几抹绿植焕发空间活力,以视觉舒适传达理念协调        

  • 丽旻 / 设计师

    2024年09月28日 21:47:51

    + 关注
    #办公智造#

    木纹办公空间        

  • 王丹丹 / 设计师

    2024年09月28日 21:25:15

    + 关注
    #办公智造#

    效果图        

  • 王丹丹 / 设计师

    2024年09月28日 21:22:36

    + 关注
    #办公智造#

    落地实景图        

  • 王丹丹 / 设计师

    2024年09月28日 21:21:21

    + 关注
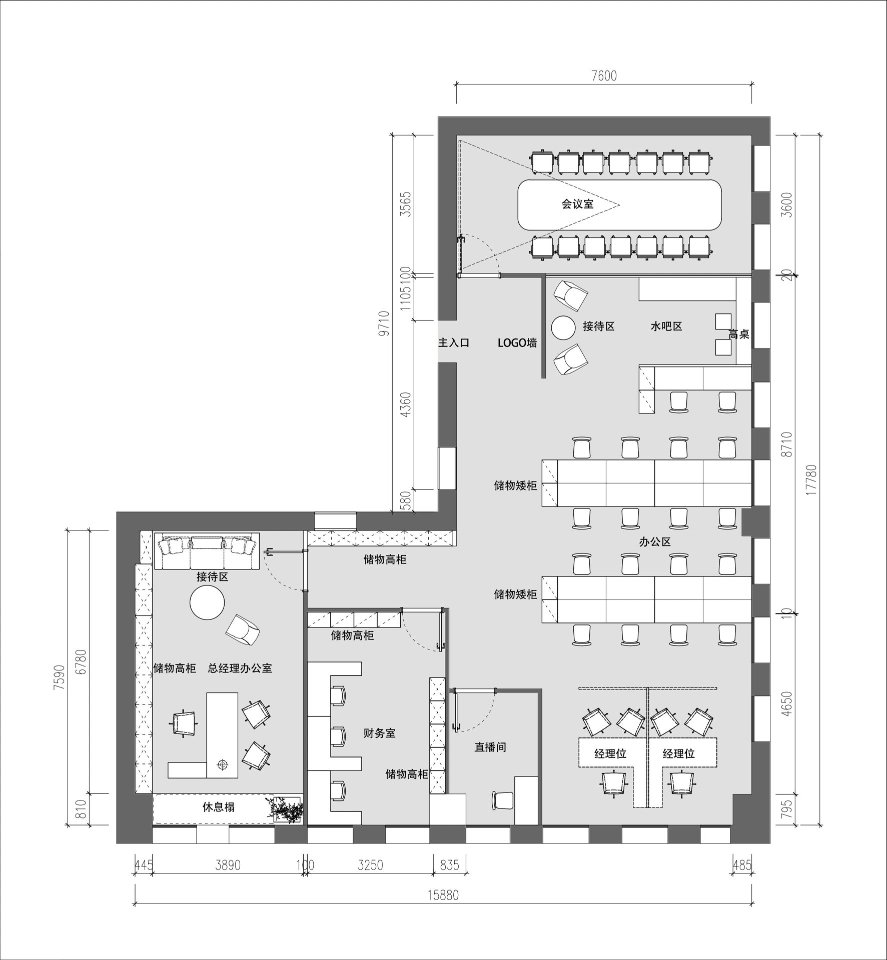
    #办公智造#

    平面布局图        

  • 毛均峰 / 设计师

    2024年09月28日 20:52:58

    + 关注
    #办公智造#

    多层叠加的背景墙让公司logo更为突出(此处已擦走公司名字),传统办公空间特有的专业与严肃,又能传达自身蕴含的理念,公共办公空间于形式上回归传统布局,采用玻璃隔断间隔从而拥有独立存在的洽谈室与总经理办公室,又不至于让各空间失去自然光线。
    靠墙增设显示屏为主,玻璃面结合珐琅板为辅,创造这个既能日常办公又能会议演示的功能区域。双人办公区木色牵引、黑色沉静的双色组合,让使用者有沉静稳重的意境潜藏于此。        

发布话题

公开