当前位置:首页 > 户型图分析

#办公智造#

阅读 984652 | 粉丝 984652

  • Joan 王怡琼 / 设计师

    2024年09月27日 07:19:59

    + 关注
    #办公智造#

    耳目一新的办公空间设计        

  • 王倩 / 设计师

    2024年09月27日 01:57:44

    + 关注
    #办公智造#

    办公空间设计        

  • Hino / 设计师

    2024年09月26日 22:47:01

    + 关注
    #办公智造#

    个性办公空间        

  • 陆七 / 设计师

    2024年09月26日 22:44:34

    + 关注
    #办公智造#

    一日一图        

  • RIDICULOUSNESS / 设计师

    2024年09月26日 18:21:45

    + 关注
    #办公智造#

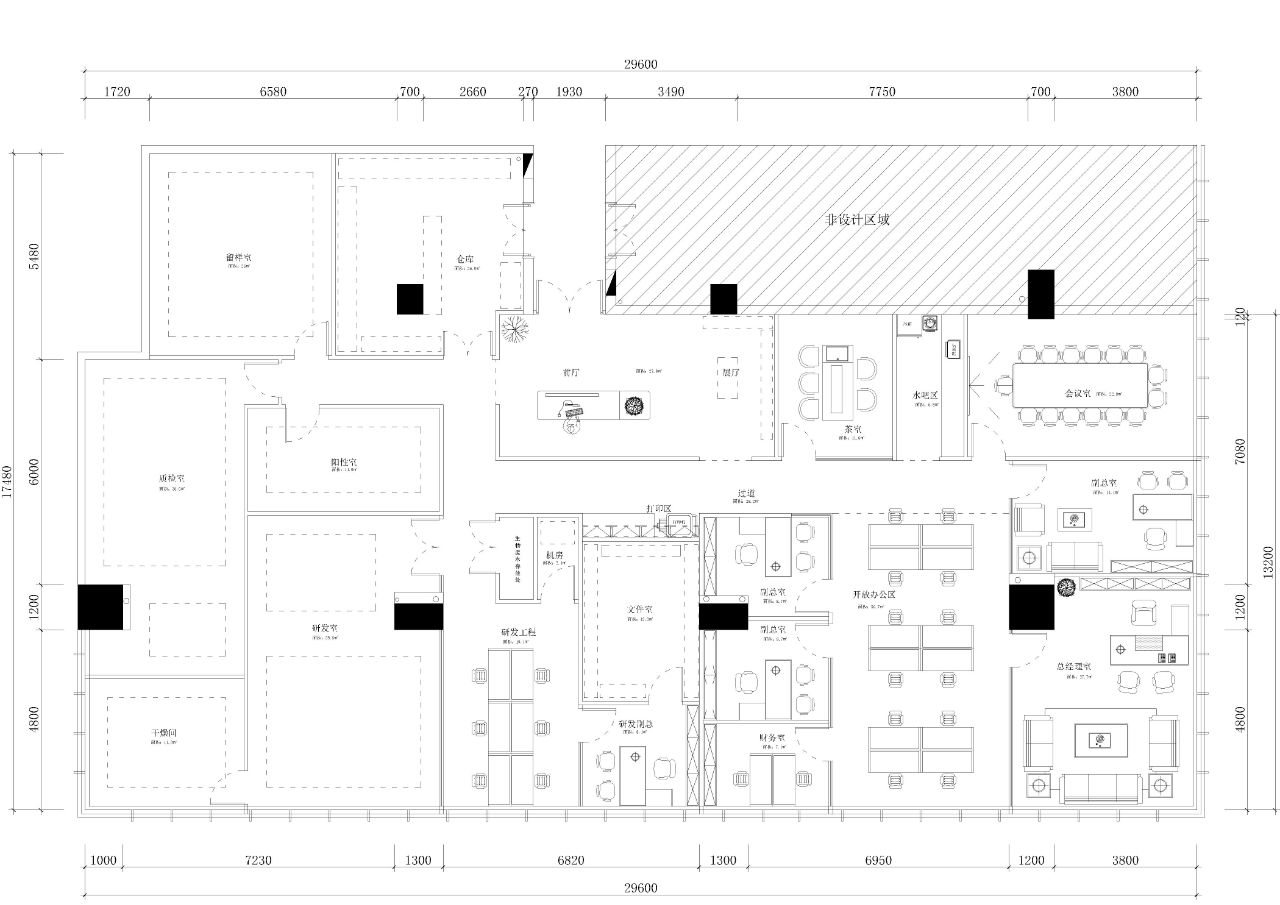
    整个空间被划分为两个主要区域:一个是外部使用区,包括展览、接待和会议空间;另一个是员工办公区。中央区域被指定为会议区,周围是大堂、茶吧、休闲区和灵活布置的走廊。这种布局既最大限度地利用了空间,又将各个功能空间紧密联系在一起,形成了实用而流畅的布局。入口大厅的展示墙和接待台由磨砂不锈钢制成,为这家技术公司营造出简洁明快的形象。休闲区沿着弧形玻璃墙展开,采用开放式布局,宽大的玻璃窗提供了良好的自然采光,为员工营造了轻松愉悦的氛围。会议区包括两个大会议室和两个小会议室。大会议室可容纳 10 人,小会议室可容纳 4 人,可满足不同规模会议的需要。会议室的墙壁采用木质饰面,为空间带来柔和宁静的氛围。玻璃隔断确保了充足的自然光进入会议室,增加了空间的亮度和通透感。        

  • RIDICULOUSNESS / 设计师

    2024年09月26日 18:19:40

    + 关注
    #办公智造#

    会客区有效地将公共区域与办公区域隔开,减少了商务接待对办公人员的影响。开放式办公区宽敞明亮,可容纳 24 名员工同时办公,设有一个开放式讨论区和两个电话亭。办公区的尽头安排了四间独立办公室,为需要单独办公的员工提供了便利。天花板采用灰白双色设计,结合灯带设计,为会议室营造出视觉上错落有致的旋转效果。走廊墙壁采用反光材料,在视觉上扩展了空间感。        

  • 大鹏 / 设计师

    2024年09月26日 08:14:47

    + 关注
    #办公智造#

    该大堂的挑空部分为此设计的亮点部分拥有拉高的空间感中庭部分均为公共区域,如接待区、休息区等能联系楼梯与各个空间之间的关系        

  • 大鹏 / 设计师

    2024年09月26日 08:11:40

    + 关注
    #办公智造#

    董事长办公室无论是空间上的布局还是颜色或者是家具上都突出沉稳、高端大气的形象不仅要提高采光率,还要根据风水学进行设计同时也要具有一定的封闭性,注重空间方正宽敞        

发布话题

公开