当前位置:首页 > 户型图分析

#办公智造#

阅读 984785 | 粉丝 984785

  • 敏颜 / 设计师

    2024年09月26日 08:05:12

    + 关注
    #办公智造#

    通透空间
    透明材质营造空间的通透感隔而不断,移步换景。考虑到使用的便利性办公室与展厅的多重变奏空间既要独立而连贯又互不干扰随着办公空间向公司高层管理区域的延伸家具及空间用色渐趋沉稳自然而然的区分了办公空间的性质使整个空间无论从功能性质还是色彩上都层次分明        

  • 敏颜 / 设计师

    2024年09月26日 08:03:47

    + 关注
    #办公智造#

    办公区在采光方面加强了绿色环保的自然光的利用人工照明也尽量柔和不刺眼目照明光线是通过吊顶、搁板、墙面的反射或折射光除了一些玻璃与顶面灯带之间的虚幻结合本案大量使用白色面,大大地提升了空间感为了符合高科技的设计理念卡位也是特意选了不规则切割式都是为了给人一种直观的体验感,科技未来,简洁明快整屋色彩统一,蓝色与白色很好地结合在一起为整体空间带来明亮感        

  • 乌拉西 / 设计师

    2024年09月26日 07:26:42

    + 关注
    #办公智造#

    饰面板的应用        

  • Diana / 设计师

    2024年09月26日 06:46:13

    + 关注
    #办公智造#

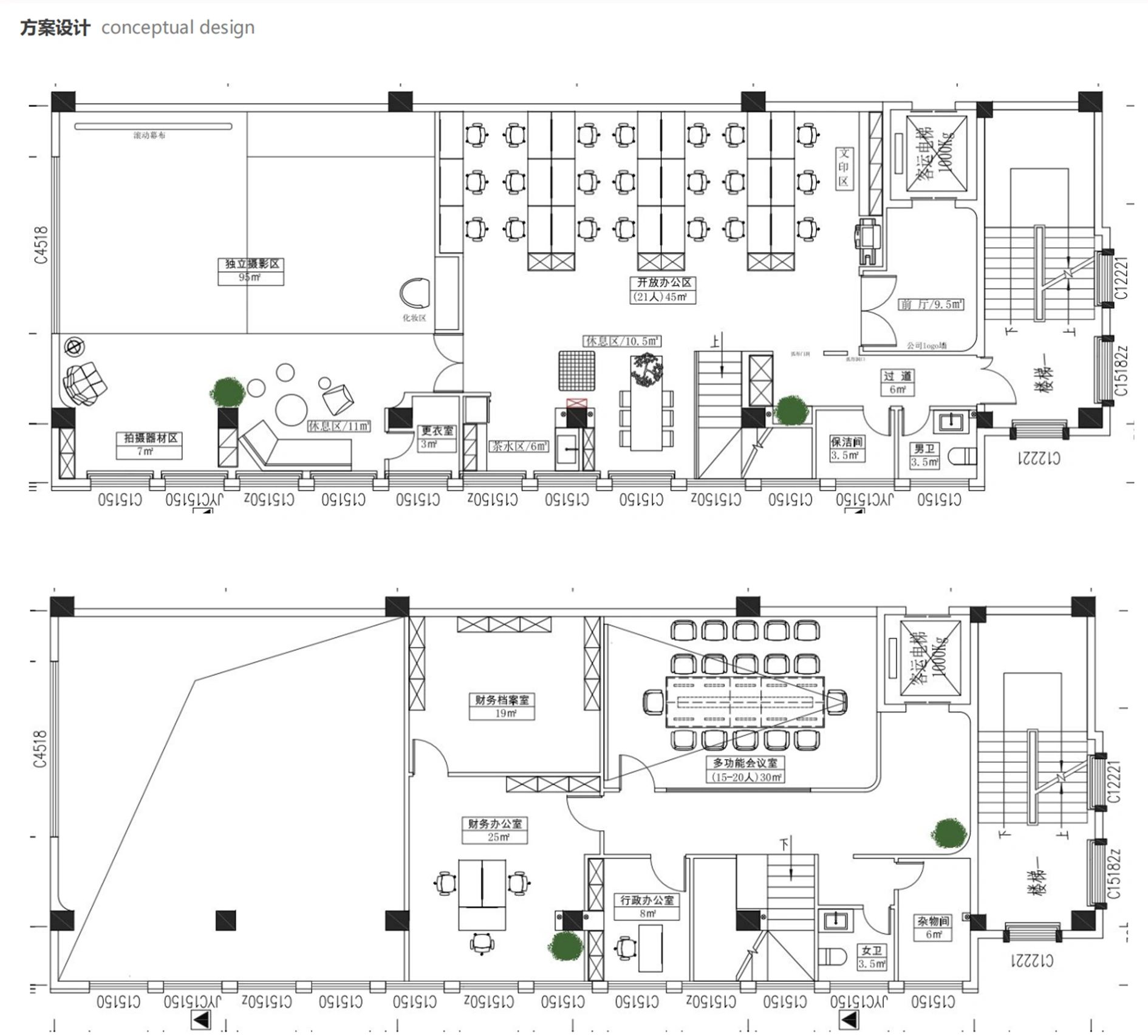
    仪器公司办公空间(1)        

  • Diana / 设计师

    2024年09月26日 06:43:52

    + 关注
    #办公智造#

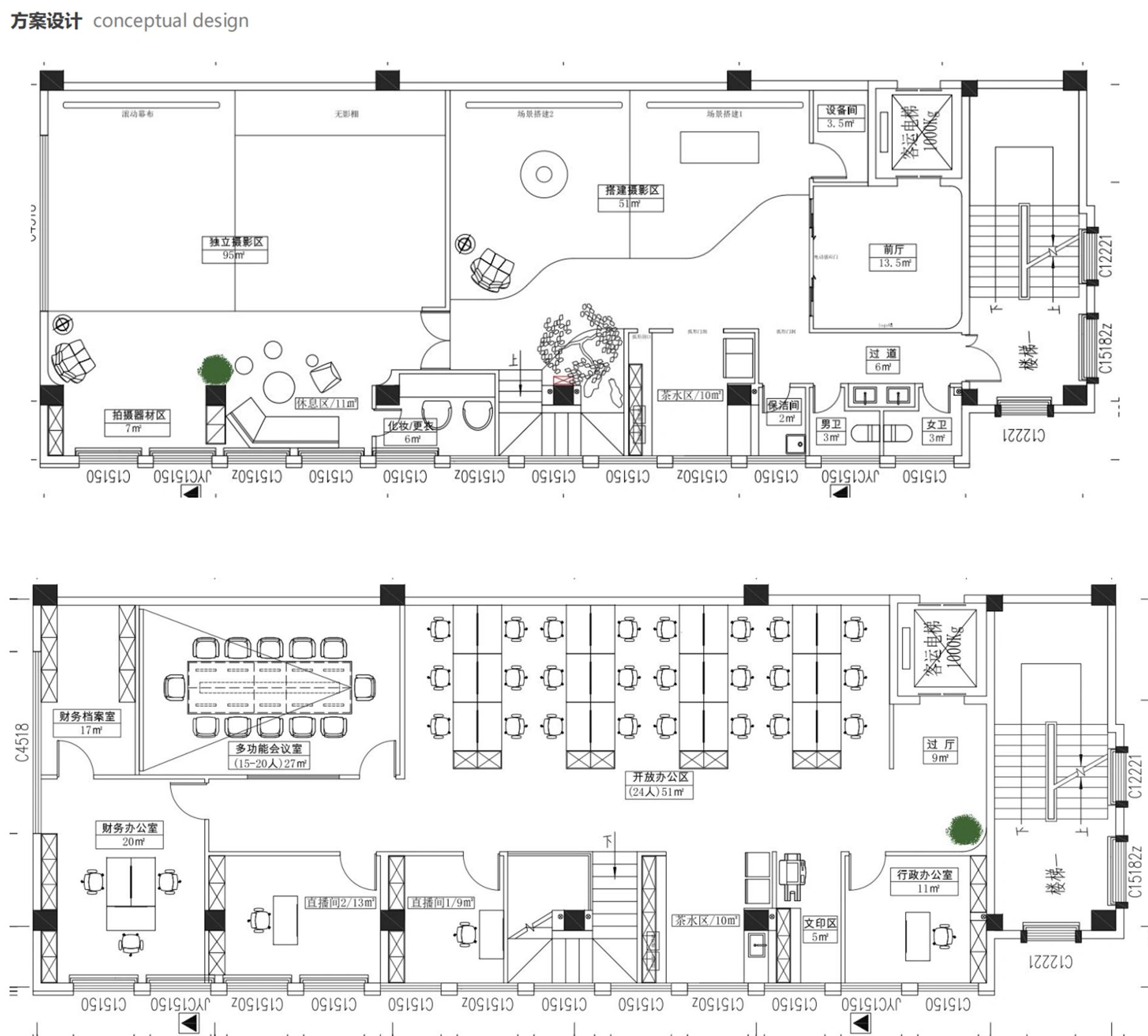
    仪器公司办公空间(2)        

  • Bobo / 设计师

    2024年09月26日 06:37:23

    + 关注
    #办公智造#

    赞        

  • 张小葵 / 设计师

    2024年09月26日 06:36:16

    + 关注
    #办公智造#

    建筑工程公司办公空间设计(1)        

  • 张小葵 / 设计师

    2024年09月26日 06:35:03

    + 关注
    #办公智造#

    建筑工程公司办公空间设计(2)        

发布话题

公开