当前位置:首页 > 户型图分析

#办公智造#

阅读 985811 | 粉丝 985811

  • 王丹丹 / 设计师

    2024年09月10日 14:12:50

    + 关注
    #办公智造#

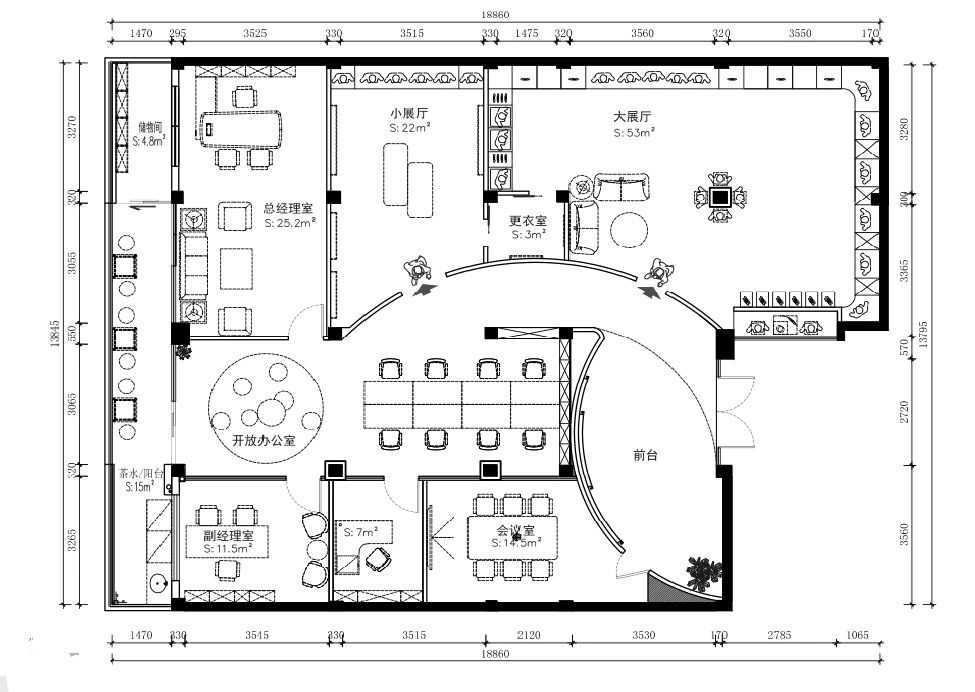
    包豪斯风格设计布局强调功能性和简约性,追求形式追随功能的原则,即设计应该以满足实际需求为主导,而不是过分追求华丽的装饰。
    不同于常见的黑白灰极简设计,包豪斯风格鼓励使用色彩,通过鲜艳的红、黄、蓝色调来增添活力和个性。
    前台设计采用简洁的直线条,体现了包豪斯风格的极简主义精神,没有任何多余的装饰。上方悬挂的独特叶形吊灯成为焦点,它的有机形态与硬朗的建筑结构形成了有趣的对比,增添了艺术气息。
    包豪斯风格办公区设计摒弃了传统的封闭式隔间,转而采用开放式布局,使员工之间更容易进行非正式的沟通和知识分享。在中性背景下,用一种或两种重点色来吸引眼球。例如,红色的办公椅或黑色的柜体都能成为焦点,同时也能反映公司的品牌色彩。        

  • 王丹丹 / 设计师

    2024年09月10日 14:09:47

    + 关注
    #办公智造#

    在中性背景下,用一种或两种重点色来吸引眼球。例如,红色的办公椅或黑色的柜体都能成为焦点,同时也能反映公司的品牌色彩。虽然开放空间很重要,但也需要为员工提供一定的私密性。可以通过屏风、隔断或者个人工作站来划分不同的工作区域,满足员工专注工作的需求。包豪斯风格通过对比色来制造视觉冲击,比如蓝色和黄色的对比,或是冷暖色调的碰撞。        

  • 曹杨Young / 设计师

    2024年09月10日 07:01:00

    + 关注
    #办公智造#

    中域永信办公设计        

  • 夏毅 / 设计师

    2024年09月10日 06:44:30

    + 关注
    #办公智造#

    复式办公空间落地        

  • 筑先生 / 客服

    2024年09月10日 06:43:14

    + 关注
    #办公智造#

    探索一个新办公...        

  • 王倩 / 设计师

    2024年09月10日 06:41:46

    + 关注
    #办公智造#

    办公美学...        

  • RIDICULOUSNESS / 设计师

    2024年09月09日 08:09:01

    + 关注
    #办公智造#

    和创投资办公室        

  • Li hao / 设计师

    2024年09月09日 08:06:01

    + 关注
    #办公智造#

    办公室实景图        

发布话题

公开