当前位置:首页 > 户型图分析

#办公智造#

阅读 985823 | 粉丝 985823

  • 丽旻 / 设计师

    2024年09月08日 19:48:24

    + 关注
    #办公智造#

    律所办公设计赏析(1)        

  • 丽旻 / 设计师

    2024年09月08日 19:47:09

    + 关注
    #办公智造#

    律所办公设计赏析(2)        

  • 饶阳 / 设计师

    2024年09月08日 16:05:45

    + 关注
    #办公智造#

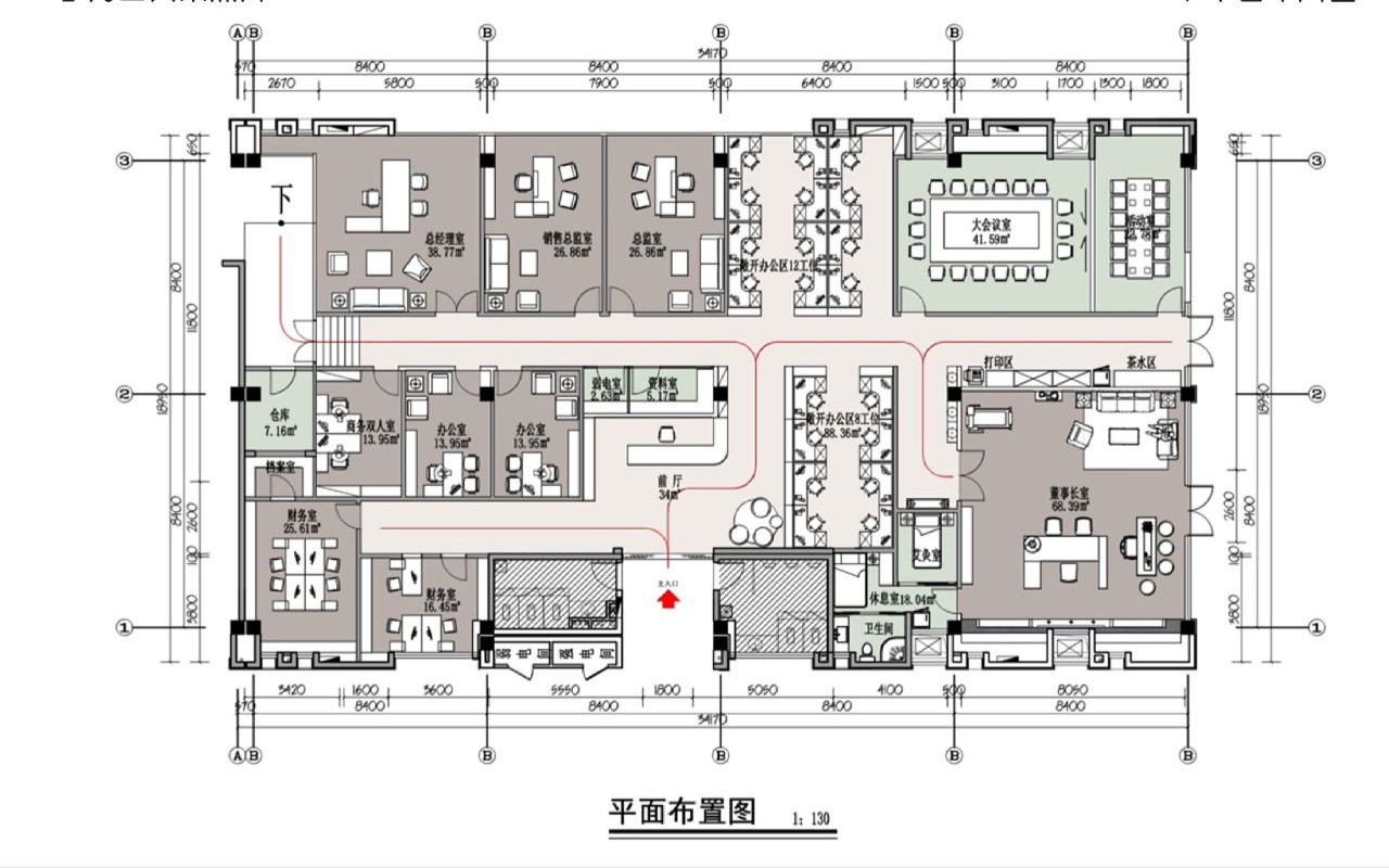
    建筑原先后门有一个通向隔壁楼的空间是一个坡道,刚好是在建筑的伸缩缝上,常年有积水漏水问题,这次改造将此空间做平,可作为公司的备用健身空间使用。建筑内有柱体很多是裸露在外,通过设计也巧妙隐藏起来。西面对着紫金山是一块将近有500平方的大露台,是从老板办公室和大会议室的内部过去,这次改造将通道独立设置在中轴线上。
    视觉设计上,不仅使用了公司主题红色,也结合甲方的电梯行业属性,运用条形灯光、软膜天花、金属装饰板、不锈钢线条、烤漆玻璃、自动门与人脸识别门禁…..使空间充满了现代科技感。        

  • 饶阳 / 设计师

    2024年09月08日 16:03:46

    + 关注
    #办公智造#

    门厅映入眼帘的是企业主体色,由于前台是背光面,所以在顶面设计了发光软膜天花。左手边一个走到通向三间独立办公室,墙面预留照明,可以未来设置企业发展历程墙。右手边是敞开办公区,通过办公隔断柜将动静分割出来,顶面用了当下比较流行的金属板将视线集中,长条形的造型,灵感来自于电梯的缆绳(甲方的行业)。        

    筑先生

  • 饶阳 / 设计师

    2024年09月08日 16:02:03

    + 关注
    #办公智造#

    老板室做成80平大套间,满足老板的休息室、艾灸室、储藏室、卫生间、品茶区、红酒区、会客区、办公区……
    大会议室和茶水区通过隔断系统,做成了独立分区和合并空间两种方式。平时开会的各自独立,公司员工开大会或者活动室时就可以打开来,融为一体。        

  • 饶阳 / 设计师

    2024年09月08日 15:59:07

    + 关注
    #办公智造#

    管理层办公室延续整体配色风格。        

  • 张小葵 / 设计师

    2024年09月08日 13:00:02

    + 关注
    #办公智造#

    步入办公空间,悦动的多巴胺色彩十分治愈。项目整体设计色彩以灰色调地毯搭配白色天花板和彩色墙面为主,突显简约、现代、高效的办公氛围。
    在休闲区域中,我们选择了暖色调的木地板作为地面材质,搭配由岭南花窗造型设计的屏风与柜体,并同样在区域内点缀岭南特色色彩,体现出岭南地区独特的文化魅力的同时,提供更加轻松、舒适、的讨论氛围。        

  • 张曲峰 / 设计师

    2024年09月08日 12:47:20

    + 关注
    #办公智造#

    旨在将原本交通组织形式单一的车企建筑,打造为一个多层创意乐园,为办公、创作、剪辑、排练等需求,提供一个面向未来的趣味办公空间。从“让世界更快乐“的企业愿景出发,作为一家传媒公司的办公空间,首先需要考虑的,是如何将其愿景融入环境。在概念设计阶段,团队将“快乐”归纳为三个维度,“兴奋的大脑”、“多元的行动”以及“愉悦的心态”,这三个维度不仅可以帮助团队解析空间逻辑与设计语言,更能进一步延伸并演化至空间的平面布局,借由此打造一个具有独特个性的“DOPAMINE LAB(多巴胺实验室)”。合理的利用节点,也就是空间转换的中转站可以有效的整合空间逻辑。在搜集空间中重复出现的公共区域(例如沙发区、电话间、打印区、水吧台等)后,团队将它们拼凑重组,使得每个公共区域的“节点”都可以覆盖一定范围内的功能空间(例如开放办公区、办公室、会议室和不重复出现的公共区)。

发布话题

公开