当前位置:首页 > 户型图分析

#办公智造#

阅读 987682 | 粉丝 987682

  • 王丹丹 / 设计师

    2024年08月25日 15:31:18

    + 关注
    #办公智造#

    齐治科技办公室(2)        

  • 王丹丹 / 设计师

    2024年08月25日 15:29:49

    + 关注
    #办公智造#

    齐治科技办公室(3)        

  • 瑾萱 / 设计师

    2024年08月25日 15:18:07

    + 关注
    #办公智造#

    简        

  • 曹杨Young / 设计师

    2024年08月25日 15:06:00

    + 关注
    #办公智造#

    木色工作室办公室        

  • Camille yu / 设计师

    2024年08月25日 14:58:47

    + 关注
    #办公智造#

    极简主义        

  • 木子李 / 设计师

    2024年08月25日 14:52:34

    + 关注
    #办公智造#

    22楼的空中大堂为进入高层职能办公区主要入口,并新增了楼梯连接23楼顶层,在大堂入口处迎接访客的是取代常规LOGO的水景,由水景将人引向窗外景色。
    大堂选材与配色简约,以白灰色调为主,灰砖、米白贴膜与白色人造石的搭配,不拘泥于印象中的粉色,同时彰显了品牌的气质与未来发展的多元性。
    前台后方背景墙使用了粉色渐变树脂玻璃,选择使用了亚光凹凸面增加空间肌理质感,同时与叠纸LOGO进行呼应,在进口处强化了品牌形象。在地毯图案选择上,标准层与高区楼层做了一个差异性设计,强化了高区作为主要接待楼层的重要性。        

  • 木子李 / 设计师

    2024年08月25日 14:49:37

    + 关注
    #办公智造#

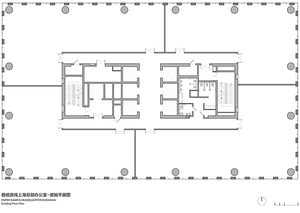
    在设计前期,设计团队花了较多时间与各部门及项目组沟通,希望保证每层在功能上能满足各自需求。
    建筑原始平面图为典型回型布局,在设计策略上,办公楼层以标准楼层为基础,根据各自功能需求进行平面变体;除了需保证每层楼工位负荷外,大量的会议功能也必须满足,将会议室布置在南侧,目的是为了将北面日照较少的区域保留给办公减少耗能。同时,在动线层级上,也设置了对外会客区与对内会议区,提高了空间效率与管理。        

  • 木子李 / 设计师

    2024年08月25日 14:38:45

    + 关注
    #办公智造#

    共享层除了休息与休憩功能外,还包括了员工服务中心与邮局,此层与餐饮群楼相连接,因此也设置了用餐区,服务于全体员工。在长远考虑上,邮局与用餐区域设计为可变空间设计,未来可作为培训与表演的多功能区。        

发布话题

公开