当前位置:首页 > 户型图分析

#办公智造#

阅读 987879 | 粉丝 987879

  • 小麦庆 / 设计师

    2024年08月24日 15:33:44

    + 关注
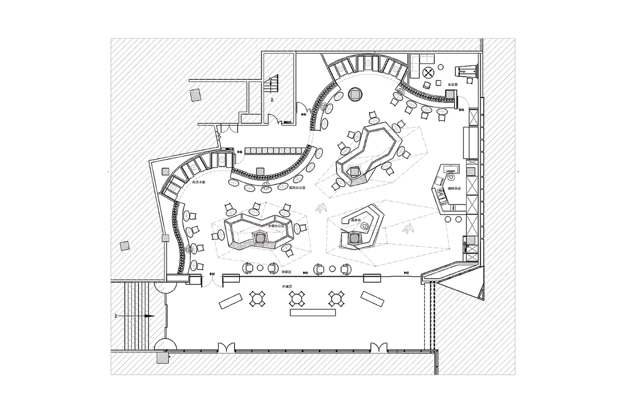
    #办公智造#

    哈喽环球(2)        

  • 杨焱 / 设计师

    2024年08月24日 15:30:08

    + 关注
    #办公智造#

    办公空间实景图        

  • 张曲峰 / 设计师

    2024年08月24日 15:24:26

    + 关注
    #办公智造#

    微水泥地面办公空间        

  • 王高君 / 设计师

    2024年08月24日 15:21:14

    + 关注
    #办公智造#

    调性...        

  • 敏颜 / 设计师

    2024年08月24日 15:08:45

    + 关注
    #办公智造#

    在中国上海的KWG BIOVALLEY医学研究办公室,通过使用高天花板、窗户和自然色调来增强空间。该研究中心是青浦区一个新的“健康与创新”商业园区的一部分,专门研究开创性的医疗技术,包括干细胞技术和中药。两种不同的医疗方法在现场结合在一起,反映在技术与传统、建筑与自然景观的对比中。新的商业园区由五座办公大楼组成,由一个零售平台连接,以及11座低层建筑,这些建筑被绿地环绕,沿着毗邻的运河连接到长江。自然材料的设计语言在所有区域都是一致的。大堂和电梯区明亮而简约,有花岗岩瓷砖地板、天然石材内衬墙壁和低调的绿色点缀。橡木木板、石材和全高金属翅片排列在大堂的墙壁上,与建筑的façade产生强烈的视觉联系,而在相邻的电梯区,深色青铜板包裹墙壁和天花板,在空间内创造了强烈的对比和深度。设计的目的是提供一系列大厅、现代工作区、行政会议室、开放式工作空间和横跨五座塔楼的公共空间。该设计结合了西方的影响和自然材料,创造了与周围景观的视觉联系。室内色调和材料的灵感来源于中医五行理论:水,木材,火,地球和金属。        

  • 敏颜 / 设计师

    2024年08月24日 15:07:14

    + 关注
    #办公智造#

    整体设计理念保持一致,具有大型木盒、金属表达和石材饰面。私人翼楼提供专属办公和休闲设施,包括健身房和餐厅。它还容纳了总统的私人卧室和浴室,以及较小的私人工作区,次级接待休息室和精致的木材包裹的定制细木工茶室。目的是创造一个舒适和功能齐全的环境,既能容纳工作,又有家的感觉。        

  • 毛均峰 / 设计师

    2024年08月24日 14:50:58

    + 关注
    #办公智造#

    同时空间中的几颗柱子,是空间归纳的最大难题,我们希望垂直向承重构件在这个空间中被阻止弱 化,,光能给地下空间,带来最直接的愉悦,消除地下空间的压抑感。甚至消失,空间可以被归纳成一个完整的流动空间。透光软膜的雕塑化运用,成为了激活这个地下空间的钥匙。光线可以为地下空间带来最直接的愉悦感,并消除地下空间的压迫感。同时,空间中的几个支柱是空间感应的最大问题。我们希望,在该空间中可以将垂直承重分量尽可能弱化,甚至消失,以便可以将该空间引入一个完整的流动空间中。半透明软膜的雕塑应用成为激活该地下空间的关键。        

  • 毛均峰 / 设计师

    2024年08月24日 14:49:08

    + 关注
    #办公智造#

    白天明亮的“冷白光柱”在晚上变成温和的“暖色调光”,这意味着该空间将从高效的办公模式进入休闲模式。空间开始呈现时间表达,调节人与人之间的距离温度。        

发布话题

公开