当前位置:首页 > 户型图分析

#办公智造#

阅读 987975 | 粉丝 987975

  • 易壮壮 / 设计师

    2024年08月22日 15:51:30

    + 关注
    #办公智造#

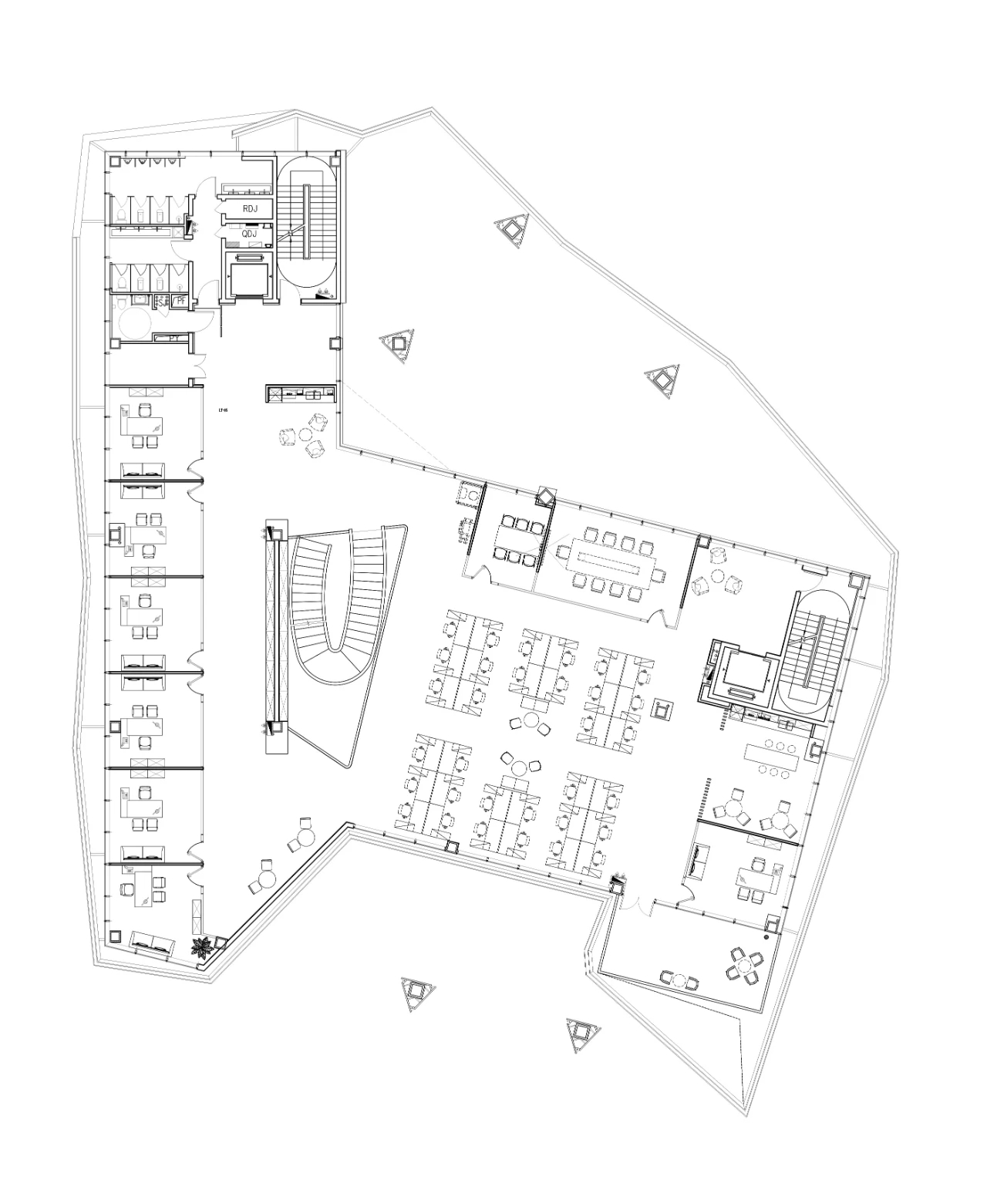
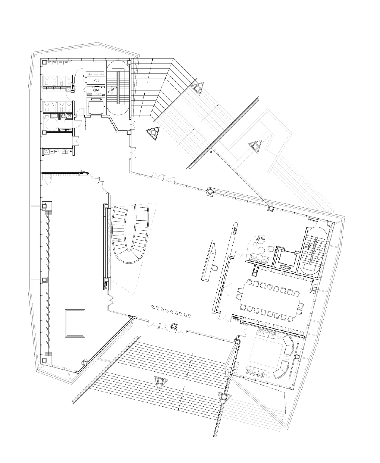
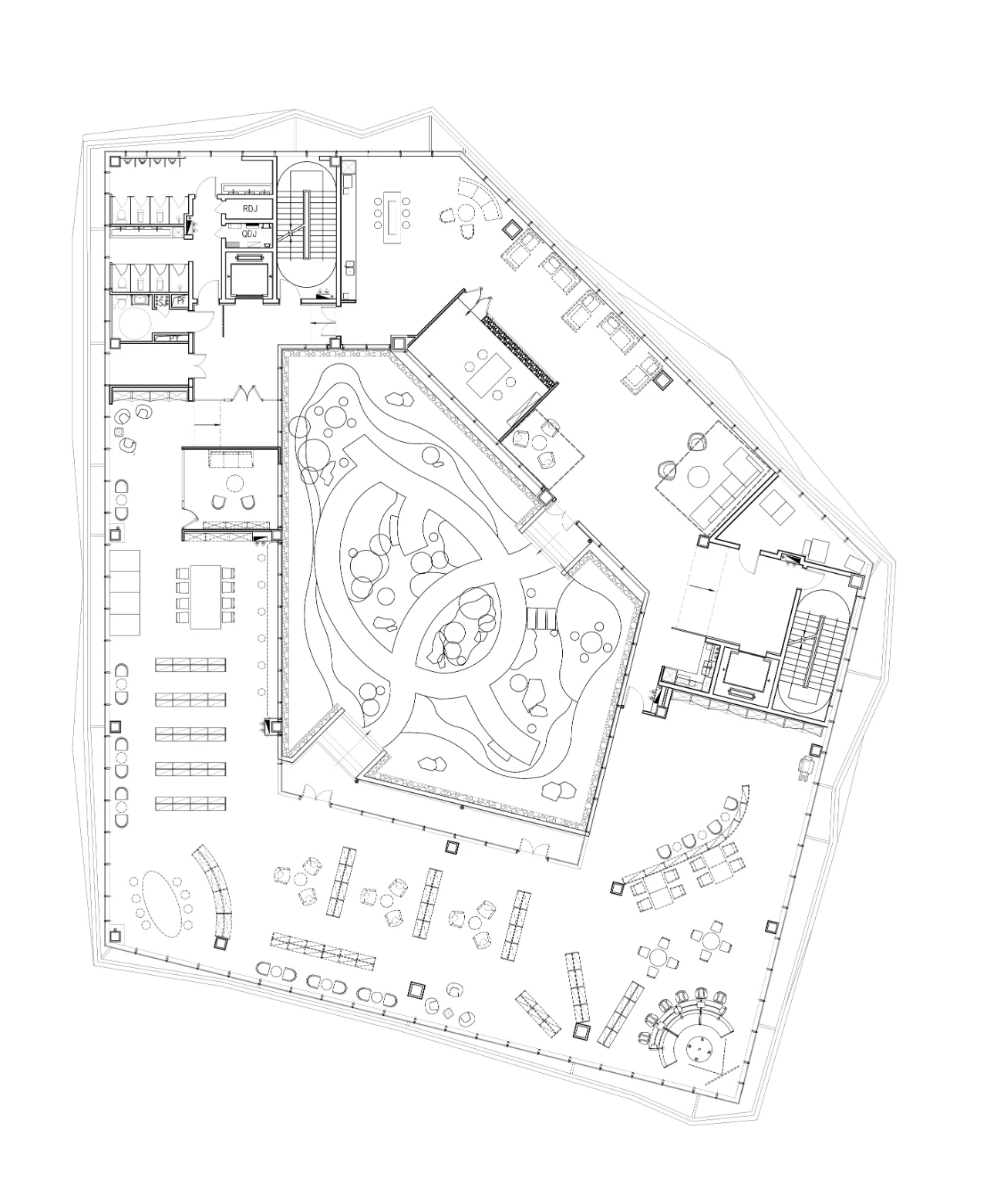
    在研究院六层的办公设计中,可以使用多种方式来连接不同楼层,以促进员工和访客之间的流动和沟通。
    从室外进入二层大厅我们增加了可坐人的大台阶。二层与三层我们拆除了一部分楼板,新增一部优美的楼梯。这些跨楼层的连接可以提供额外的交流空间,让员工在跨楼层移动时能够快速交流和合作。
    四至六层围绕中庭花园原来是一圈圈的室外走廊,我们用玻璃幕墙把走廊包起来,让人可以直接在窗边休息办公,欣赏庭院景观。这样也可以促进不同楼层之间的视觉联系和交流,让员工能够从楼层一览无余地看到其他楼层的情况,增强沟通和合作的意愿。        

  • 易壮壮 / 设计师

    2024年08月22日 15:49:09

    + 关注
    #办公智造#

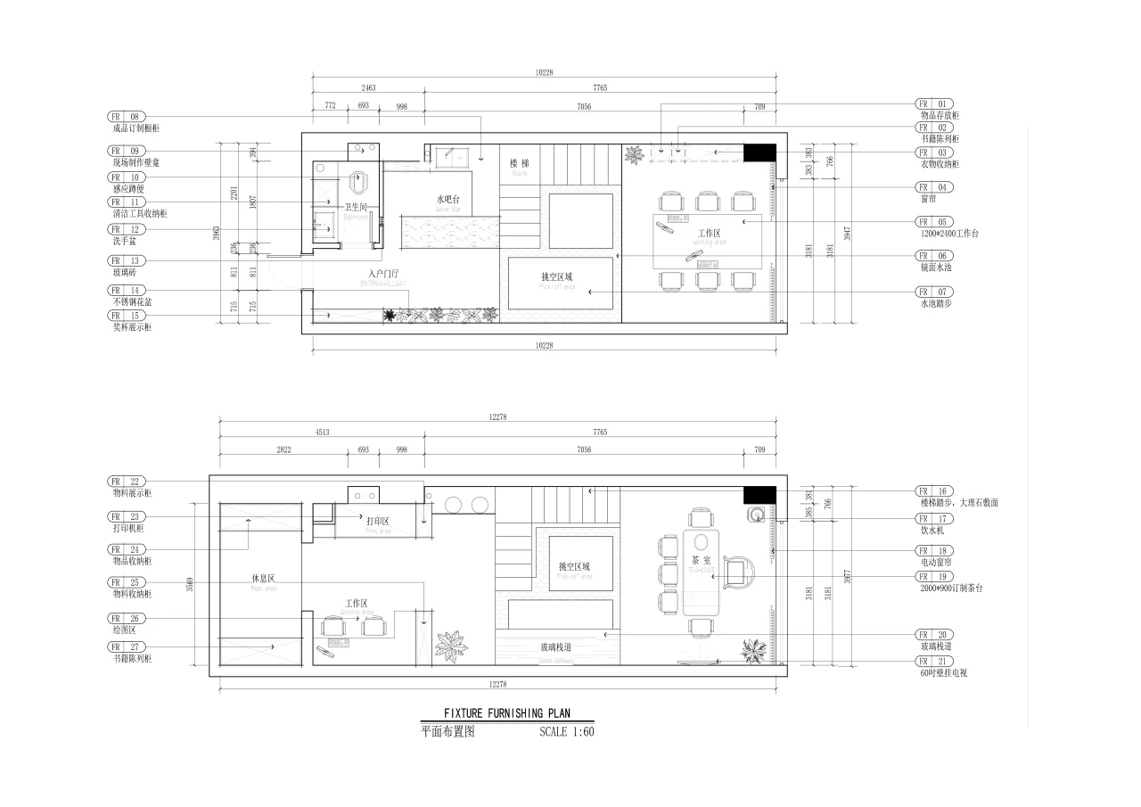
    灵活性的设计能够使办公空间适应组织的变化和发展。例如,当组织规模扩大或缩小、部门结构调整或工作方式改变时,灵活的空间设计可以迅速调整布局和配置,以满足新的需求。这种灵活性有助于提高办公效率并节省资源。
    不同的员工可能有不同的工作方式和偏好。灵活性的设计可以提供多样化的工作区域,如开放式工作区、 独立工作室、会议室和休闲区等,以满足员工的不同需求。这可以促进员工的个人效率和创造力,并提高工作满意度。        

  • 木子李 / 设计师

    2024年08月22日 15:41:24

    + 关注
    #办公智造#

    公寓式办公空间(1)        

  • 木子李 / 设计师

    2024年08月22日 15:39:13

    + 关注
    #办公智造#

    公寓式办公空间(2)        

  • Marienn杨恩惠 / 设计师

    2024年08月22日 15:32:33

    + 关注
    #办公智造#

    投资公司办公室        

  • Marienn杨恩惠 / 设计师

    2024年08月22日 15:31:56

    + 关注
    #办公智造#

    投资公司办公室        

  • Marienn杨恩惠 / 设计师

    2024年08月22日 15:31:11

    + 关注
    #办公智造#

    投资公司办公室        

  • 江北梅郎 / 设计师

    2024年08月22日 14:15:35

    + 关注
    #办公智造#

    办公空间设计        

发布话题

公开