当前位置:首页 > 户型图分析

#办公智造#

阅读 987901 | 粉丝 987901

  • 小海 / 设计师

    2024年08月23日 16:29:07

    + 关注
    #办公智造#

    办公空间资料库        

  • 陈澄 / 设计师

    2024年08月23日 12:54:56

    + 关注
    #办公智造#

    办公空间赏析        

  • 王丹丹 / 设计师

    2024年08月23日 12:53:35

    + 关注
    #办公智造#

    文化共创室        

  • 张小葵 / 设计师

    2024年08月23日 11:39:48

    + 关注
    #办公智造#

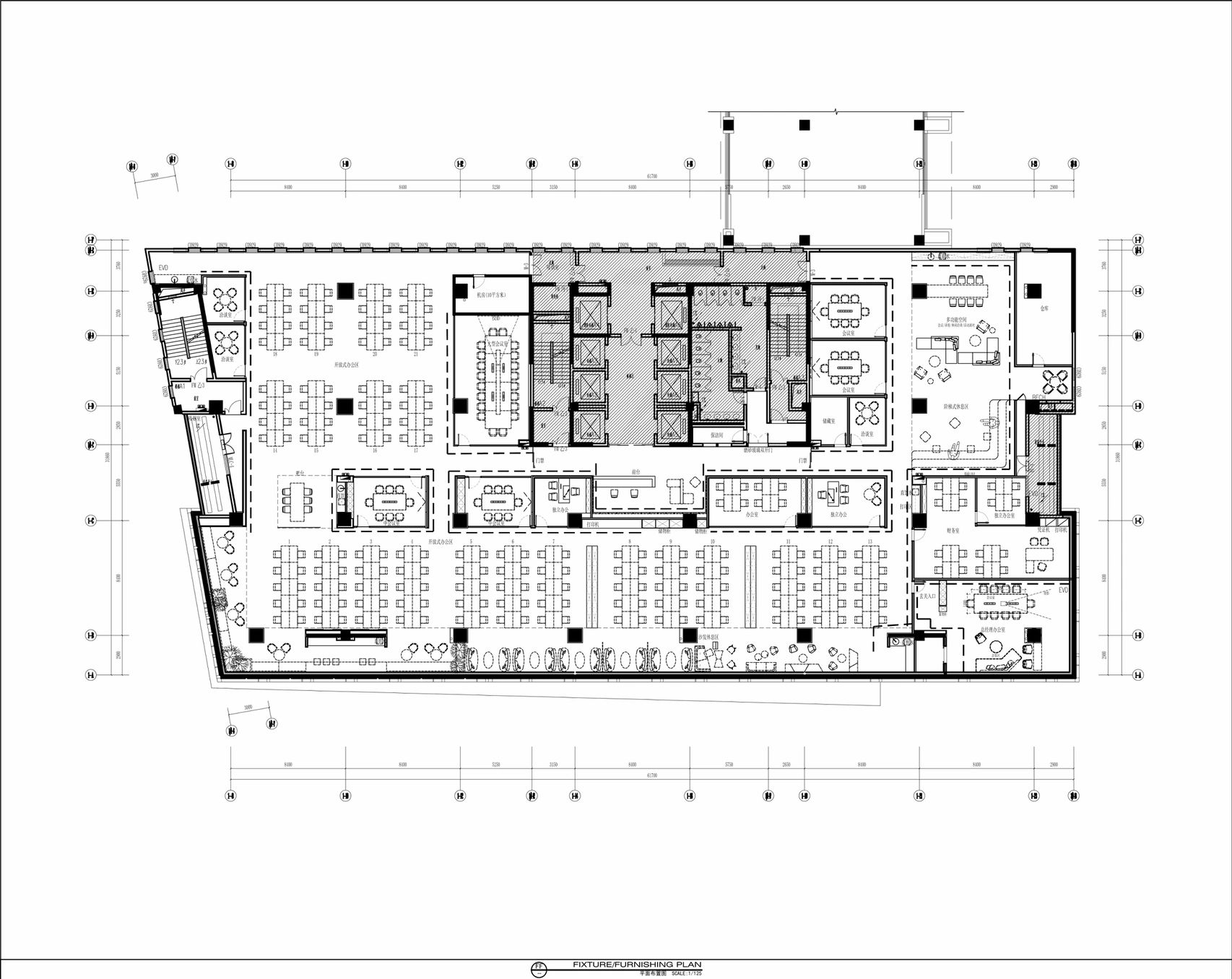
    项目集办公、接洽、展示、设计等多元用途为一体,复合的功能需求在约1500㎡空间内有序规划。视电梯厅为“轴”铺展洄游动线,串联对外的接待、洽谈、展示区与对内的工作、管理、设计打样场所。品牌墙悬而不落,一侧角倚石嶙峋,面素白有狭门透景;其下留空,底铺细石,无水而用“光”拟水波静谧;LOGO衍光,自成现代设计与东方写意神合。衍其韵,以“白”寓“简”,其实丰沛,克制地在理性逻辑下既实现了品牌识别性外观的表达,亦满足空间不同风格的有机整合。
    “自由”的概念,不局限于实体行为的无拘,更侧重心理层面放下戒备。洽谈区融入茶水间功能,规划在前台背侧,利用背墙透景、借景,充盈人的感官体验。几何界面呼应现代设计工业感的桌椅,流露简约、利落的干练气质;“一体两面”式结构运用,自由地完成空间“并合”无缝衔接。        

  • 张小葵 / 设计师

    2024年08月23日 11:35:50

    + 关注
    #办公智造#

    将羽绒纵横悬挂,打造立方式体量并成为一个“转场”的柔性过渡:天然羽绒质感轻盈,简洁造型构建突显肌理,经柔光作用衬托平和、宁静;此外,通过该材质表达的艺术装置,亦暗示品牌所涉羽绒相关设计产业。
    窗帘洗光趋柔,游走在陈设简约的空间内,开敞通透;利用柱式结构顺势做壁炉造型,对位摆放沙发酝酿内聚感;沉稳的“黑”与内敛低饱和用色搭配组合,色彩处于变化调和的平衡中。取自天然的“木”,纹理随机独特,质地坚固柔韧;浅调木色,应和此间素白主调,无需特定最佳视角,视野交互相成时尚轻盈。        

  • 张小葵 / 设计师

    2024年08月23日 11:33:31

    + 关注
    #办公智造#

    融于整体的差异性表达,在洽谈区经设计考量构建颇具东方气质的茶意氛围。阳光和灯光“无缝”切换,动态转变,将看似简单的细节刻画出丰富质感;概括用“线”与“木”质材料利落交接,展现凝练东方禅韵的调性的气质。直、曲线组合,简洁走势成就场景;矩形梁柱呼应圆润倒角,复合自然过渡的曲面,创造结构与形式间视觉平衡。

  • 椿楸 / 设计师

    2024年08月23日 11:08:39

    + 关注
    #办公智造#

    在方案设计中本项目的核心部分位于6楼,在这里,楼梯演变一个阶梯教室,甚至可以变成一个巨大的露天剧场。这个空间包括了主要的公共区域和接待处。在这个项目中,艺术美的呈现是通过将不同的材料和质感与建筑相融合来创造出多层次的空间体验感。该项目的另一个核心概念是策略性地选择植被作为点缀。用绿色的墙体和室内小盆栽组成的垂直隔断,可以让设计的某些区域变得更加私密和安静,以便于会议的使用。        

  • 椿楸 / 设计师

    2024年08月23日 11:07:15

    + 关注
    #办公智造#

    室内设计的材料配色主要是用木材、玻璃、植物和艺术品,营造出一个舒适温暖的工作场所。使用玻璃作为隔板使得整个室内空间更加流畅,增进了人们视线的交流,并能够充分地采光。地板设计采用了塑胶地板与天然木质地板,同时模块化地毯与独特的定制设计相结合,共同创造了舒适的办公空间。设计的核心要点是实现楼层之间的快速转换和达到节约能源的目的。该办公楼已被认证为LEED白金级绿色建筑认证,与此同时在建筑楼,办公空间也融入了可持续的设计理念。全新的使用方式,创造了一个标志性空间,而这一切要得益于一个增加员工归属感的流动空间的初步设想。        

发布话题

公开