当前位置:首页 > 户型图分析

#办公智造#

阅读 988475 | 粉丝 988475

  • 大鹏 / 设计师

    2024年08月15日 15:39:03

    + 关注
    #办公智造#

    大胆又大量的黑色运用增强视觉力量,第一眼就抓住宾客的目光,顶面纵横交错,灯具要求与顶面完全嵌入,干净、利落,暗纹的地面给空间带来灵动色彩,黑色均由金属板制作完成,质感与酷感兼容。        

  • 毛均峰 / 设计师

    2024年08月15日 15:18:00

    + 关注
    #办公智造#

    前厅去繁就简、营造开阔气派的震撼视觉。企业标志耀眼伫立,先声夺人。仿石材纹背景墙与灰色地板相得益彰。纯粗的用材与配色,简洁利落的灯光线条,现代简约,干净大气的面貌悉数在前厅呈现。在大厅一侧,设置了休闲等候区,皮革质感沙发点缀空间陈设的色彩,让空间更具人性化。‍简洁利落的直线条,营造自由与包容。‍‍‍‍‍通过不同材质之间的邂逅,平衡出无限舒适感。公共区域作为企业历史文化、品牌合作展示区,通过文字结合灯光的手法展现,简约大气。空间结合企业属性体验共生,创新的哲学美感融为一体,进一步勾勒出交错元素的层次感。
    入门大厅的旋转扶梯为本案设计的一大亮点,设计师为解决层高过高的问题,重新设计了夹层空间,极大增加空间利用率。拾级而上的阶梯,与柔和的曲线,在流动空间下异常契合。充满张力、循环往复的造型,赋予了无限及多元可能的诠释,表达出企业对美好以及永恒的憧憬,亦是作为区内工业企业和精密技术企业集聚的最好展现。VIP室以融合现代与中式的精髓。采用具有自然纹理透光水墨地板,增添空间深度,自然而又雅致。祛除繁琐配置和构造,墙体采用银灰色铝板,极具延伸感和灵活姿态。材质的碰撞彰显现代科技和典雅之美。        

  • 尤曼吖 / 设计师

    2024年08月15日 15:02:32

    + 关注
    #办公智造#

    大气前台空间        

  • 王倩 / 设计师

    2024年08月15日 08:54:29

    + 关注
    #办公智造#

    设计采用“水”的流畅舒缓的流线型元素,为员工提供一个活泼舒适、疏解紧张情绪的办公环境。高管层设计中则融入了“风”元素,直线造型如顺风般引导视线,倒角和折角元素则体现了无形之风中柔和的力量感。同时,光水风都是产生电能的清洁能源,寓意着极氪的员工也像光水风一样为极氪产生源源不断的电量。        

  • 王倩 / 设计师

    2024年08月15日 08:51:12

    + 关注
    #办公智造#

    办公总部大楼的首层展厅起着重要的门面作用,是展示企业形象的第一幅画面,展厅中既有展示核心产品——各系列新能源汽车,又有展示高科技术的电子展品,还有丰富品牌内容、增加客户黏性、加强客群交流的极物展示区,是极为重要且基础的展示空间。因此设计将其定义为“极氪宇宙”的“基舱”。        

  • 杨梅酱 / 设计师

    2024年08月15日 07:34:56

    + 关注
    #办公智造#

    办公室端景        

  • 田 空题 / 设计师

    2024年08月15日 07:25:36

    + 关注
    #办公智造#

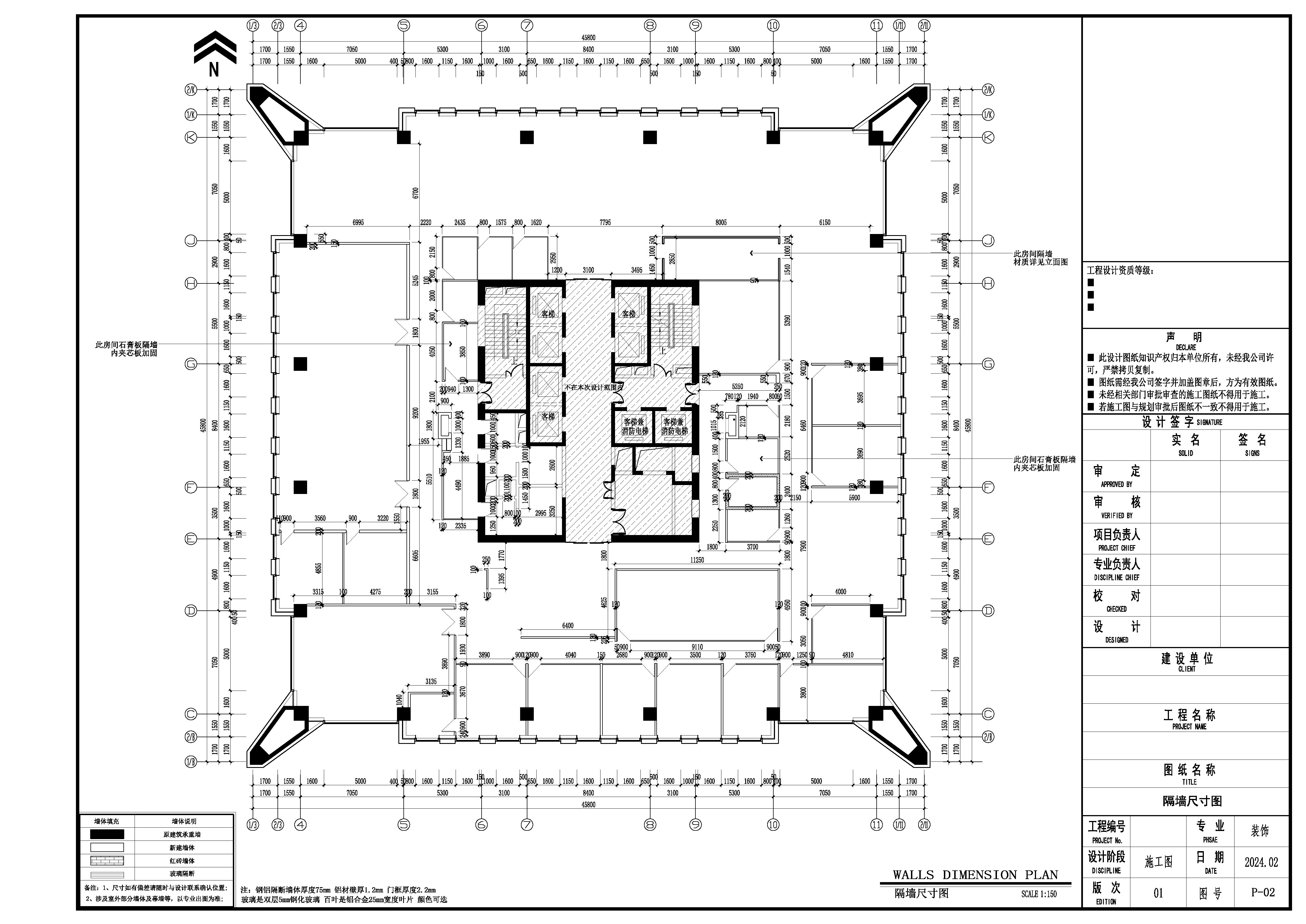
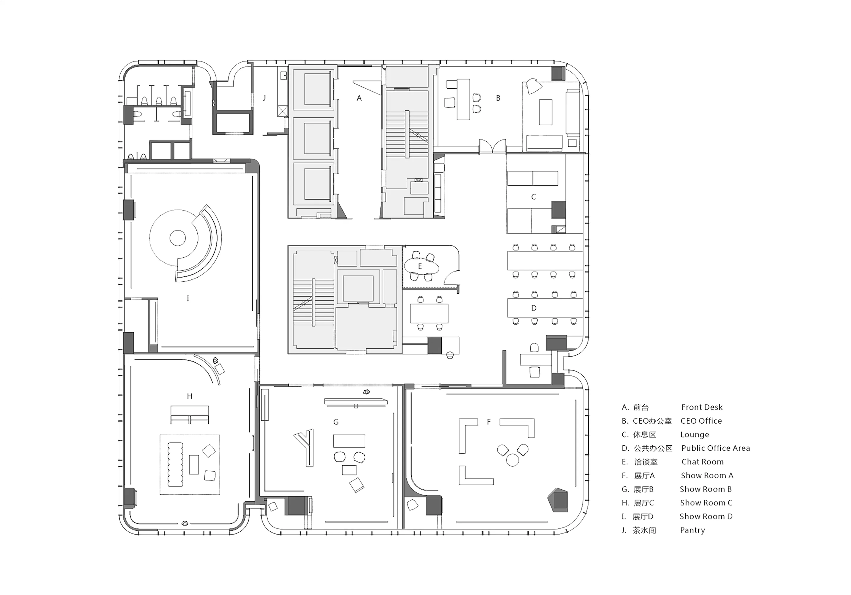
    图纸部分        

  • 蓦兰 / 设计师

    2024年08月15日 07:22:50

    + 关注
    #办公智造#

    效果图        

发布话题

公开