当前位置:首页 > 户型图分析

#办公智造#

阅读 988309 | 粉丝 988309

  • 木子李 / 设计师

    2024年08月15日 20:00:09

    + 关注
    #办公智造#

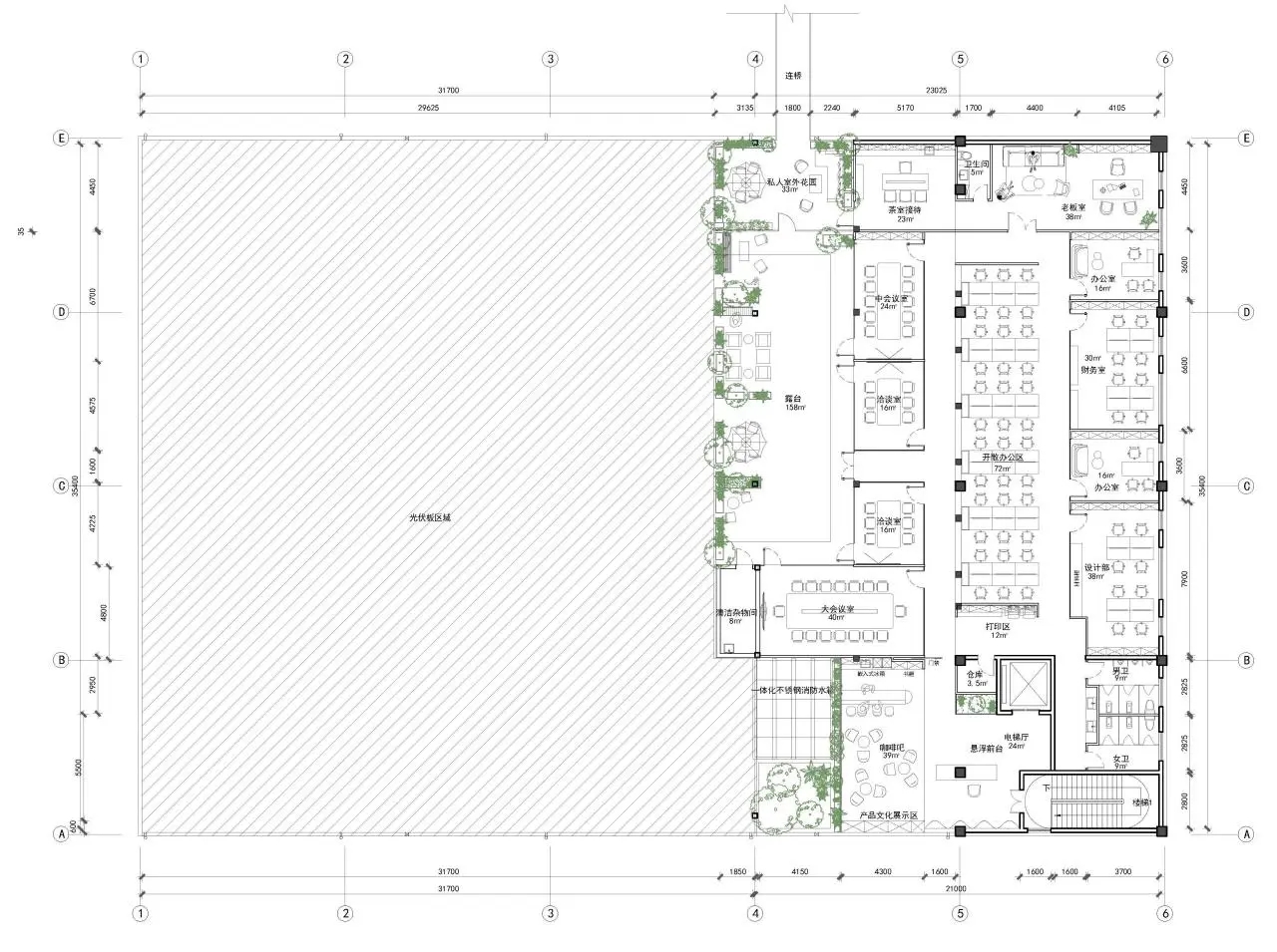
    前台的设计主要围绕两根柱体展开,入口的第一根柱子做了悬挑的接待台。你是不是找不到另一根柱子?背景墙墙面采用波浪造型,将它巧妙的藏了进去。休闲区位于办公空间的入口位置,设计为员工放松休憩和团队交流的场所。采用自然木材和简约家具,营造出温馨、舒适的氛围,提升员工的工作体验和生活质量。办公区走廊的地面材质和其他功能区做了区分。两侧靠窗的办公室采用了玻璃隔断,将窗外的光线引入室内,保证了空间的通透感。开放办公区结合意式元素做的圆拱造型,与传统的办公空间不同,既能保持空间的开放性,又为员工提供一定的边界感。原木家具也极具线条感,加以绿植的点缀,使整体的空间更有呼吸感。管理层办公室设计简约大方,采用玻璃墙隔断,既保证了私密性,又与整体空间形成了视觉上的连贯性。自然光线和开放式的布局促进了管理层的效率和工作氛围。        

  • 木子李 / 设计师

    2024年08月15日 19:56:59

    + 关注
    #办公智造#

    会议洽谈区同办公室做了两侧的玻璃隔断,一侧连接室内,另一侧连接露台。日式的木饰面结合意式简约的家具,和整体空间的主题相呼应。接待客户的包间与茶室直通露台,在与客户交流的同时,还能将户外的景色纳入室内。包间内部布局精致,包含了自然元素和艺术感,与公司对客户服务的重视和品牌形象一脉相承。老板办公室的设计与整体空间风格统一的同时,更具有层次感,内部设有休闲区和茶室,为高级客户接待提供了独特的环境体验。        

  • 木子李 / 设计师

    2024年08月15日 19:50:04

    + 关注
    #办公智造#

    露台既作为额外的工作和休憩空间,联通了办公区、包间接待区以及老板办公室,引景入室,内外贯通还设有适当的座椅和绿植布置,为员工提供放松身心的环境,也可作为举办活动和团队建设的理想场所。        

  • 毛均峰 / 设计师

    2024年08月15日 19:26:15

    + 关注
    #办公智造#

    本案内,通过精妙的材料组合与空间配置,对内外场景做出差异化的区分,我们期望以此实践提出一种面向未来的办公空间设计趋势,并以低成本的组合定制改造设计策略,构建出一个未来科技感和温暖归属感相兼容的办公气氛。
    位于首层的大堂空间,摒弃了复杂的空间造型,以黑色石材地面和白色灯膜吊顶形成了简洁的黑白主调,并点缀以不同质感的材质,打破真实感知,游走于未来感体验。设计的立意在于营造通透、明亮的场域氛围,最大限度地实现内外融合,提供畅通无阻的交流体验。吊顶灯膜引入冷色调光源,造型上采用线性纹理演绎空间,展现办公环境中的极简的美感,在纯净的色彩中注入动态元素,营造出动静结合的现代办公语境。        

  • 毛均峰 / 设计师

    2024年08月15日 19:23:48

    + 关注
    #办公智造#

    梧桐的办公空间需要具备一定的灵活性,以适应独自专注工作、集体讨论、社交和协作等多种需求。办公区域以内外朝向为界定,将工作区和休闲区的人流动线整合,以保留最大限度的弹性空间。通过内外冷暖色调的对比和区分,在保持开放空间完整性的同时,寻求与功能性之间的平衡。与梧桐公区的极简化冷色调相反,供业主使用的办公空间则更加松弛且舒适。大面积的木饰面吊顶格栅和木饰面墙面为空间提供了主要的暖色气氛,嵌入式的线性光源也为使用者提供了舒适的照明。
    将传统办公场所与现代需求巧妙融合,为使用者提供多样化的空间模式和充满活力的办公体验,以动线将工作区与休闲区串联整合,构成富有变化的动态秩序与高效便捷共创协作的流动空间。在此之上,更深层次的意义在于对城市更新区域的空间资源进行整合与再利用,提升板块价值。        

  • 大鹏 / 设计师

    2024年08月15日 15:44:27

    + 关注
    #办公智造#

    明快的色调及动态视觉自动进入眼帘,步入其中,顶部镜面吊装的工艺要求让空间感看上去更加开阔与通透,镜面天花映衬着潮流影像,虚实交错,空间简约、明快、摩登。
    空间的质感基于对细节的把控,梯子设计选用不同的纹理、不同光感的岩板,平面及富有流动纹理的两种岩板搭配,远看有型,近看有细节。地面、墙面、接待台、均采用岩板制作而成,几何造型与线条穿插其中,接待台的背景与室外保留一簇呼吸空间,不规划的入口引导我们进入内部空间,简约主义的美学,充满设计感,Less is stylish,Less is fun。简而有型,简而有趣。LOGO以投影的方式呈现,顶面黑色灯槽围绕中心筒展开,也是空间环型动线的的引向。由入口看向多功能区,正对面大柱子旁边的“小柱子”是设计师设计上去的,与原结构大柱子"结伴",通过展台DP点相连,形成有趣的微妙平衡。        

  • 大鹏 / 设计师

    2024年08月15日 15:42:22

    + 关注
    #办公智造#

    敞开式办公空间竞争意识及积极性会受周边人的状态影响,所有人的工作状态都将处于公众的可视范围内,行为规范及秩序性都在伙伴间自我约束中产生,构成乐观与积极的工作氛围,无形中促进当下工作表现。        

  • 大鹏 / 设计师

    2024年08月15日 15:41:00

    + 关注
    #办公智造#

    方有方的性格,圆有圆的洒脱,“斜”是不被定义、简约富有灵动性。“/ ”被用作黑白系品牌“壹题”视觉特色。橱窗的半高斜墙,被设计师打趣的称之为“躺赢”,从橱窗到墙面及纵横交错的顶面,统一贯穿,单一的元素重复使用,带来极致的震撼性,过目不忘。        

发布话题

公开