装修案例
灵感美图
找设计
找工长
看工地
记住密码
我已阅读并同意注册协议
发布话题
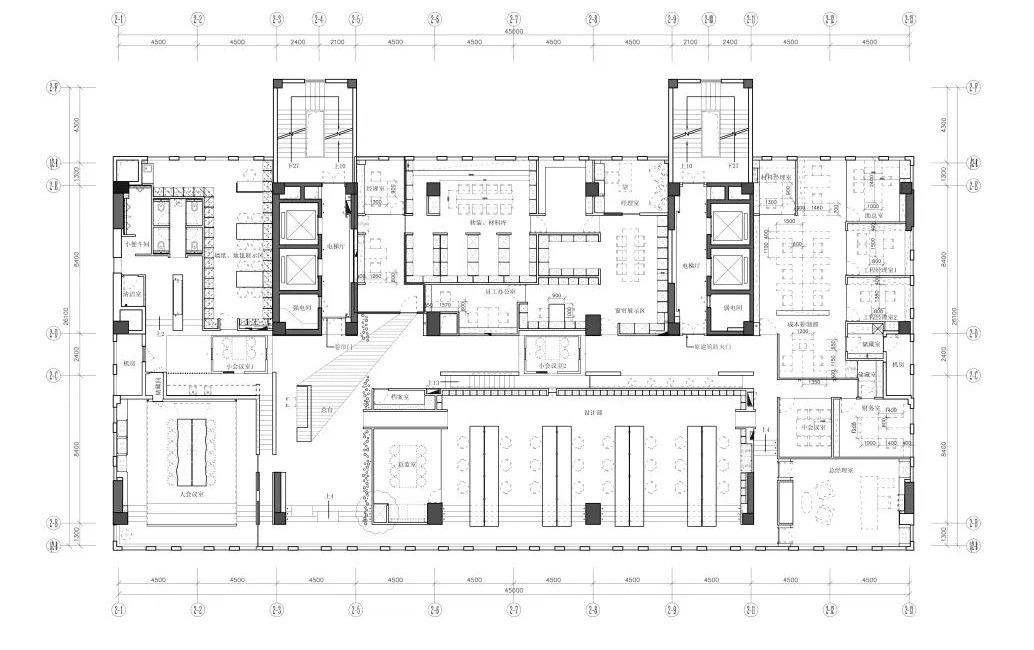
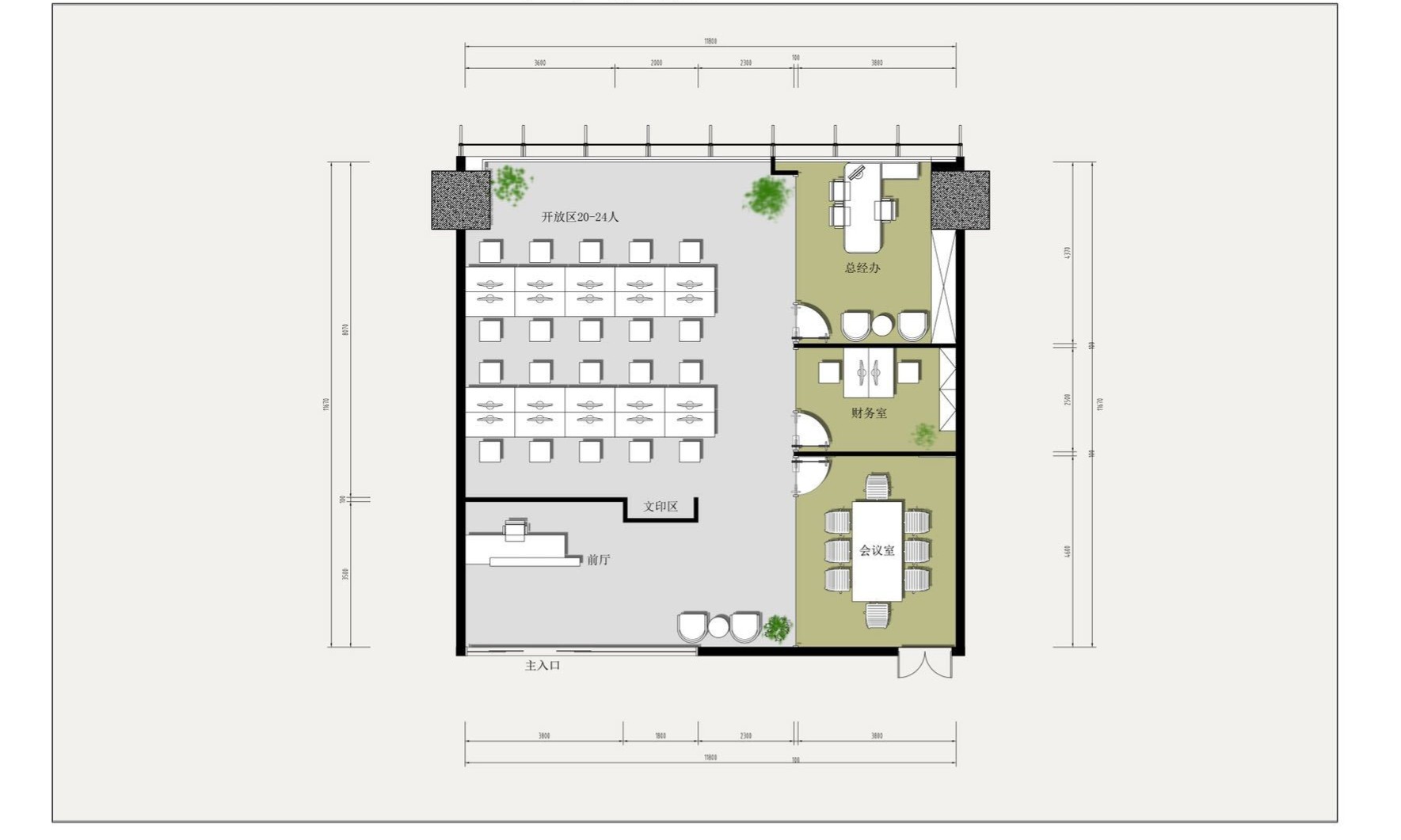
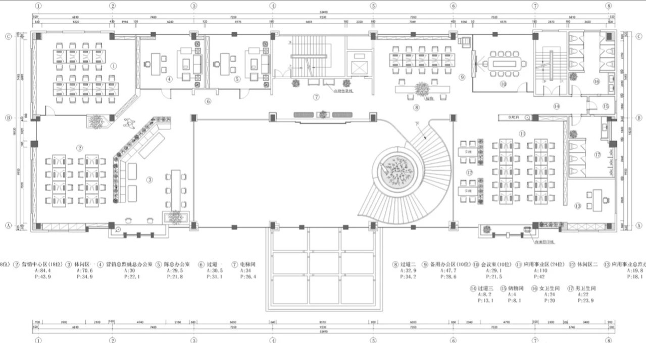
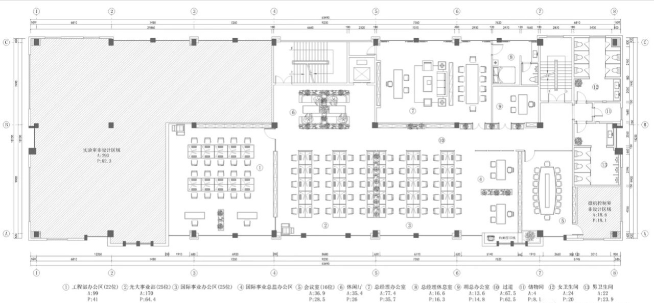
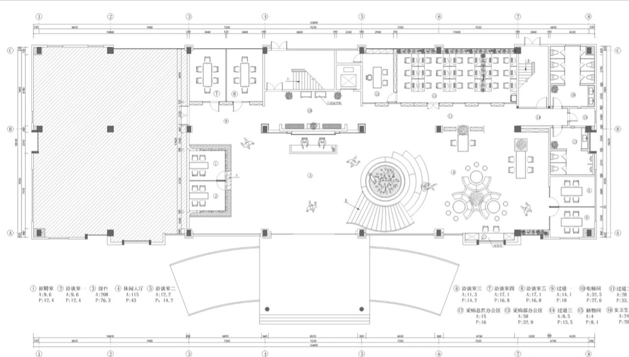
一~四层平面布局图
办公室实景图
大璞办公室
格调办公空间(1)
格调办公空间(2)
律所办公空间
企业办公会所
智慧办公理念的融入,构建多功能场景,丰富的组合形式可以支持多元的工作形式。巧妙的空间布局将不同的区域有效联结,实现智慧办公的高效性和共享性。简而不凡,摈弃一切冗杂的形式之美,通过合理的功能划分和动线优化,构建有形而无形的交互,让整个空间稳重高效的同时而不失自由灵活。