当前位置:首页 > 户型图分析

#办公智造#

阅读 990822 | 粉丝 990822

  • Diana / 设计师

    2024年07月12日 21:35:45

    + 关注
    #办公智造#

    为了打破办公布局的单调性,设计师特别将前区设计为以会议、培训、社交、脑暴及灵活办公为目的的多功能服务社区,这里是团队活动和员工汇聚的核心枢纽。        

  • Diana / 设计师

    2024年07月12日 21:34:50

    + 关注
    #办公智造#

    绿色和黄色作为主色调,两种颜色既鲜明又富有活力。绿色象征着健康、自然和新鲜;黄色象征着阳光、快乐和新生 。这与SUBWAY提供健康快餐的理念相契合。        

  • 饶阳 / 设计师

    2024年07月12日 21:19:50

    + 关注
    #办公智造#

    办公空间设计        

  • 田 空题 / 设计师

    2024年07月12日 21:12:30

    + 关注
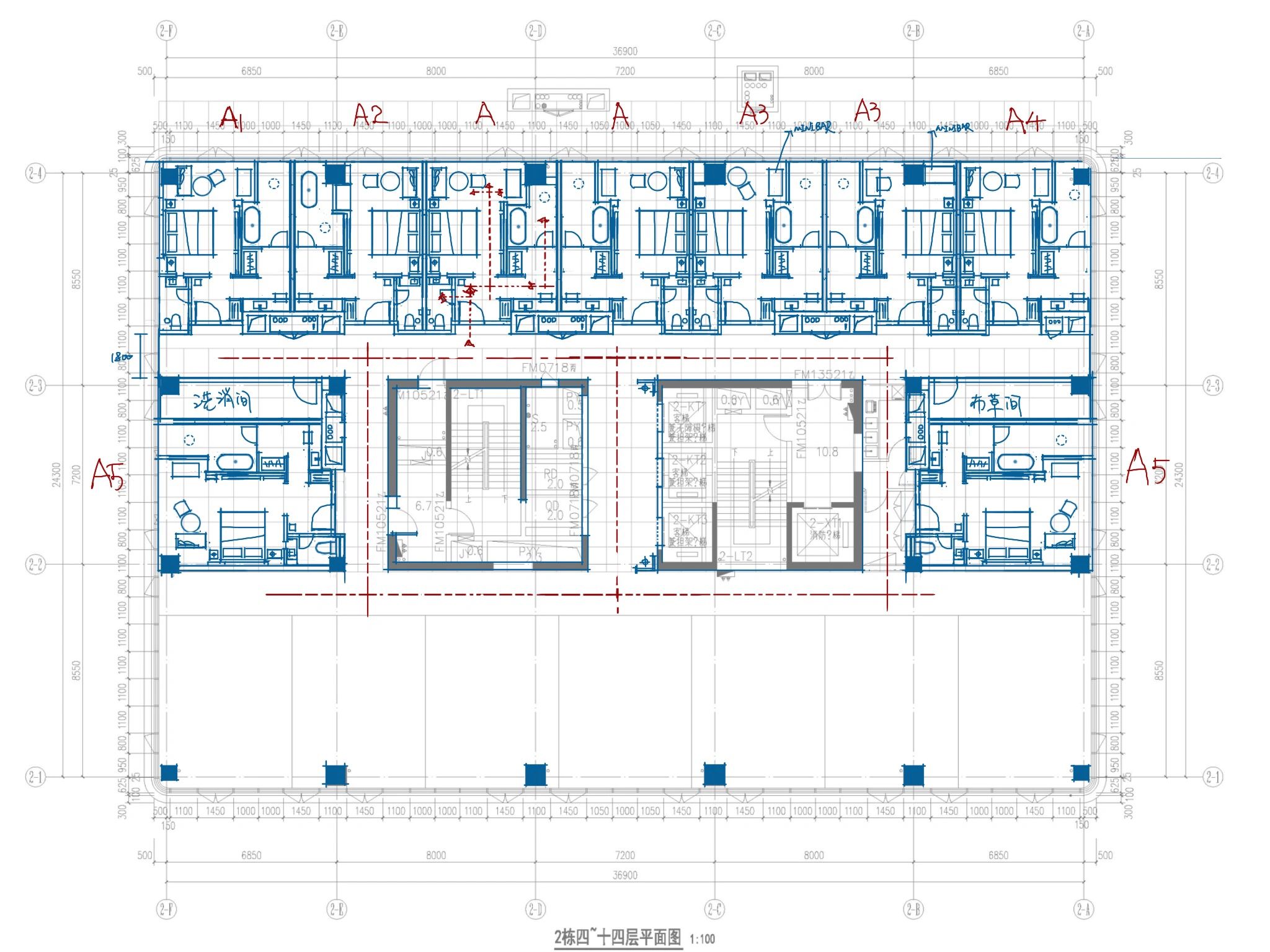
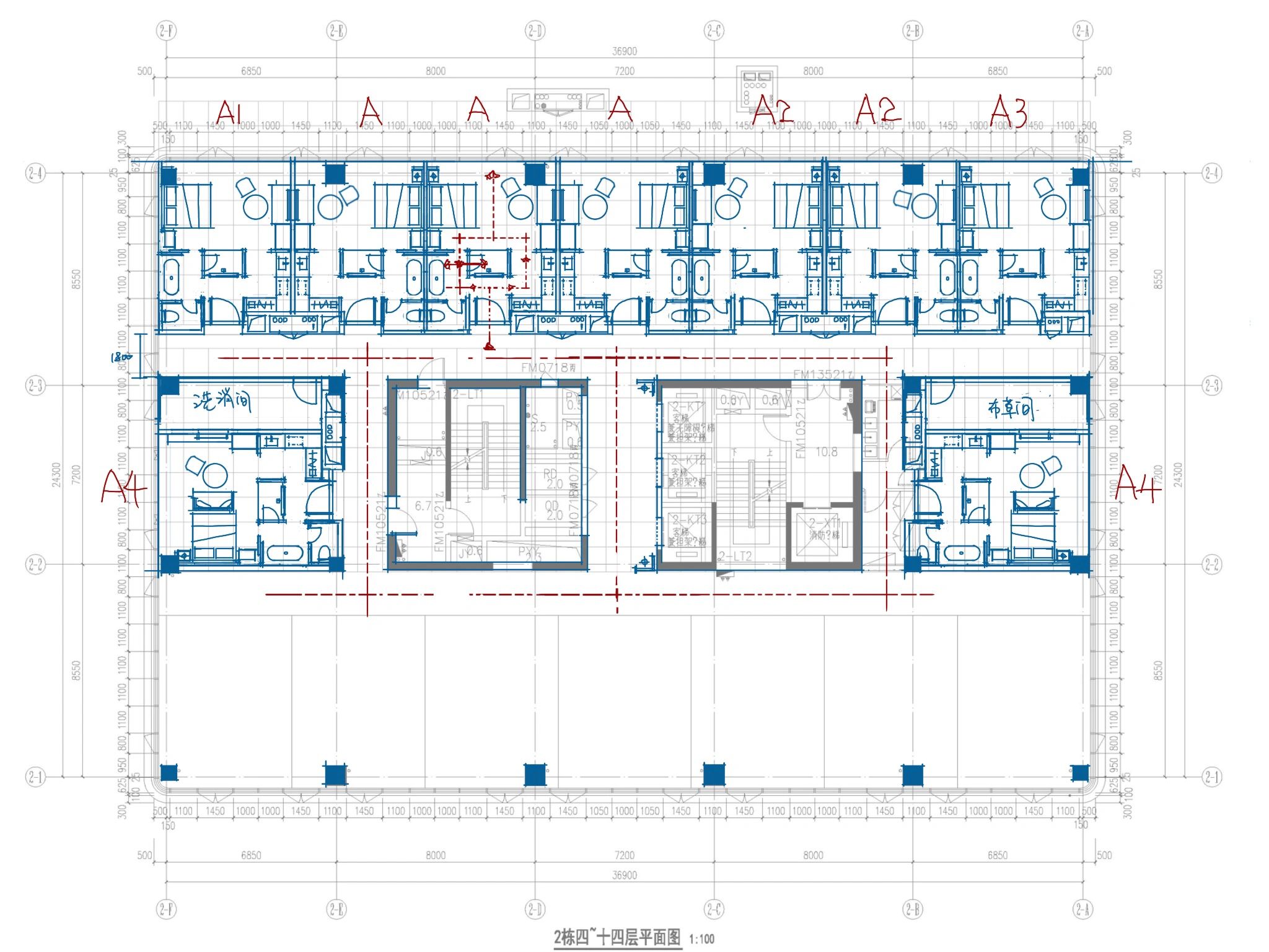
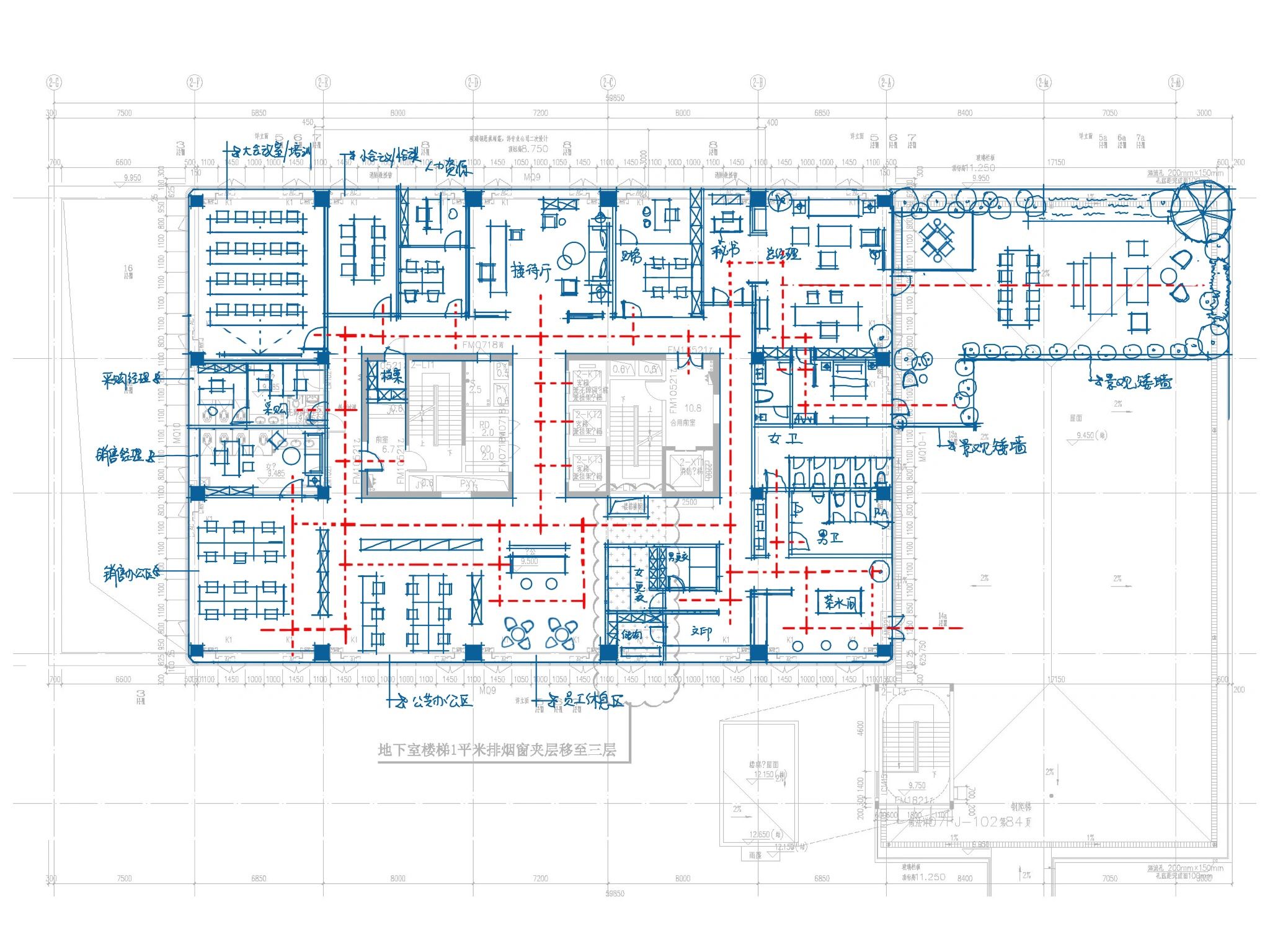
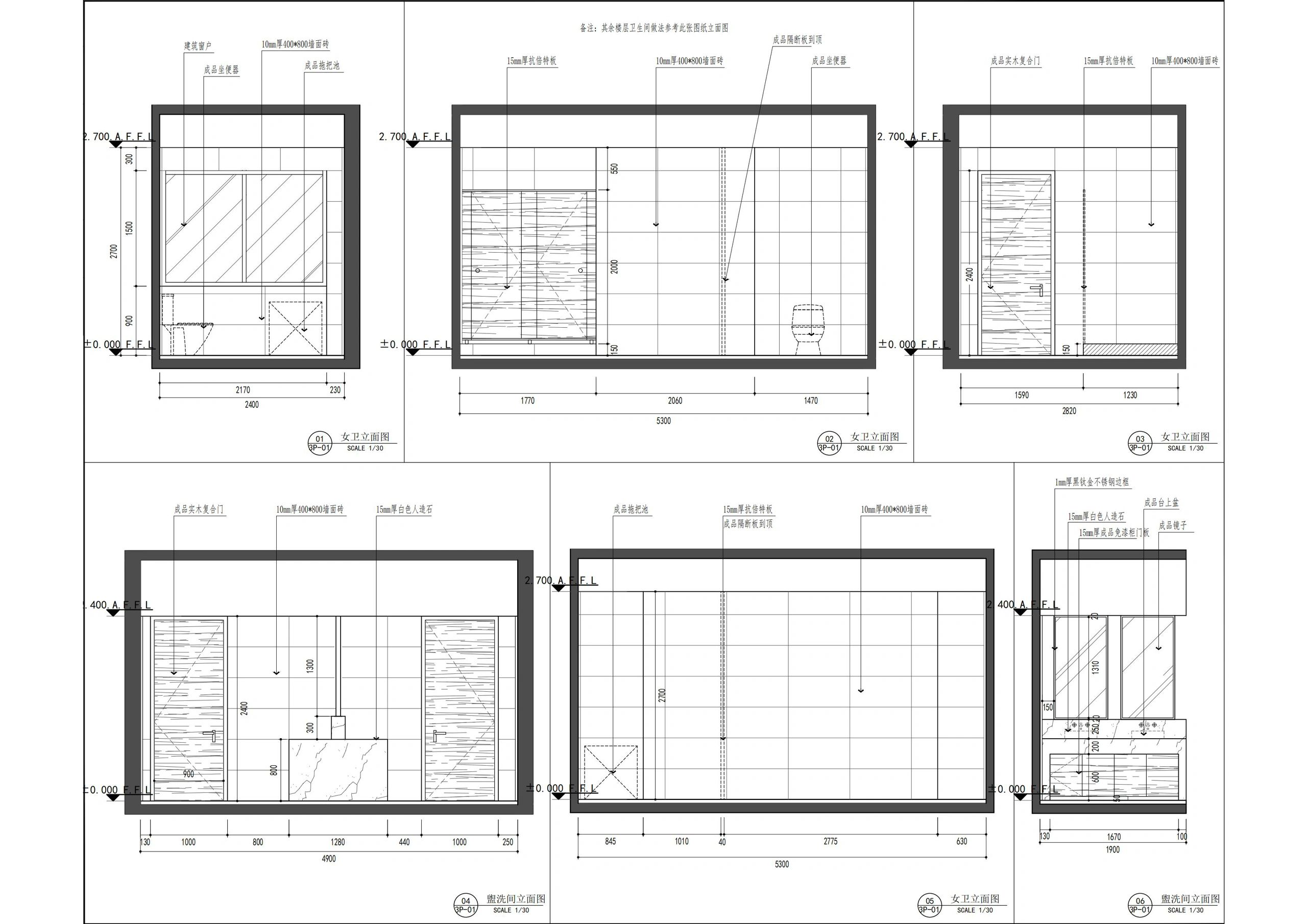
    #办公智造#

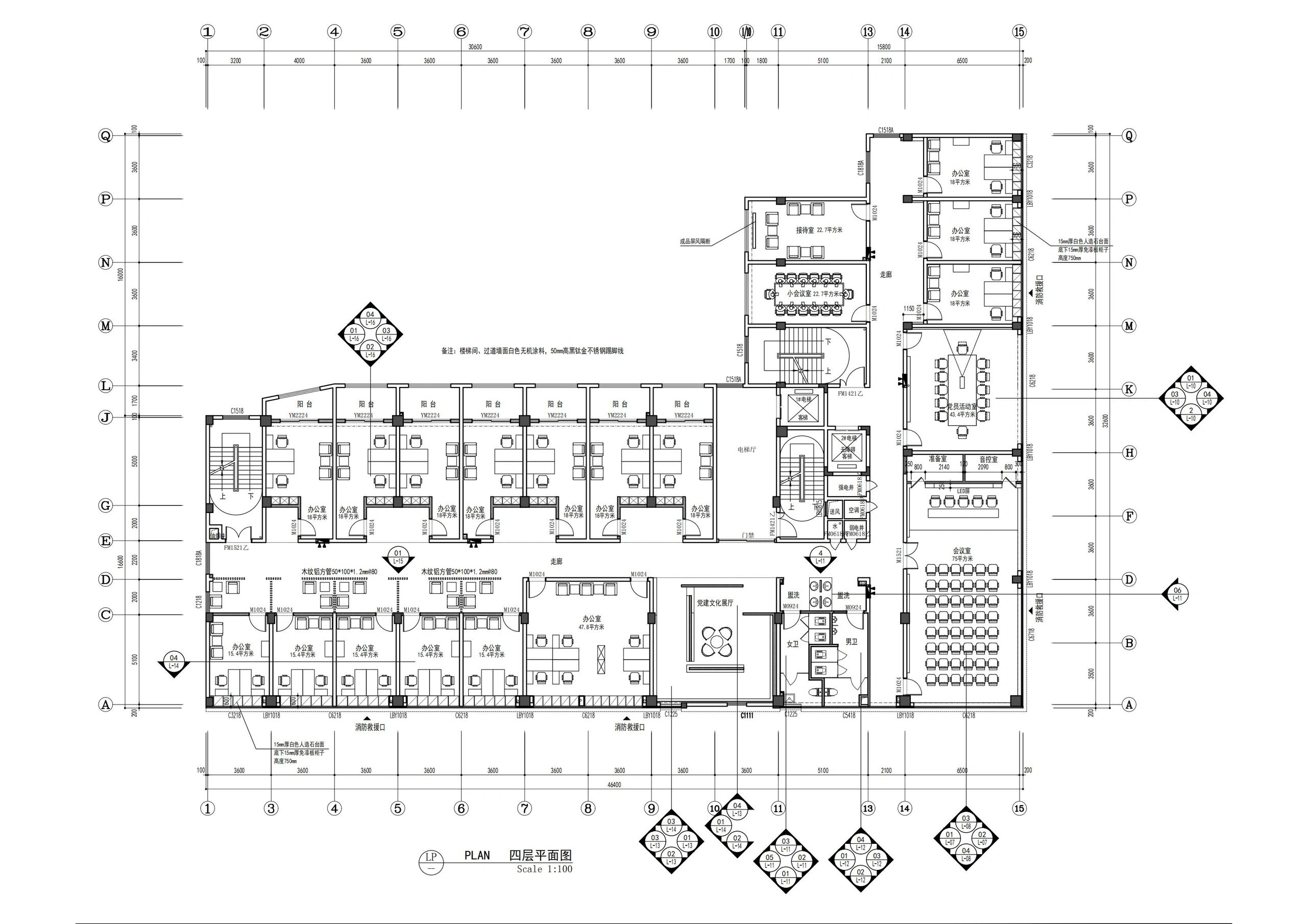
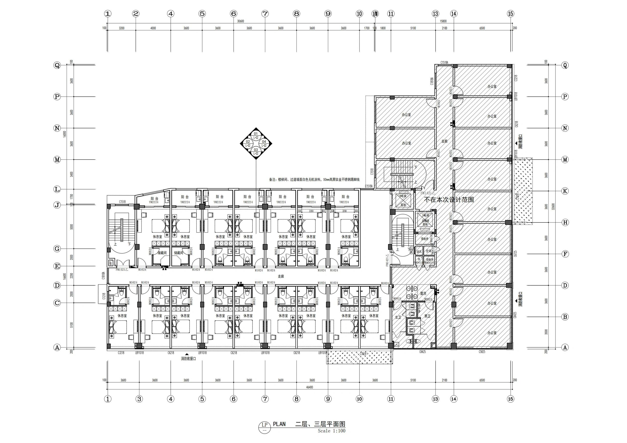
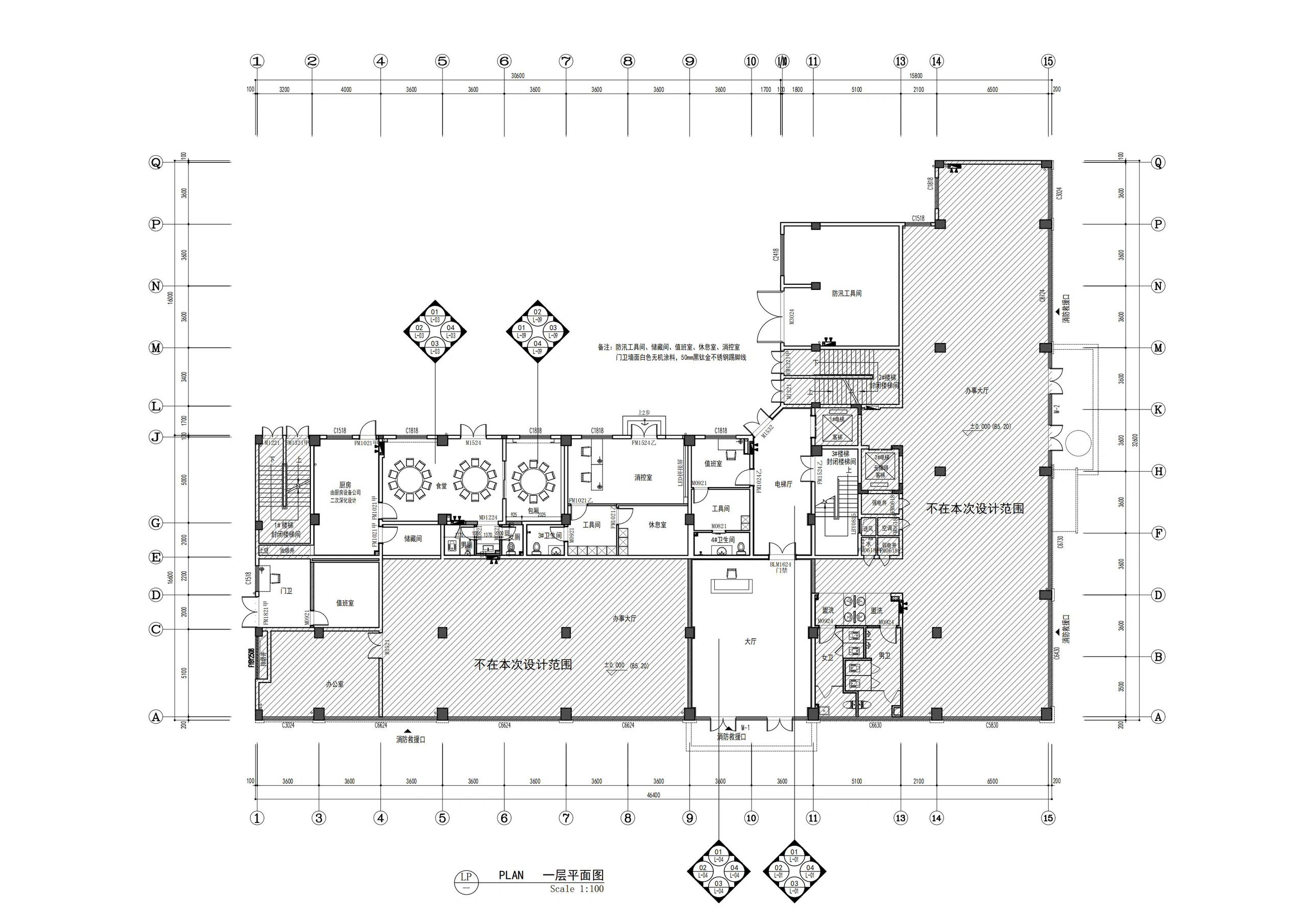
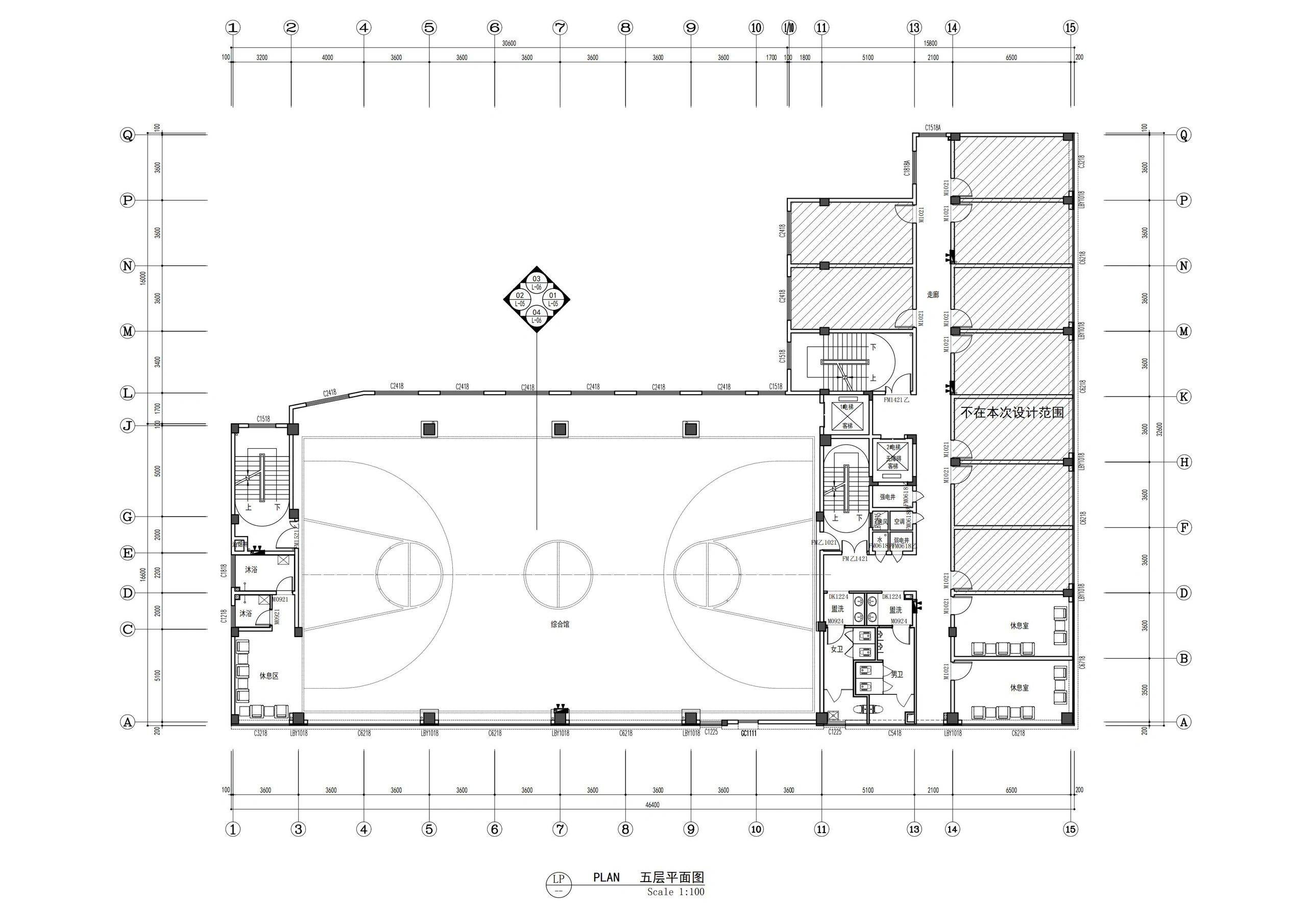
    施工图纸        

  • 刘君雅 / 设计师

    2024年07月12日 17:28:59

    + 关注
    #办公智造#

    新办公空间拥有充足的自然光线,融合了精心设计的未来感银丝元素,光的设计寓意为法律原则乃灯塔,照亮通往正义和透明的道路。
    以银丝装置艺术承载的 logo 墙揭开新办公室的神秘面纱。银丝闪耀如光,象征法律的公正、透明与无私,为整个空间定下基调。        

  • 刘君雅 / 设计师

    2024年07月12日 17:27:40

    + 关注
    #办公智造#

    律所近3300平米,空间设计如四季更替的绚丽画卷展现眼前。四季的变化象征法律的演进与发展,从二十四节气中汲取的丰富色彩和深远寓意延续其中。        

  • Design 陈 / 设计师

    2024年07月12日 12:58:04

    + 关注
    #办公智造#

    过程也是一种修行...        

  • 大鹏 / 设计师

    2024年07月12日 12:54:46

    + 关注
    #办公智造#

    实景落地(1)        

发布话题

公开