当前位置:首页 > 户型图分析

#办公智造#

阅读 990922 | 粉丝 990922

  • 江北梅郎 / 设计师

    2024年07月05日 10:06:25

    + 关注
    #办公智造#

    细节决定成败

  • 九头鸟 / 设计师

    2024年07月05日 10:04:27

    + 关注
    #办公智造#

    办公楼空间设计        

  • 椿楸 / 设计师

    2024年07月05日 10:03:29

    + 关注
    #办公智造#

    现代工业风办公空间        

  • 木子李 / 设计师

    2024年07月05日 07:30:59

    + 关注
    #办公智造#

    ENTAY/入口遇见黑洞,建筑扭曲,AILSE/过道转向,遇见光明,EXHIBTION/材料展厅/洽谈        

  • 木子李 / 设计师

    2024年07月05日 07:28:35

    + 关注
    #办公智造#

    CONFERENCE ROOM/会议室/接待        

  • 张小葵 / 设计师

    2024年07月05日 07:24:31

    + 关注
    #办公智造#

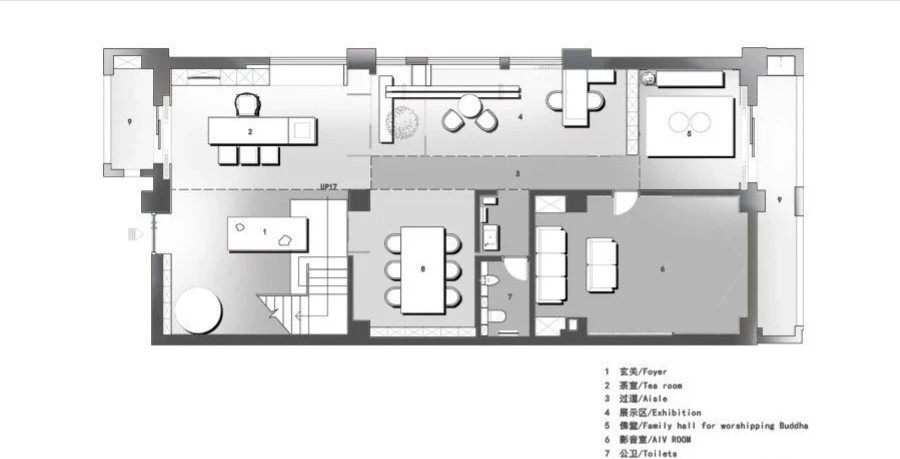
    走进玄关映入眼帘的是长型枯山水沙盘,小巧、静谧、深邃,如一副留白的山水画卷,衔接通往二楼的白色大理石台阶,令人心旷神怡,意犹未尽。
    现代中式风格中,木格栅被广泛运用。平面空间设计上,除二楼房间的木色格栅,连厅则采用白色木格栅隔挡实现功能区分,横竖交错、错中有序,在错落中寻找平衡,富有层次。
    原洗手间位置被改造成天井,充分利用空间挑高的优势,配置一颗五米青松,巍然静立犹穿破云霄之势,尽显松的挺拔,神采奕奕。半围合造型木格栅保证了视线光影的通透,朦胧优雅不沉闷;同时,在二楼也可环绕俯瞰景观,增强空间趣味性。        

  • 张小葵 / 设计师

    2024年07月05日 07:22:41

    + 关注
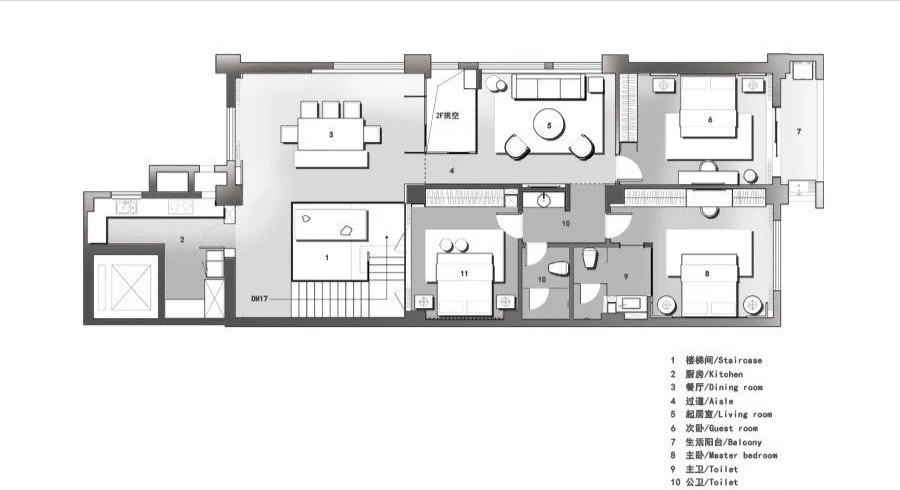
    #办公智造#

    作为复式楼层,将办公娱乐、寝居领域彻底划分,穿越一楼廊道,茶室、办公区、阅读区、影音室、佛堂层层相扣,即便同事亲友齐聚,也不扰及二楼寝居的静谧。        

  • Miss依罗莎 / 设计师

    2024年07月05日 07:13:11

    + 关注
    #办公智造#

    平面图(病人的旅程)是一条逆时针循环路线,始终朝向光线。无论是平面、剖面还是材料,都最大限度地利用和放大了我们初次实地考察时发现的充足光线和体积,营造出一种舒适、包容的氛围。在私人/公共空间中,声音的私密性和言语的清晰度都是绝对必要的。4 米/13 英尺高的部分最大限度地利用了给定的体积,将充足的外围光线引入办公室/咨询室/检查室,并通过 5 英尺高的玻璃天窗进一步向内进入带有 Med Assist 工作区的流通路线。        

发布话题

公开