当前位置:首页 > 户型图分析

#办公智造#

阅读 990924 | 粉丝 990924

  • Miss依罗莎 / 设计师

    2024年07月05日 07:11:34

    + 关注
    #办公智造#

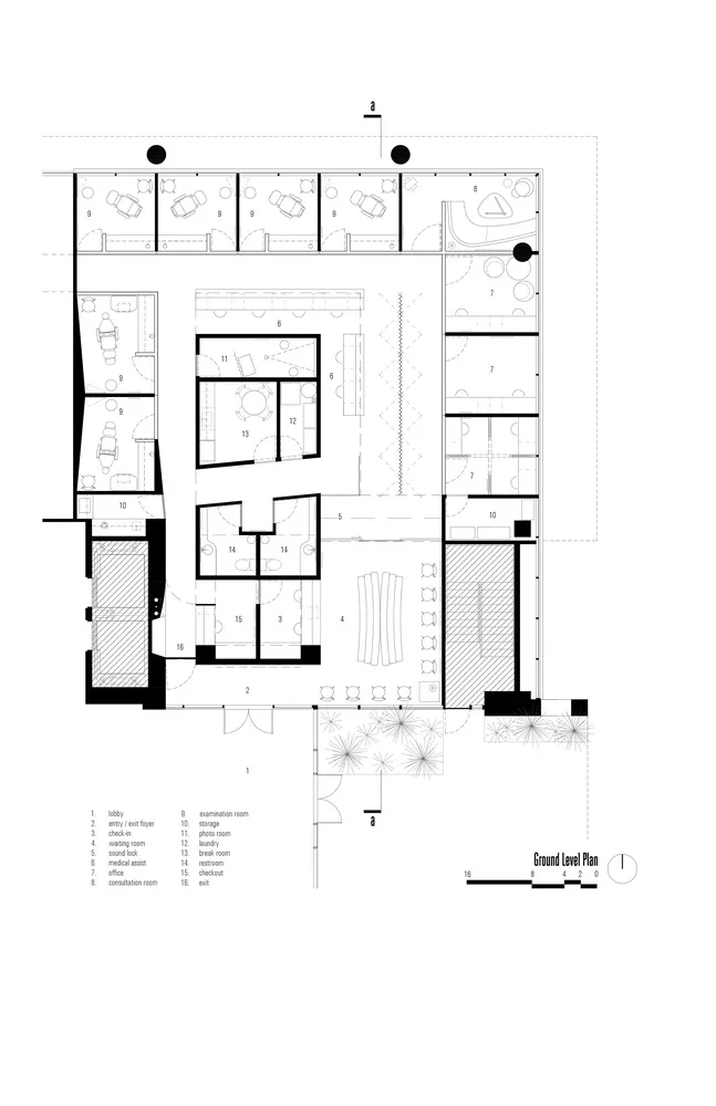
    平面图的中心是辅助空间,正面是一面入口采光墙。白色的中性色调呈现出自然光不断变化的色彩,通过软硬(隔音)家具,包括吸顶灯和精心策划的艺术项目,俏皮地强调了这一点。白色也是为女病人提供的黑色丝质长袍的中性背景。这种图案也成为大门的图案。SWBA 的室内设计旨在延伸/放大光线(色彩),将每位患者的旅程都包裹在一种恢复活力的氛围中。
    8 英尺高的¼"钢板基座环绕着外围的私人空间,并安装了隔音门和斜面玻璃窗,以减少公共/私人空间的声学混响。浮动的彩色隔音帘将初诊/诊室与复诊分开,将 "妇女及其支持小组 "与医生之间的初诊引导至角落的私人诊室。        

  • 甲由 / 设计师

    2024年07月05日 07:06:34

    + 关注
    #办公智造#

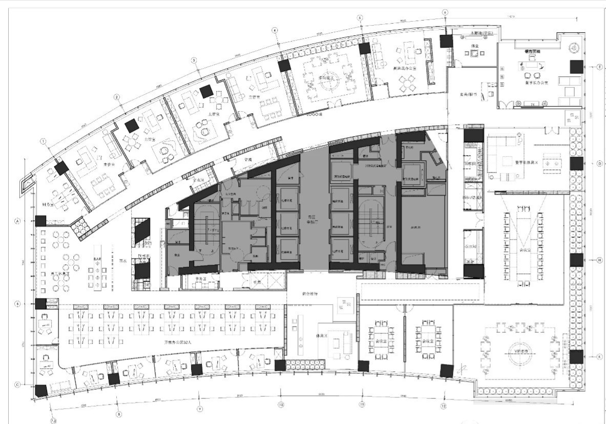
    总体办公中心延展时尚年轻的设计调性和思路,整体取品牌视觉基色“蓝色”作主线,恰如其分地将色彩心理学伏笔在空间当中,潜移默化发挥 工作状态所需的正向理性反馈、品牌IP故事场景化、以及提高员工对企业价值和身份认可的效果。
    作为整个前厅区域的亮点,丰沛办公空间中的艺术体验。白色大理石和蓝色的面块区分,起到承上启下的连接,主导空间的核心与节律。
    考虑到公共办公区面积较大人员较多,平面布局相对更加严谨,运用地毯穿插、叠加、相交让不同区块,整洁有序,辨识度更高。温暖的木饰面让空间变得更加柔和、流动效率更高。休闲区放置异形沙发,温和的绒毛与超大尺寸的坐深拉伸视线、提升质感。背景在原木色包裹之下压低商务感,令人心情放松,由此完成一种办公、会客与休闲氛围的融合。

  • 甲由 / 设计师

    2024年07月05日 07:04:40

    + 关注
    #办公智造#

    从接待室到会议室的设计保留有足够光线和葱郁激活工作所需的创作氛围。
    蓝白之外的木色带来平静温暖的情绪,草木灵性与温润以自然原色组织语汇,凝聚场域中的精神与能量。
    草木与人,宛若同根相生,温柔却暗藏坚毅。        

  • 刘静 / 设计师

    2024年07月05日 06:55:58

    + 关注
    #办公智造#

    设计团队考虑到业主大隐于市的心理状态以及对当代艺术的喜爱,于是将空间的整体风格浸染于淡淡的工业调性之中,以黑白灰为主色调,利用光影及材质肌理,强调空间的通透性及韵律感。
    办公室分为两个出入口,一侧临近总裁办公区,通过管控可作为总裁及贵宾专用动线,另一侧则通往前台接待区,成为办公室主要出入口。
    项目中并没有将接待台的位置按照传统意来正对入口,而是半隐在由金属百叶铸成的logo墙背后。阶台,光带,绿植,造影,一层层渐退在深灰色的基调之中,时尚且富有质感,使造访者感受犹如步入桃源般的惊喜。
    开放办公区强调空间的序列及虚实关系,设计团队试图利用色彩的交替寻找一种空间秩序,既很好地满足了功能需求又将整个空间延伸、整合在一起。        

  • 刘静 / 设计师

    2024年07月05日 06:53:32

    + 关注
    #办公智造#

    员工休息区拥有自己独特的自由气质,精心设计定制的天花灯具从金属网中交错垂下,营造出丰富层次及趣味性,沿窗的长吧台让人们可以在工作之余的一方净土中一览都市的繁华与喧嚣。
    透过休息区的绿植,由阳光板围合的弧形长廊将主管办公区及多功能区串联,伴随顶面带有指向性的百叶及灯光排列,光影斑驳,使原本冗长的空间变得灵动起来。        

  • 刘静 / 设计师

    2024年07月05日 06:51:39

    + 关注
    #办公智造#

    渐宽的长廊使通往总裁办公区的路径无形中多了某种仪式感。总裁办公区地面及天花均采用品质优良的木地板饰面,墙面浅色壁布硬包将空间变得柔和而不乏品质感,玻璃隔断则使空间显得通透,再配以主人私藏的画作与艺术品,更是为空间点睛。
    大会议室以干净的白色打底,配以木质天花,植物在这里也扮演着重要的角色,VIP接待与大会议室连接,当中以活动隔断做分割,可开可合,赋予空间多种的可能性。在纸醉金迷灯红酒绿的繁华都市之中,人们更需要的是那一份脱离尘俗的风雅与惬意,行之所处,坐看云起云落,皆是悠然。        

  • 王建 / 设计师

    2024年07月05日 06:24:21

    + 关注
    #办公智造#

    博枫上海办公室        

  • 王建 / 设计师

    2024年07月05日 06:22:35

    + 关注
    #办公智造#

    博枫上海办公室        

发布话题

公开