当前位置:首页 > 户型图分析

#办公智造#

阅读 991716 | 粉丝 991716

  • 吕行者 / 设计师

    2024年06月18日 10:50:40

    + 关注
    #办公智造#

    项目位于园区的中部,是一栋两层高,主体呈正方形的生产车间, 方形的四周几乎被高大的厂房包围,唯有西南角毗邻户外运输管道走廊,和外部广场连通。新植入的功能是集共享办公、健身、轻餐饮、买手店、路演讲座和艺术展示于一体的新型复合业态的综合生活馆。改造后的空间希望为人们提供新型现代社交活动空间的场所,传达新型的健康生活的理念,并通过人们的参与重新激活周边这一片区域。
    传统哲学在对空间进行思考时,有一个不明言的前提,那就是:空间总存在。但它们从来不问“空间如何存在”,而总是在问“空间是什么”。在海德格尔看来, 空间不是“什么”,空间不是一个存在者,空间原初地是在我们的日常生活中显现自身的,并且只有从这一原初的显现开始,我们才能获得关于空间本身的知识;空间既不是主观的也不是客观的。        

  • 吕行者 / 设计师

    2024年06月18日 10:47:08

    + 关注
    #办公智造#

    我们认为每个场所都具有其本身的时间感和空间感。时间感,是场所功能在迭代中和人产生的关系以及特定历史时期的社会意义。空间感,则是场地的景观性,非狭义的景观,是具有更广泛的场地特性的空间片段。时间感和空间感并非独立存在,也非显而易见,通常需要设计对潜在性深入挖掘,让空间本身的价值和能量发挥出来,并得体合宜。        

  • 吕行者 / 设计师

    2024年06月18日 10:45:29

    + 关注
    #办公智造#

    视线随着人在空间中的运动,从外部工业遗址进而转向内部竹林庭院,光线也由侧面的大落地窗转向庭院的顶部采光天窗。三个庭院将内部的活动场景串联起来,首层的健身,沙拉吧,咖啡吧和展厅,二层的共享办公和运动区,围绕其自由展开,南侧被植入的木盒子是独立的办公和买手店,通过大面积的玻璃,和两侧木制墙面将外部遗址风景框入室内。
    庭院中碎石和不锈钢镜面的景观装置的花池延展了外部的景观切片,亦创造了抽象的园林景观,使每一处场所的功能都和庭院景观相联动;通过镜子的使用,让内外的景观在空间内不断地反射渗透与延展,使原来深入的更为内向的空间呈现出开放性的状态。同时通过方形的自然天窗和人工漫反射光线的交叠使用,使整个建筑空间成为一个通过光的变化呈现出戏剧性的叙事空间。        

  • 吕行者 / 设计师

    2024年06月18日 10:42:10

    + 关注
    #办公智造#

    在现代主义建筑,白色往往意为纯粹、真实与理性。对于白的运用,设计希望表达抽象的空间,弱化建筑,与工业遗址相互因借,通过光在白色空间中呈现的变化将庭院和外部风景重构,塑造一个满足人活动需求的真实状态的空间,使空间感更抽象而恒久。        

  • RIDICULOUSNESS / 设计师

    2024年06月18日 09:32:00

    + 关注
    #办公智造#

    本次设计项目为办公空间,整体色调以灰色,原木色为主,墙面运用了深灰色的真木饰面板,让空间尽显沉稳,局部运用原木色做为点缀,作为空间的亮点。不纠缠于繁琐,用极简的设计诠释空间美学,去繁就简剔除多余的装饰元素,用最直白的设计语言营造新办公空间体验氛围。在办公区划分出来水吧台ˎ书法桌和茶桌作为休息洽谈区域,闲暇之余员工可以在这里沟通交流。        

  • RIDICULOUSNESS / 设计师

    2024年06月18日 09:30:36

    + 关注
    #办公智造#

    我们在空间中设立了一个读书空间,通高的书架,抬高的榻榻米,顶面上运用镜面将空间拉高作为阅读小歇的区域,打破传统办公空间的呆板ˎ严肃形象,给予办公者最大程度的自主性,释放办公体验,激发不同的办公文化与诉求,在解决功能的同时,我们也塑造了空间的气质和形式。        

  • 王丹丹 / 设计师

    2024年06月18日 07:02:56

    + 关注
    #办公智造#

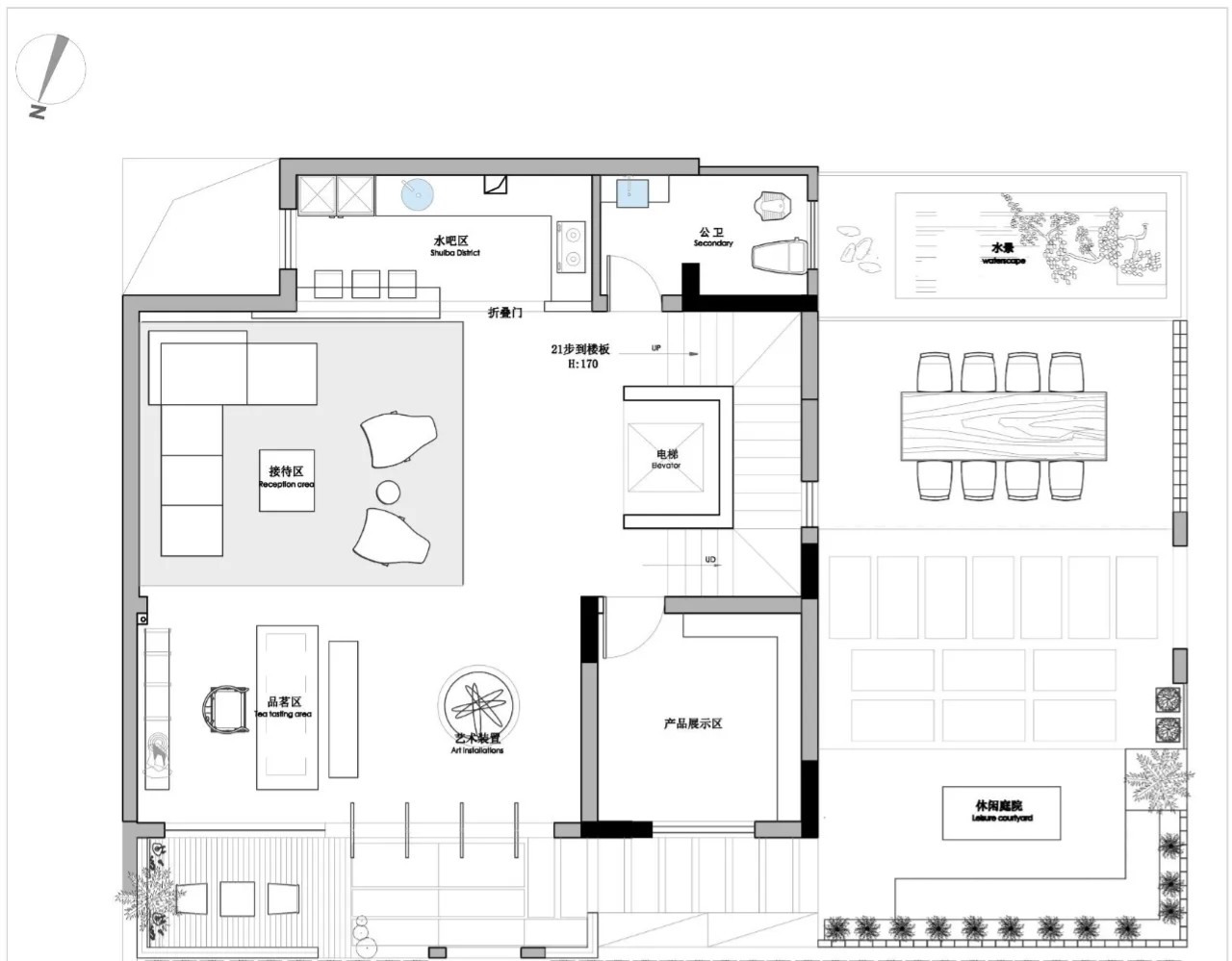
    设计理念:本案是办公、商务接待,一体化多功能空间。艺术与自然环境的融入,弱化室内外的边界感,同时,赋予整个空间自由的艺术之美。设计师充分利用每个空间区域的光影与不同材质的质感,呈现给个空间独有的韵味。
    作为进入接待区的第一空间,以简洁作为主要的设计风格。通过玻璃帘和开放式的布局创造出充满光线和宽敞的环境,空间通透而不压抑,让人进入接待区时感到舒适和自在。
    接待区的设计与整个空间完美契合,引入多角度的视野景象,营造出游走在规则与不规则之间的美感。米白色主调的休闲沙发和饱和度低的绿色坐塌相搭配,使得整个休闲空间更加放松,毫不累赘的简净。呈现出空间与人彼此沟通的和谐之美,为洽谈营造出轻松、舒适的氛围。
    延伸引入深入,衔接宽敞的前厅,仪式感与大气格调不彰自显。通过绿植的衬托来释放空间的绿意与活力,营造轻松欢快的接待环境。
    沿着鹅卵石和石板铺辰的小路来到庭院接待区域,引入绿植、山水与温暖的木色点缀,融合户外美学的特点,呈现出一种简单利落且宁静的环境,营造出自然的氛围感,舒适的座椅、艺术性的装置打造了和谐有趣的洽谈区形式,给予客户一种舒适放松的感觉。
    庭院区可以治谈非私密话题、闲谈,或是作为等候区,风格和设施是舒适简约,有特别的设计的绿植墙,摆放一些生机的绿植,让人有一种舒适放松的感觉。        

  • 饶阳 / 设计师

    2024年06月18日 06:43:49

    + 关注
    #办公智造#

    黑、白、灰的素描手法,把整个空间无拘无束,表现得淋漓尽致。在其他空间,设计师运用了概念性设计语言表述,线条简练,把材质和颜色差异性进行了对比,展示了材质、颜色、形态的相互关系,体现了现代设计中形、光、色的魅力,强调了以人为本的设计理念。
    白色的墙壁,灰色的地胶,空间中辅以绿植作点缀,在灯光氛围的烘托下,营造一种安静,大气,优雅的休闲办公空间。在配饰上,延续了黑白灰的主色调,以简洁的造型、完美的细节,营造出时尚前卫的感觉。
    色彩简约流畅,明黄色的办公桌,明快跳跃,有节奏感,呈现出富有朝气的生活气息。与传统风格相比,现代风格布局更随意,不需要繁琐的装饰和过多家具,最大限度地体现空间与家具的整体协调,用最直白的装饰语言体现空间和家具营造的氛围,赋予空间个性、宁静和舒适。        

发布话题

公开